
华南建筑 · 展览
面对当前建筑行业的转型升级,华南建筑近年来全面开展本科建筑设计课程的教学改革,其中,在低年级的设计教学阶段聘请了何健翔、肖毅志、叶敏、陈东华、靳远等多位独立建筑师作为讲席教授、助理教授加入教学团队,和学院教学团队合作进行了全新的教学探索。在多次讨论后,新的二年级教学团队提出了以日常生活中人的行为与空间作为教学的基本框架,通过“居+、食+、阅+、社+”的系列教案,形成了开放、多元、弹性的完整作业体系。在春季学期,我们已经展出了“阅+”“的教学成果;在秋季学期,我们组织展览的是二年级第一个作业“居+”。“居+”作业以小规模建筑为载体,是以日常行为和人体尺度作为训练目标的课程设计作业。




01
展览概况
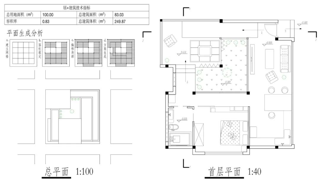
本次展览为二年级建筑设计课程展览,设计题目为“居+”,需要同学们在10m*10m的正方形地块设计有特定用户设定及关系场景的居住空间。
展览地点:采荷建筑楼(27号楼)东厅
展览时间:2023年10月14日—11月07日
出展年级:2022级建筑学、城乡规划、风景园林
评图活动于10月16日举行,评委包括18位任课老师及多位学院教师与评图嘉宾。
特此鸣谢各位活动的知名建筑师嘉宾:
罗宇杰 LUO studio创始人
郑 洲 深圳水石公司设计总监
何 方 扉建筑合伙人
邹嘉盟 绿田建筑主持
另外,学院其他年级的老师参与评图,包括许自力/禤文昊/袁粤/莫浙娟/平辉/姚圣/殷实等老师,华南农业大学水利与土木工程学院建筑系的老师观看了展览并开展了教学讨论,华南师范大学附属中学国际部HFI建筑社的学生也将进行访问交流,特此鸣谢!


华南农业大学水利与土木工程学院建筑学系教师参观和交流

华南师范大学附属中学国际部HFI建筑社参观和交流
02
设计任务书说明
· 训练目标
从居住行为引申的空间设计思考
(1)居住空间的体验——居住行为跟人时时刻刻相关。基于马斯洛需求层次理论,也将从功能性上升到精神层面。不同的用户人群有不同的行为与需求,你的思考是怎样的?
(2)人体尺度的感知——居住行为中的人体尺度,包括人体站立、行走、坐卧的尺度,家具尺度,以及人与空间的关系,如何在细节优化空间?
(3)内在关系的呈现——在红线内除了建筑还存在环境,建筑存在于环境,环境又反馈于建筑,如何组织二者的关系?
(4)有限体积的腾挪——区别于用面积,在有限的240m³的可操作体积内,三维关系是否进一步转变?
· 设计对象
(1)总体定位:以居住功能为核心,强调关注人居空间、人体尺度、人性关怀,呈现使用者内在关系与外部物理空间的互动关联
(2)关系场景:在“独居之家(1 人)”、“情侣之家(2 人)”、“父母之家(2-4 人)”、“老人之家(1-2 人)”四个场景中任选其一开展设计
(3)用户设定:用户具体信息与居住功能需求由各学生自行限定,可以是真实人物,也可以是虚拟人物。通过调研、观察、访谈、阅读等方式,刻画用户形象与限定居住需求
· 课程安排
(1)共计 7 周时间(2023 年 8 月 28 日至 2023 年 10 月 12 日,含国庆假期)
(2)具体日程详见课程安排表(见附表 1)

03
评图过程
本次课程评图由苏平、何健翔、陈昌勇、钟冠球、张颖、方小山、刘虹、魏开、郭祥、陈建华、张智敏、黄翼、田瑞丰、王朔、叶敏、陈东华、靳远、陈永明、林正豪等老师带领,特邀嘉宾和其他年级老师一起评图交流。展览评图当天,老师们相互交换意见,多种研究视角的思考相互碰撞,气氛十分活跃。















04
部分优秀作品速览
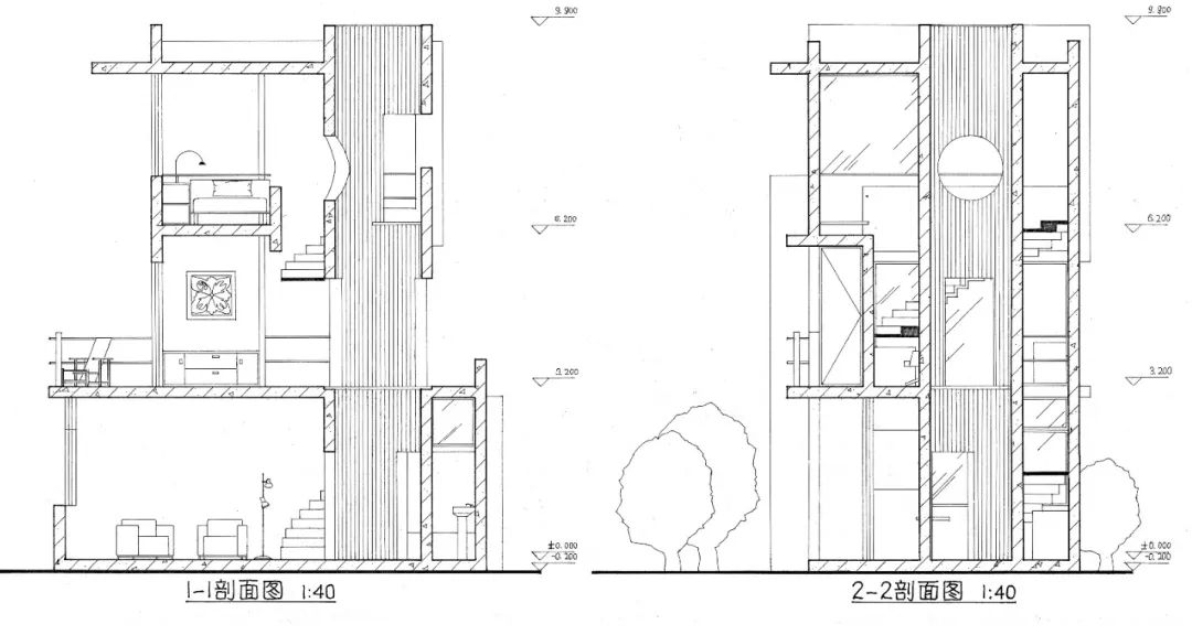
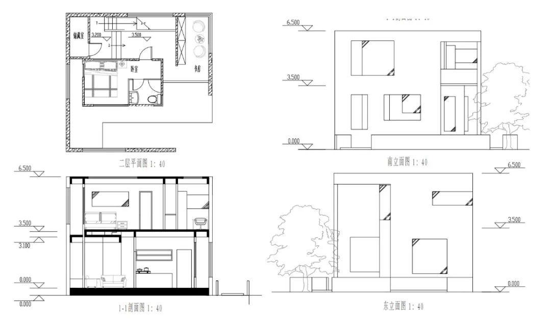
跃栖堂
宋祺栋
指导老师:陈永明

向左滑动查看更多
遇见
黄琪然
指导老师:何健翔

向左滑动查看更多
探境
张展如
指导老师:叶敏

向左滑动查看更多
心灵之侣
王宗昕
指导老师:田瑞丰

向左滑动查看更多
身在此中
徐邹明朗
指导老师:靳远

向左滑动查看更多
窗中窥园
张鑫媛
指导老师:方小山

向左滑动查看更多
GRID ELDERLY HOUSE I
巫羿纬
指导老师:张颖

向左滑动查看更多
SOLITUDE AND TOGETHERNESS
杨明雨
指导老师:靳远

向左滑动查看更多
居+
王乐怡
指导老师:陈永明

向左滑动查看更多
玖屿
雷蕾
指导老师:何健翔

向左滑动查看更多
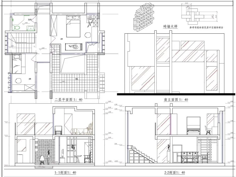
井屋
陈梓浩
指导老师:刘虹

向左滑动查看更多
05
结语
居民行为的复杂性和差异性要求居住空间具备相应的特征,包括但不限于多样性、便利性、安全性和可识别性。尽管居住行为表面看似繁多,然而结合行为与场所之间的相互关系,我们可以发现不同类型的居住行为主要发生在特定的空间层级中。通过针对不同人群进行空间设计,可以自然地理清设计线索,确定适合他们的空间类型。
本课程以日常行为和人体尺度为目标,促使低年级阶段的学生能建立更完善的空间逻辑。
AUTUMN 2023
总体协调丨苏平
策展丨陈昌勇/林正豪/钟冠球
策展助理丨王远敏/覃晴/冯光明/苏鑫雨/郭杰蜜/梁玉涵
出展年级丨2022级建筑学/城乡规划/风景园林
负责老师丨何健翔/林正豪/陈昌勇/靳远/张颖/ 刘虹
任课老师丨苏平/何健翔/陈昌勇/钟冠球/张颖/方小山/刘虹/魏开/郭祥/陈建华/张智敏/黄翼/田瑞丰/王朔/叶敏/陈东华/靳远/陈永明/林正豪
文案丨陈昌勇/罗昕钰
初审丨苏平
终审丨建筑学院公众号信息发布审核工作组
丨推荐阅读

长按指纹|一键关注





















































