这年头,似乎没有什么事不能在家进行的了。
经历过居家办公的我们,或许对多数人来说正在成为趋势,也是适合自己的生活方式。
这不,在宁波海曙的复式户型,富裕的生活工作空间,给了这户宁波人在家办公的底气,不得不说也太大了吧!

空间公私分明
主打生活秩序

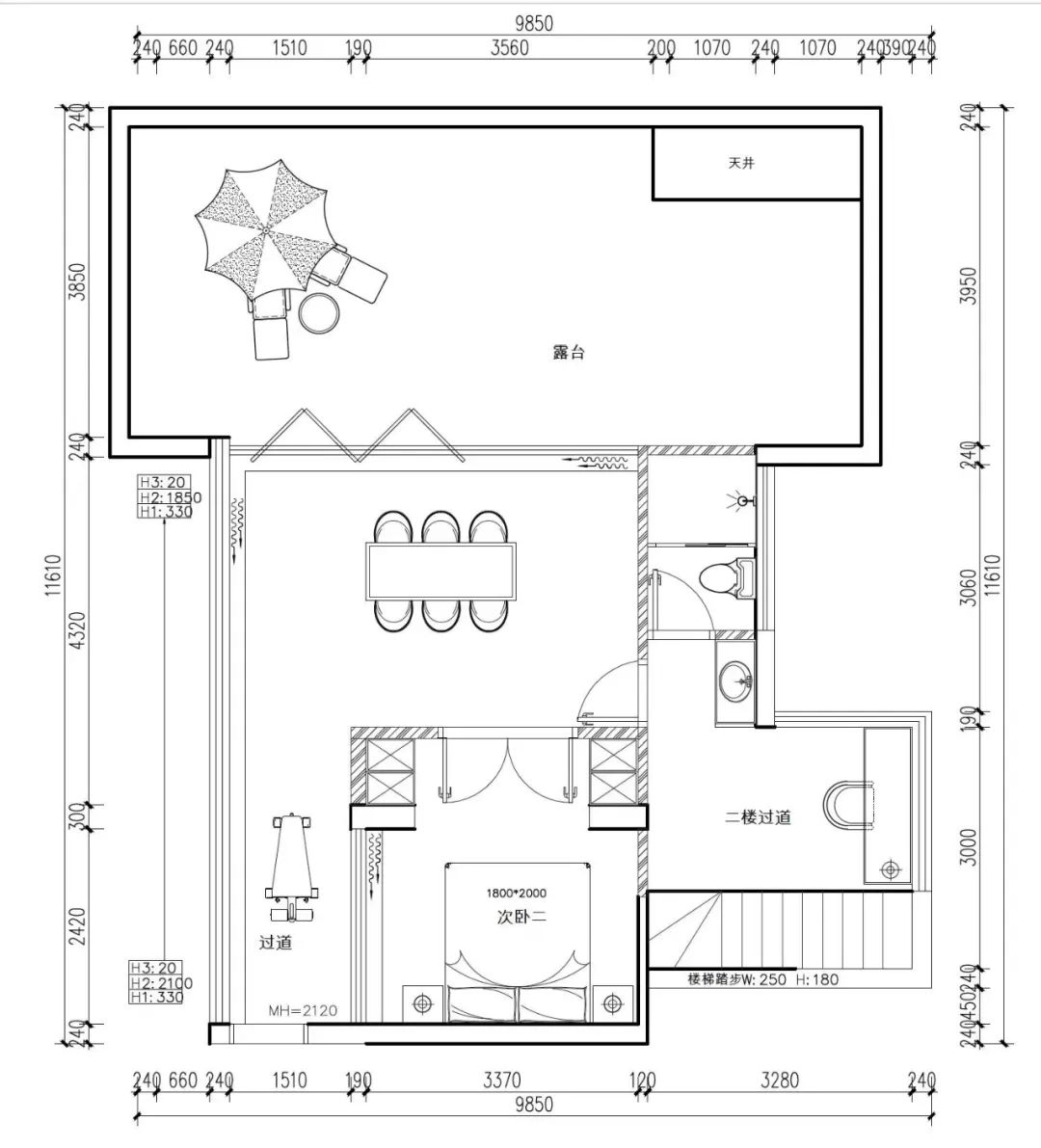
复式自带的户型优势就已经帮助屋主解决了功能区划分的难题。一层主打生活起居。推开门就是清爽干净的白色现代风。
走出玄关,别有洞天。客餐厅一体化,就让人想一个跟头跳进沙发里,舒舒服服地感受家的舒适。

不同于双阳台和客厅主卧连接的经典搭配,这一次,阳台空间和餐厅厨房巧妙结合,让餐厅采光加倍,洗衣区空间足够,生活区和会客区一起向光而行,这种组合干净利落,也在无形中保护了屋主隐私,让待客和生活和谐共生。
阳台的空间也能用来写写画画,做一些与工作无关的事。总之,一层就交给柴米油盐和休闲娱乐。

现代风格的设计属于简约的,没有复杂的装饰,但是却能够让人感觉到十分舒适的效果,可以说这种风格是适合大多数人选择。
特别适合装修客厅和厨房、卫生间,而且这种风格在设计中有着很多的装饰细节和造型,让人感觉到非常有趣以及舒适。
工作和生活
总能平衡掌握

职住一体,容易模糊工作与生活的界限,设计师从房间功能的安排上,为屋主区分工作与休闲的状态。
屋主的工作性质,让他随时随地都能进入工作状态,因此,家里的二层空间,办公区域是一种刚需存在,二楼就是专门办公的。

在宁波,父母除了“卷”孩子,可能也在悄悄努力应对职场上的竞争。屋主是行动派,二层的充裕空间就留给奋斗。
当然,书房也是一处完美的收纳空间,极致的收纳体现在细节上,不仅要彰显贴心与人性化,还要懂得如何脑洞大开。
利用和墙壁的联系,打造出一个储物空间,节约空间投入和金钱投入,实用并且美观。

长时间的工作,往往会侵蚀到日常的生活,设计师林露辉本人对此也深有体会。她为屋主设计的这个家,具有完善的功能,但又不像一台精密的机器那样冰冷,张弛有度的空间让生活与工作拥有了健康的节奏。
来自粤港澳大湾区高端环保整装先锋品牌、全国知名家装连锁企业——深爱居装饰集团的设计师如此费心,是否值得?看到这里,想必大家心中已有自己的答案了。



全屋甄选,一家搞定!深爱居装饰,大牌直营,价格减半!省心省力省钱!
金光中心超万平米一站式潮流环保整装家居旗舰,九大风格30套1:1实景样板房,5000平米品牌材料选购区,2000平米透明工艺展示厅,看见什么就装什么。不仅能满足观赏的乐趣,也在不同意义上颇具借鉴意义。
全宁波大市470套施工进行中!
不是邻居也能身临其境现场感受!

· 扫一扫 微信咨询 ·

深入了解前往这里
沉浸式体验让人狠狠心动的生活美学

· 深爱居地址 导航这里·

· 戳一戳 更多福利等你 ·
?
戳下方图片一键抢占
全屋设计费免单名额!


