MUSE DESIGN AWARDS


Award-winning works


成都天府国际机场空管1号塔台是天府国际机场配套空管工程,于2020年12月通过土建工程验收,于2021年6月8日通过民航工艺验收后开始使用。
Z世代消费新势力崛起,更多元的居住主张,更精细的居住需求,更个性化的居住风格,其背后是新生代家居消费者民族自信心的高扬和审美力的觉醒。对应到供给侧,则离不开制造与设计的转型升级、品牌与产品的焕新迭代、以及供应链的创新提效。2023浦东家具家居双展以国际化大都市上海为圆心,辐射长三角、大湾区、华北三大中国。

建筑形体


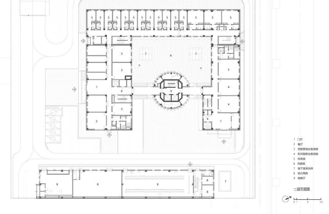
项目位于天府国际机场空侧中心位置,用地面积8180平方米,总建筑面积12975平米。功能包含99.9米高塔台及配套裙房、动力设施用房、地下停车库(地下人防)、路侧地下隧道等部分。

建筑设计从功能角度出发,将塔台复杂的功能融合到简洁的建筑形体中,形成一座满足民航工艺专业需求,注重地域文化展现,与航站楼理念呼应,同时拥有优美造型的地标性建筑。



塔台平面造型,取自金沙太阳神鸟标识中的太阳,光芒四射。塔身形体使用太阳图案盘旋上升后形成的优美造型,寓意承载金沙文化的成都腾飞,设计也希望1号塔台与未来即将建成的四座象征太阳神鸟的航站楼一起,承托起成都航空业的未来。


设计概念

▼旋转上升的塔身

建筑立面主要使用与航站楼同色造型哑光铝板,开窗部分按使用需求自上向下为明室和站坪指挥室的半钢化夹胶固定玻璃、塔顶功能室的LOW-E钢化夹胶固定玻璃、塔台裙房双层隔声窗。立面开窗、立面百叶的设置均顺应建筑造型,在塔顶强化质感对比,形成优美且动感的曲线环形。


截至目前,成都天府国际机场空管1号塔台拥有诸多国内第一、世界先进的设计理念:它是国内第一座空管指挥与机场机坪指挥合建的塔台,第一座位于隔离区范围内的路侧塔台,第一座电梯可直达机坪指挥室、空管明室下层的塔台;在工艺设计上,1号塔台采用了国内首套集成塔台系统,这可以将大量的工艺设备用房放在机场外部的工作区里。

创新内容

1. 明室与机坪指挥室叠建;
2. 无机房电梯可到达明室下层、避免电梯机房下沉引起电梯运行舒适感差;
3. 结构核心筒内置明室楼梯,高效利用塔顶空间;
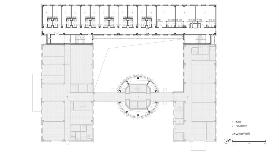
4. 裙房错层设计,利用不同标高的楼梯平台解决竖向交通问题,以处理办公与休息用房层高不同的需求;
5. 设置地下室采光天窗,积极改善地下室环境;
6. 项目下部采用框架-核心筒结构体系(型钢混凝土),上部采用钢结构体系(大悬挑钢结构斜撑)。
7. 设计通过声学模拟计算,对玻璃幕墙的参数进行调整,以避免飞机发动机噪声对管制员工作造成影响;裙房休息室部分采用双层隔声窗进行噪声控制。
8. 配置柔性空调末端以降低能源消耗。办公部分主要使用多联机空调(新风)系统、宿舍使用分体空调(多联机新风)系统。
9. 优化使用人员进入塔台区域前需先安检的传统流线模式:进入流线从机场穿场隧道开始,通过塔台隧道直接进入塔台地下室。



项目自2021年6月25日正式投用以来,与空管成都区域管制中心、成都终端管制中心、成都天府国际机场协同工作,为成都国际航空枢纽建设起到了积极作用。与此同时,塔台以其优美高耸而富有内涵的形象,现已成为空港片区的新标志。



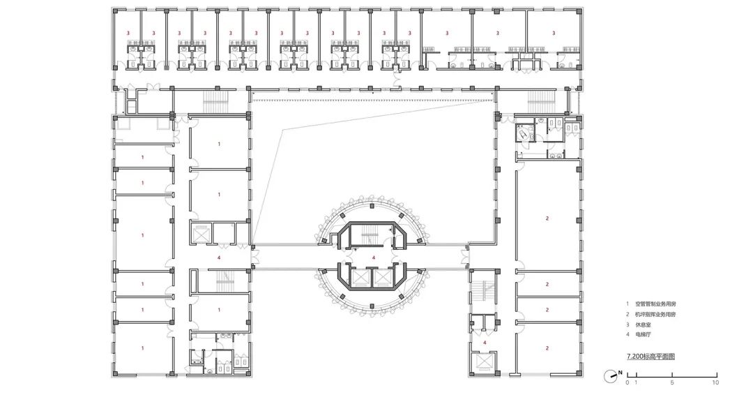
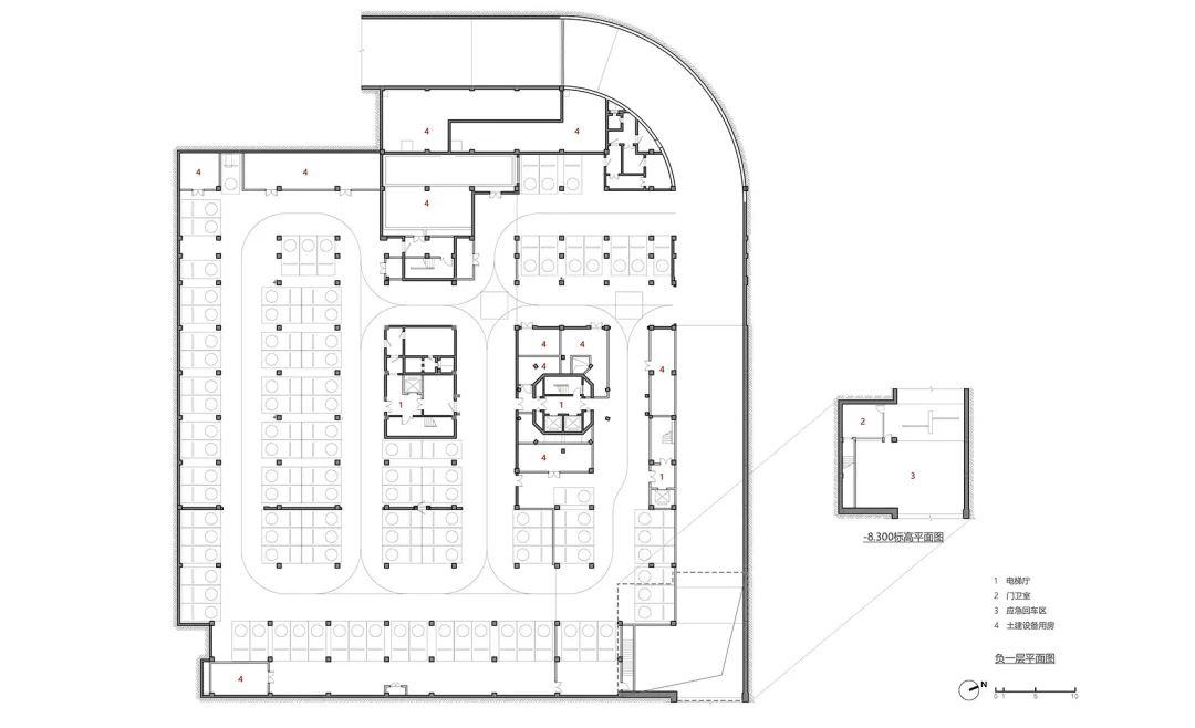
▼项目图纸








ABOUT PROJECT
项目名称:成都天府国际机场空管工程1号塔台
建设地点:四川成都
建筑规模:12975平方米,99.9米
设计时间:2015年~2018年
投用时间:2021年6月
项目业主:中国民用航空西南地区空中交通管理局
设计单位:中国建筑西南设计研究院有限公司
设计总负责人:古今元
设计人员:古今元、冯葵、陈泓蔚、杨华、王喆、王耀华、李珺君
版权摄影:天空映像、古今元


