发布信息
登陆/注册
搜索
搜索
导航
首页
产品供应
产品求购
企业库
酒业展会
行业资讯
认证会员
站内搜索
食品餐饮
当前位置:
首页
食品餐饮
正文
CAD代画 -2024
作者:本站编辑
2025-12-19 06:25:34
0
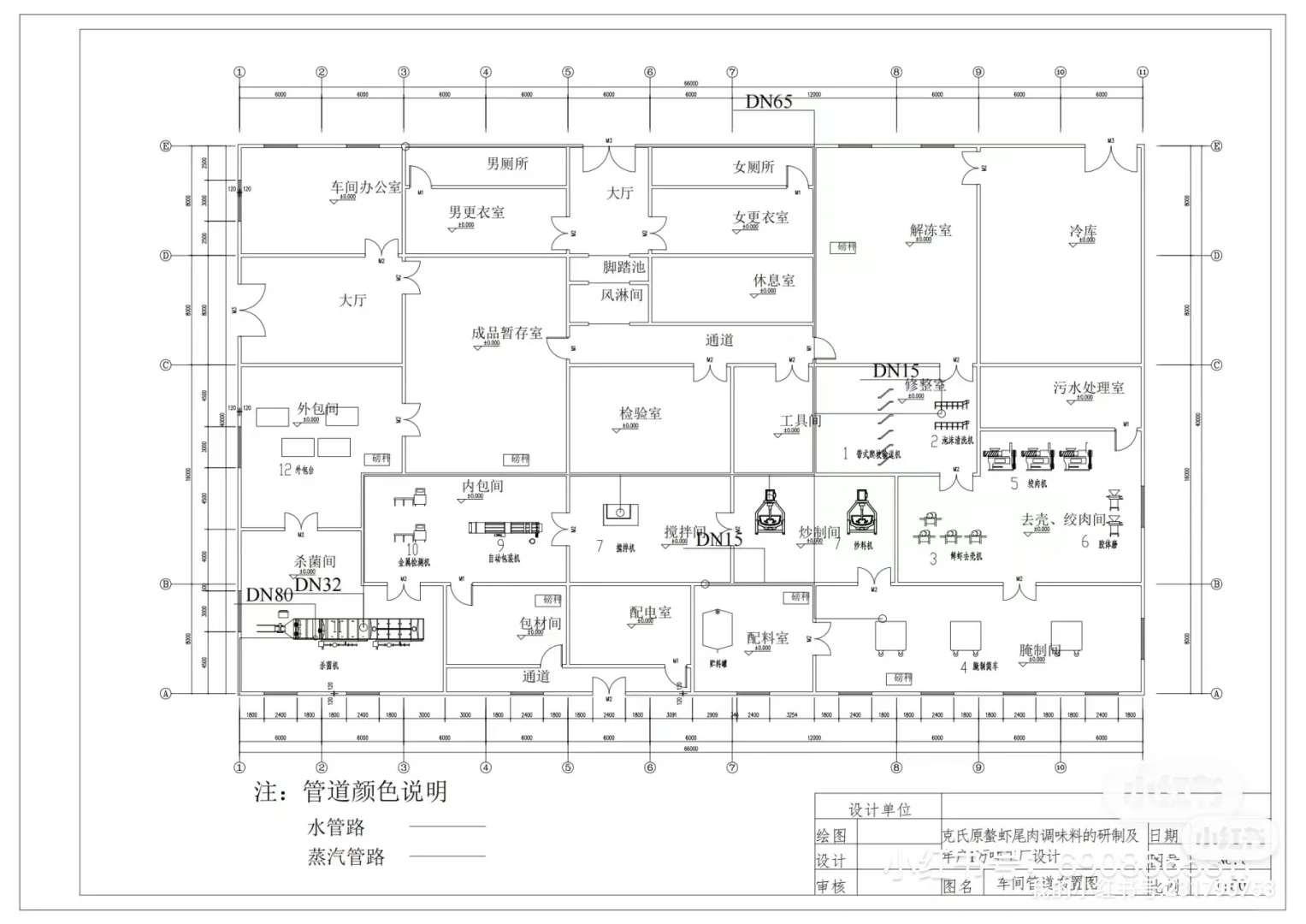
CAD代画 -2024
CAD代画 -2024-各类食品工厂设计 车间平面图 厂区平面图 工艺流程图等等 在线接单
多年绘图经验 苹果 饮料 面包 葡萄酒 茶饮料 香精 牛奶 酸奶 奶酪
急单可接 专业靠谱
#CAD制图
#CAD代画
#食品工厂设计
#工艺流程图
#车间平面图
下一篇:
法规政策汇编,超全总结!!!
上一篇:
‼️招标文件 ‼️都按这个去看重点
相关内容
查看全部
飞哥亲自视察加加
2025-12-19 06:41
凉皮工厂实拍图
2025-12-19 06:40
00后开了一家食品
2025-12-19 06:38
藏在广东佛山的一
2025-12-19 06:37
食品厂千万别出租
2025-12-19 06:35
感受科技的力量|
2025-12-19 06:34
客户来四川罗城牛
2025-12-19 06:33
探厂Plog❗❗是谁
2025-12-19 06:31
宠物猫粮犬粮、猫
2025-12-19 06:30
食品工厂设计 cad
2025-12-19 06:24