发布信息
登陆/注册
搜索
搜索
导航
首页
产品供应
产品求购
企业库
酒业展会
行业资讯
认证会员
站内搜索
食品餐饮
当前位置:
首页
食品餐饮
正文
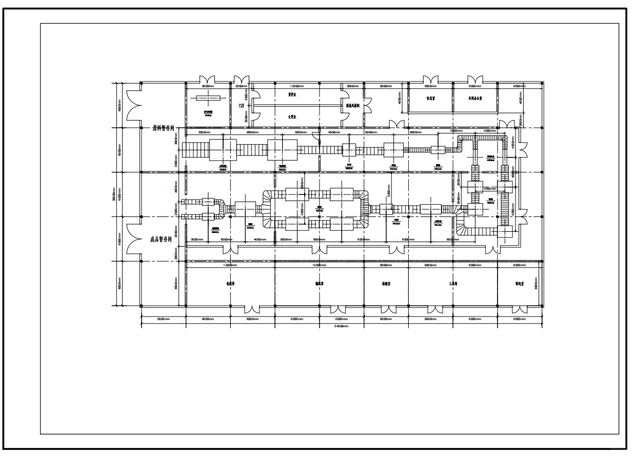
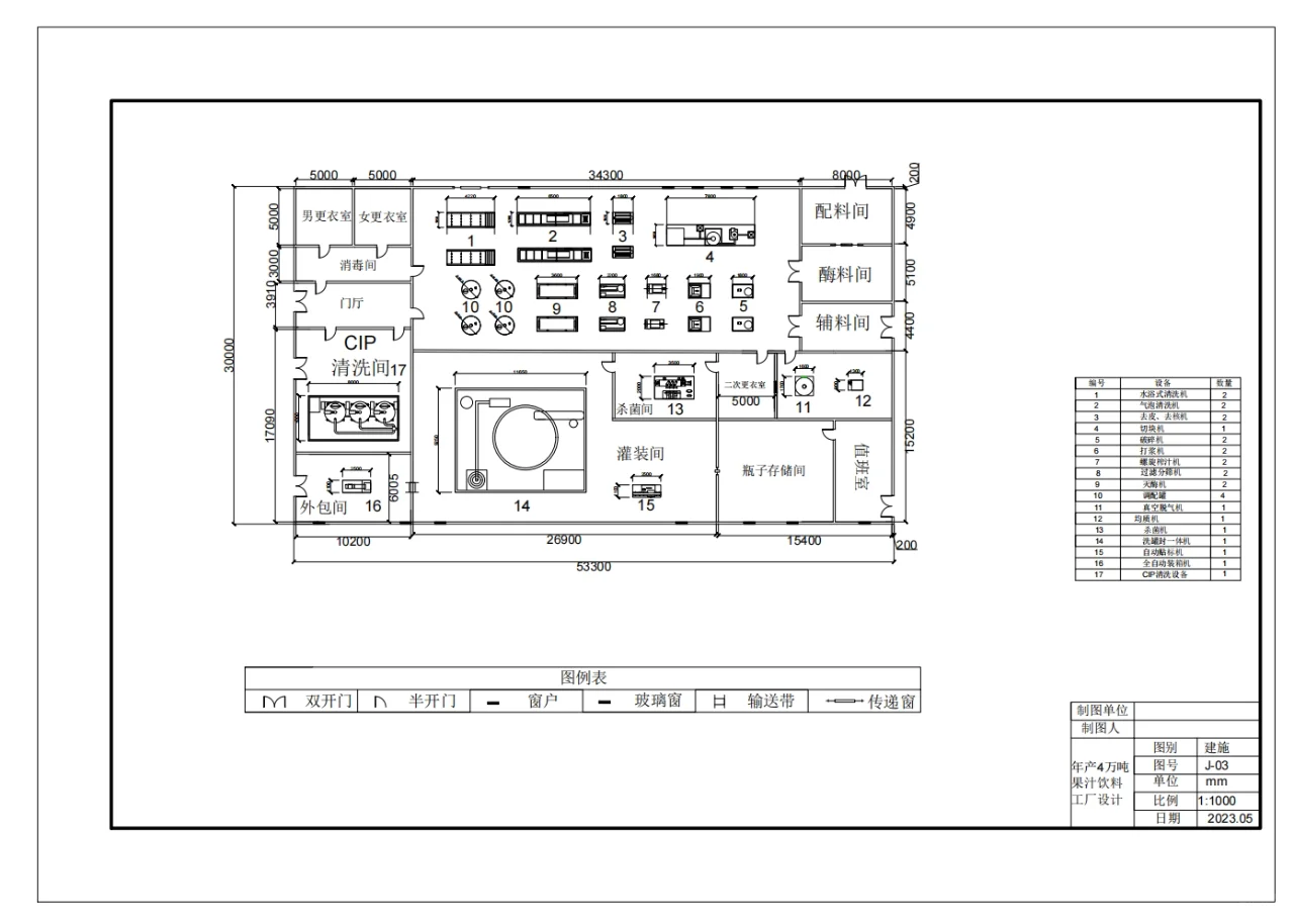
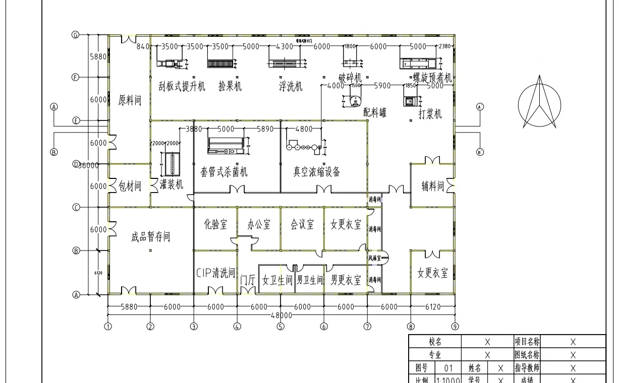
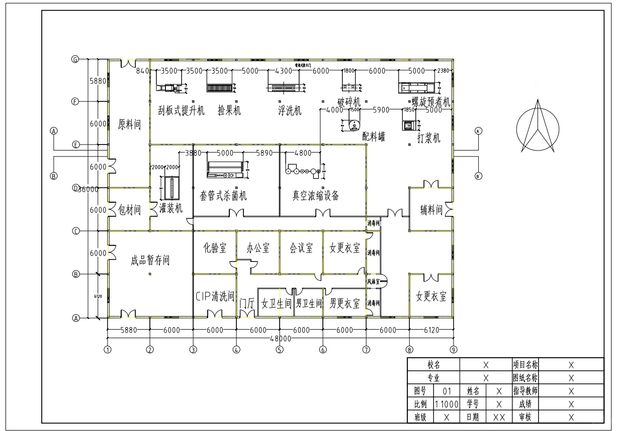
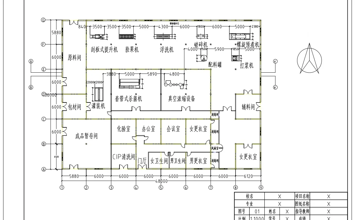
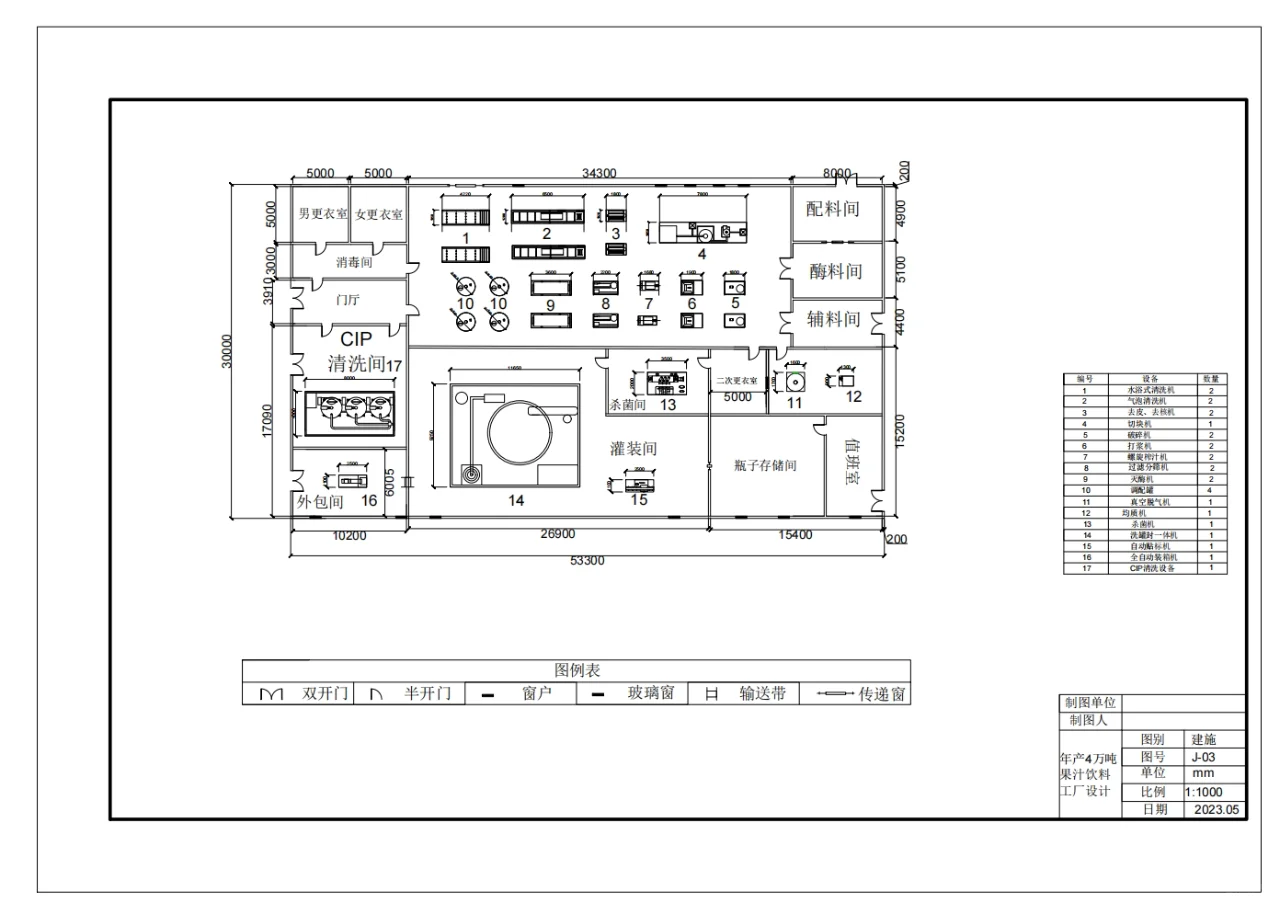
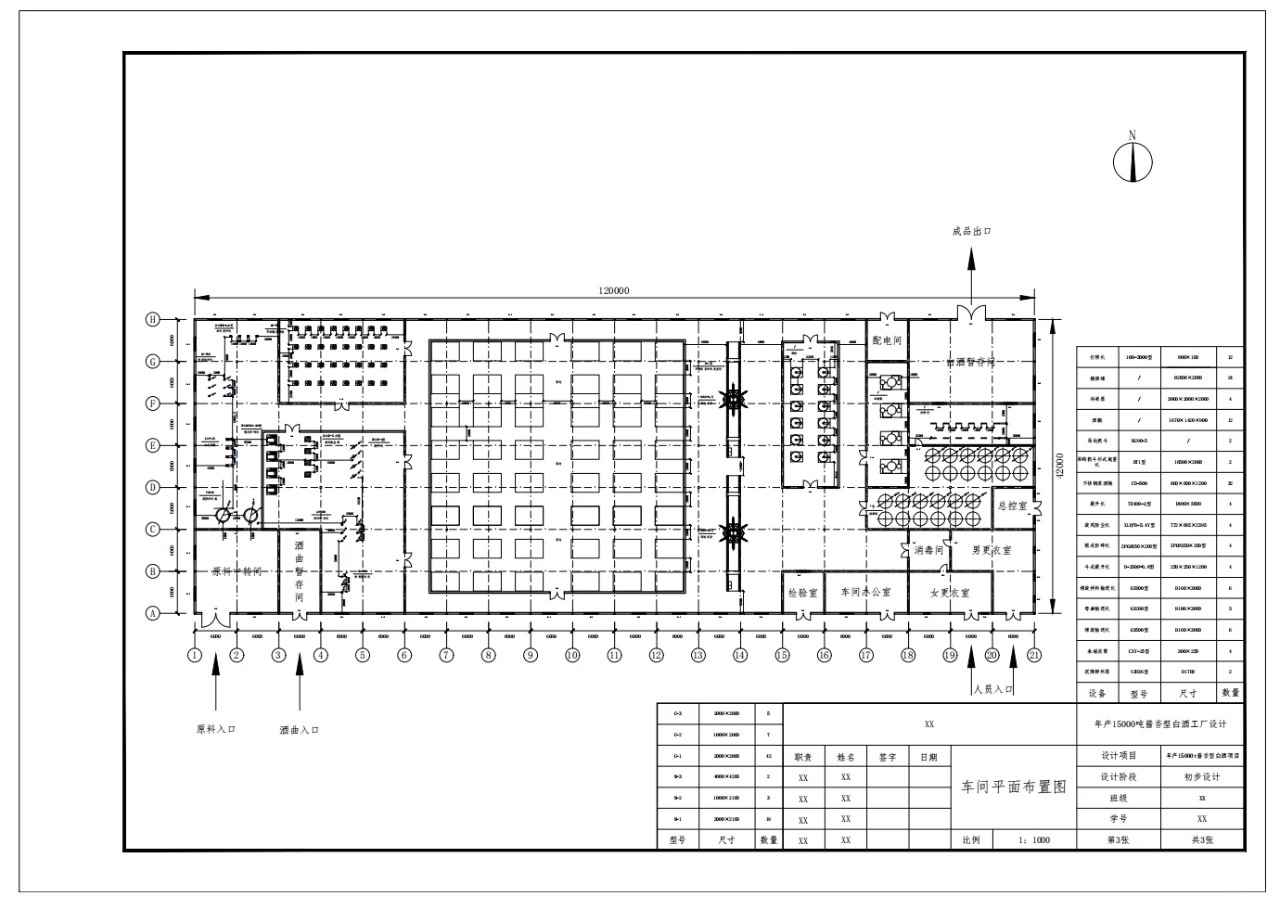
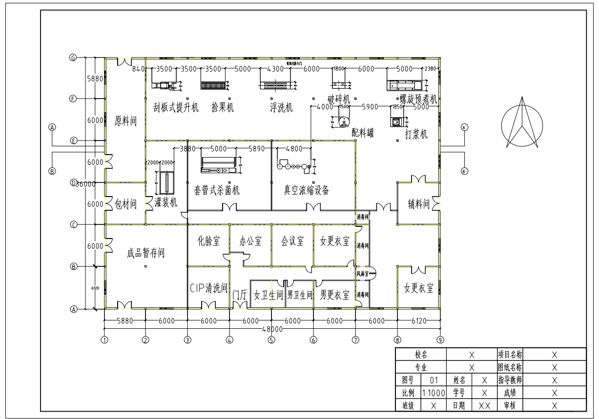
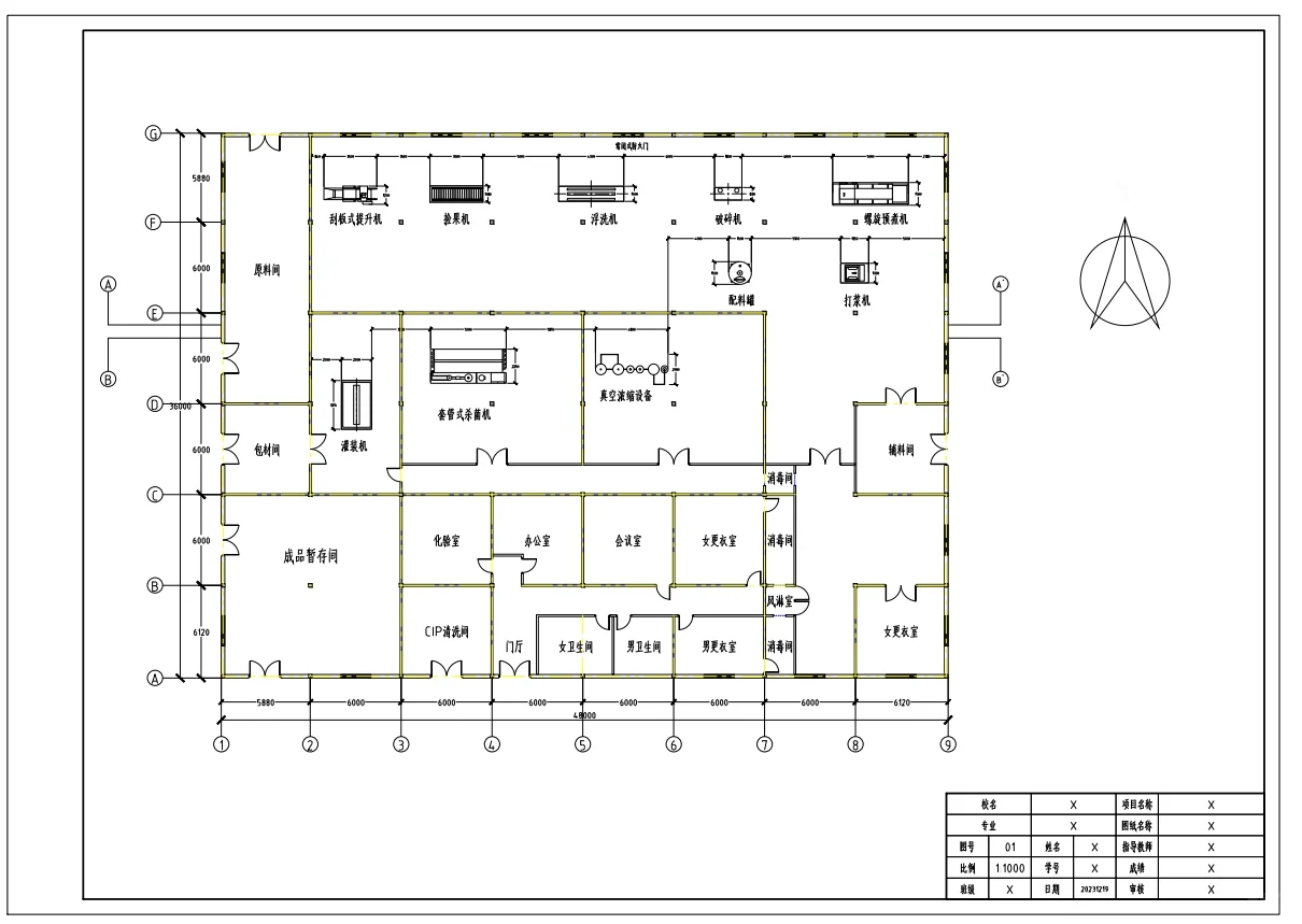
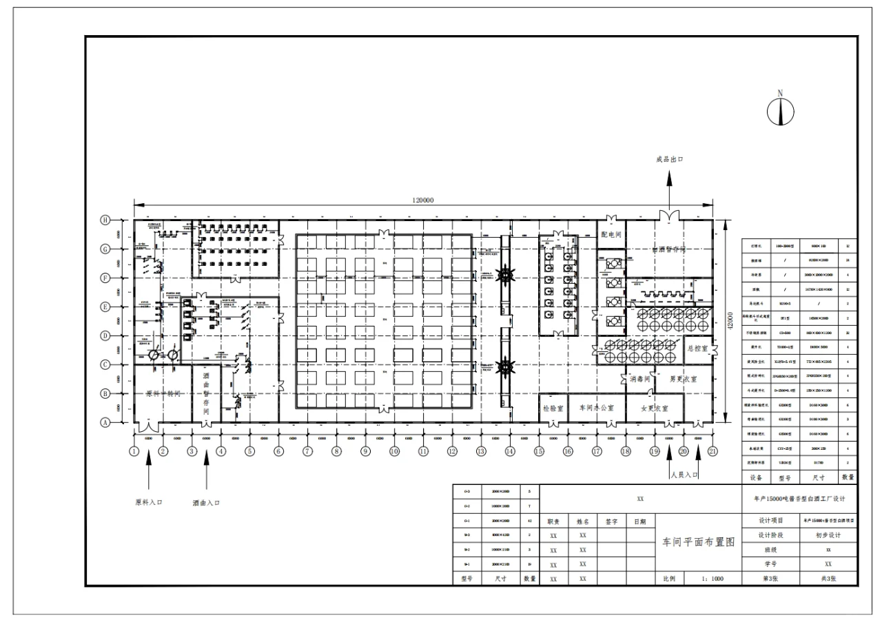
食品工厂车间平面图
作者:本站编辑
2025-12-19 06:21:47
0
食品工厂车间平面图
不知不觉已经画了100多套图了
#食品专业
#食品工厂设计
#工厂设计
#车间平面图
下一篇:
究竟如何判断一个招标项目是否公开?
上一篇:
食品工厂设计是最容易的设计了!!
相关内容
查看全部
飞哥亲自视察加加
2025-12-19 06:41
凉皮工厂实拍图
2025-12-19 06:40
00后开了一家食品
2025-12-19 06:38
藏在广东佛山的一
2025-12-19 06:37
食品厂千万别出租
2025-12-19 06:35
感受科技的力量|
2025-12-19 06:34
客户来四川罗城牛
2025-12-19 06:33
探厂Plog❗❗是谁
2025-12-19 06:31
宠物猫粮犬粮、猫
2025-12-19 06:30
CAD代画 -2024
2025-12-19 06:25