发布信息
登陆/注册
搜索
搜索
导航
首页
产品供应
产品求购
企业库
酒业展会
行业资讯
认证会员
站内搜索
食品餐饮
当前位置:
首页
食品餐饮
正文
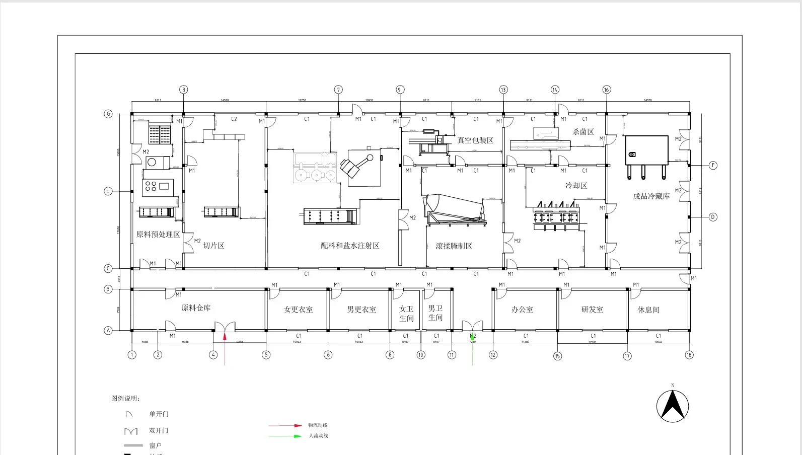
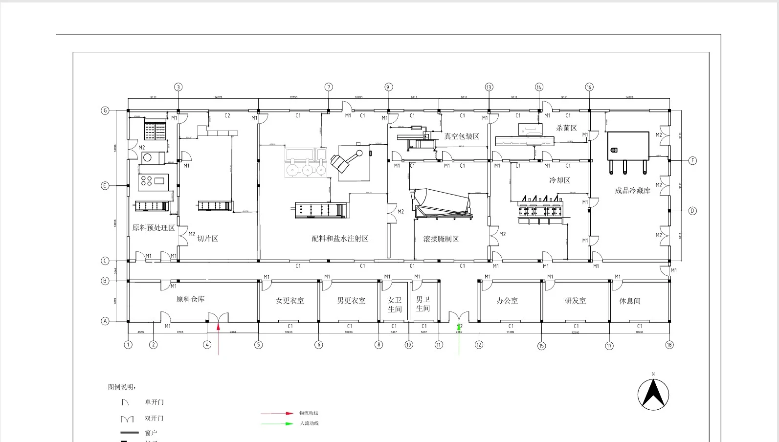
年产3000吨冷鲜调理菲力牛排的食品工厂设计
作者:本站编辑
2025-12-15 10:43:54
9
年产3000吨冷鲜调理菲力牛排的食品工厂设计
年产3000吨冷鲜调理菲力牛排的食品工厂设计
原创分享
#食品工厂设计
#图纸设计
#CAD
#食品科学与工程
#cad
#食品专业
#食品
#课程设计
#设计思路和理念
#CAD画图
下一篇:
食品厂老板别只埋头生产!潜在客户就身边
上一篇:
世界杯年的外贸机会点
相关内容
查看全部
《食品与餐饮连锁
2026-01-20 15:46
余华林实地调研食
2026-01-11 19:43
在大盘震荡走势的
2026-01-06 21:02
【海外宠业】阿根
2026-01-05 13:16
河南国调总队调研
2026-01-02 15:14
李健率队调研食品
2026-01-02 15:12
民进黑龙江省委会
2026-01-01 00:31
中国宠物食品行业
2026-01-01 00:26
李明远调研食品工
2026-01-01 00:26
刚刚公布!新野43
2026-01-01 00:25