发布信息
登陆/注册
搜索
搜索
导航
首页
产品供应
产品求购
企业库
酒业展会
行业资讯
认证会员
站内搜索
食品餐饮
当前位置:
首页
食品餐饮
正文
酸奶冰淇淋食品工厂设计
作者:本站编辑
2025-12-11 16:12:49
3
酸奶冰淇淋食品工厂设计
图一全厂平面图
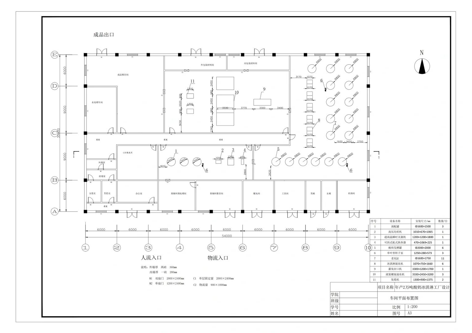
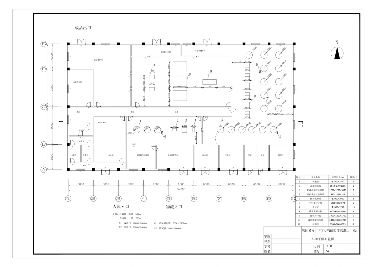
图二车间布置图
图三工艺流程图
图四车间立剖图
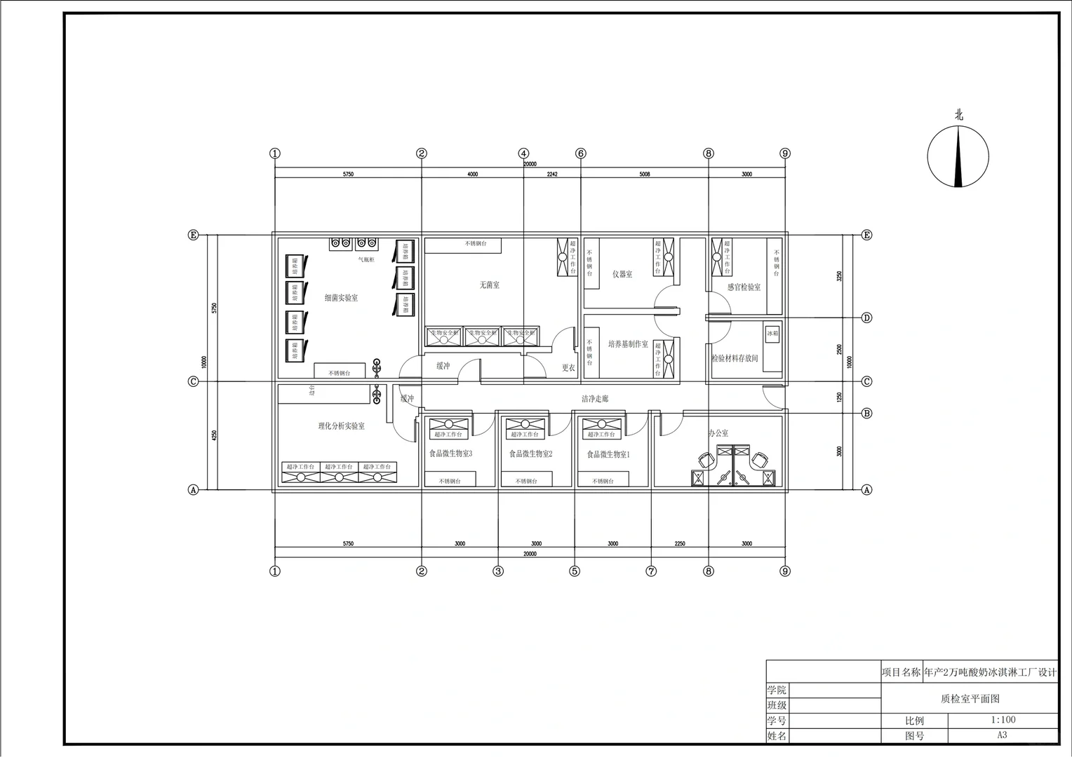
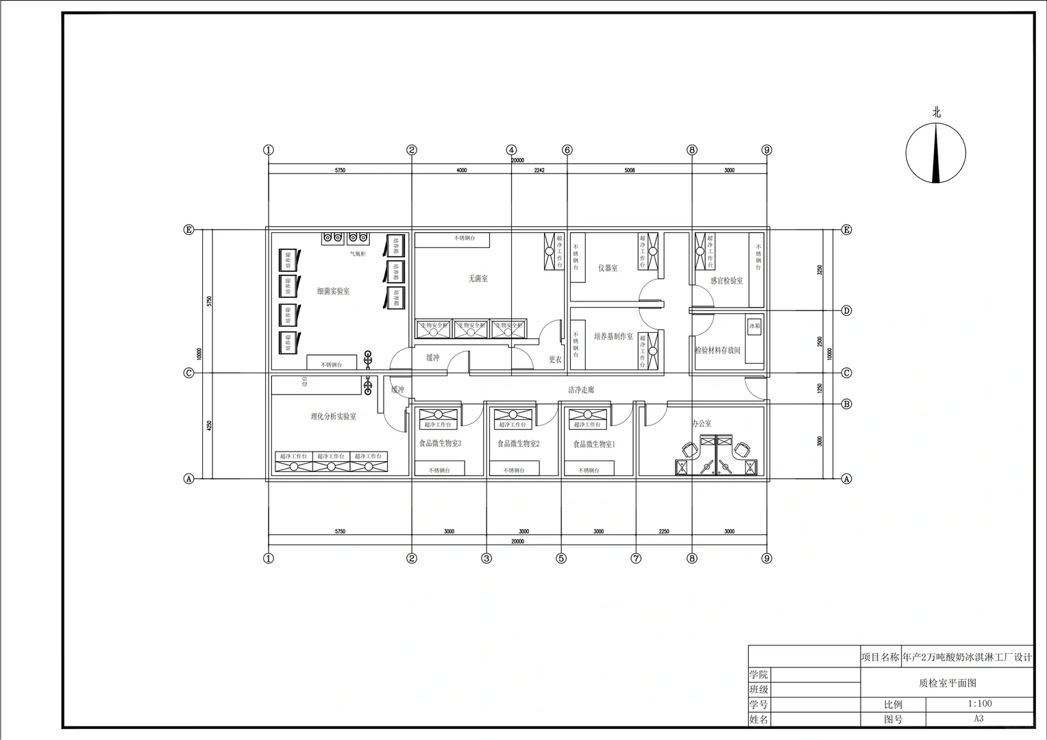
图五质检室平面图
#食品科学与工程
#食品工厂
#食品工厂设计
#CAD代画
下一篇:
在法国/欧洲融资,需要准备什么?
上一篇:
工厂平面图设计
相关内容
查看全部
央厨供应链大变革
2025-12-12 15:47
这老哥店也关了,
2025-12-12 15:45
最近鸡肉行情稳定
2025-12-12 15:42
经验之谈
2025-12-12 15:40
“反内卷”,快消
2025-12-12 15:28
高价烟彻底凉凉了
2025-12-12 15:25
2025避坑指南?36
2025-12-12 15:23
2025第一场雪吃炖
2025-12-12 15:21
太难了 真的扛不
2025-12-12 15:08
2025年12月5日全
2025-12-12 15:06