发布信息
登陆/注册
搜索
搜索
导航
首页
产品供应
产品求购
企业库
酒业展会
行业资讯
认证会员
站内搜索
食品餐饮
当前位置:
首页
食品餐饮
正文
食品工程专业设计
作者:本站编辑
2025-12-07 08:52:36
1
食品工程专业设计
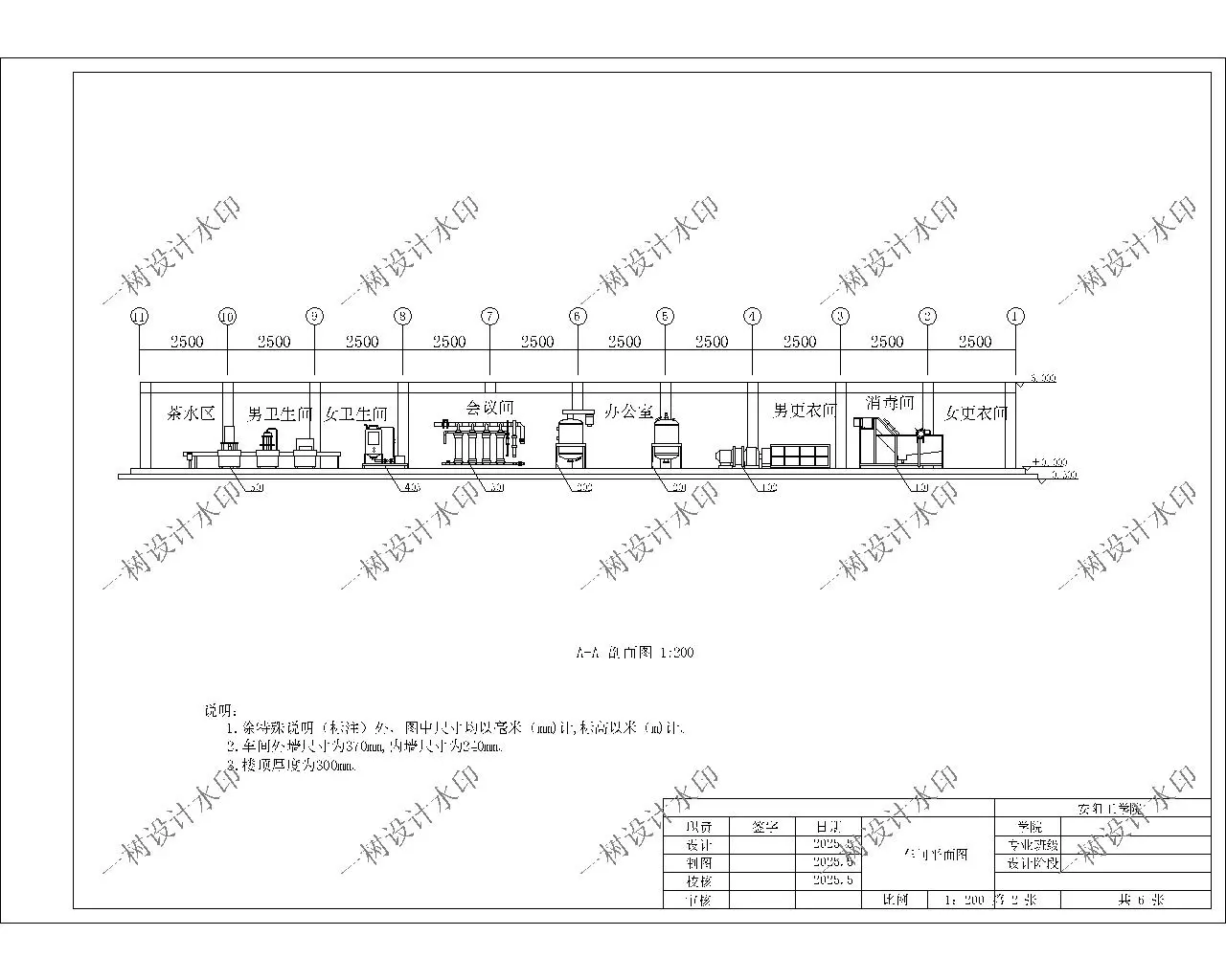
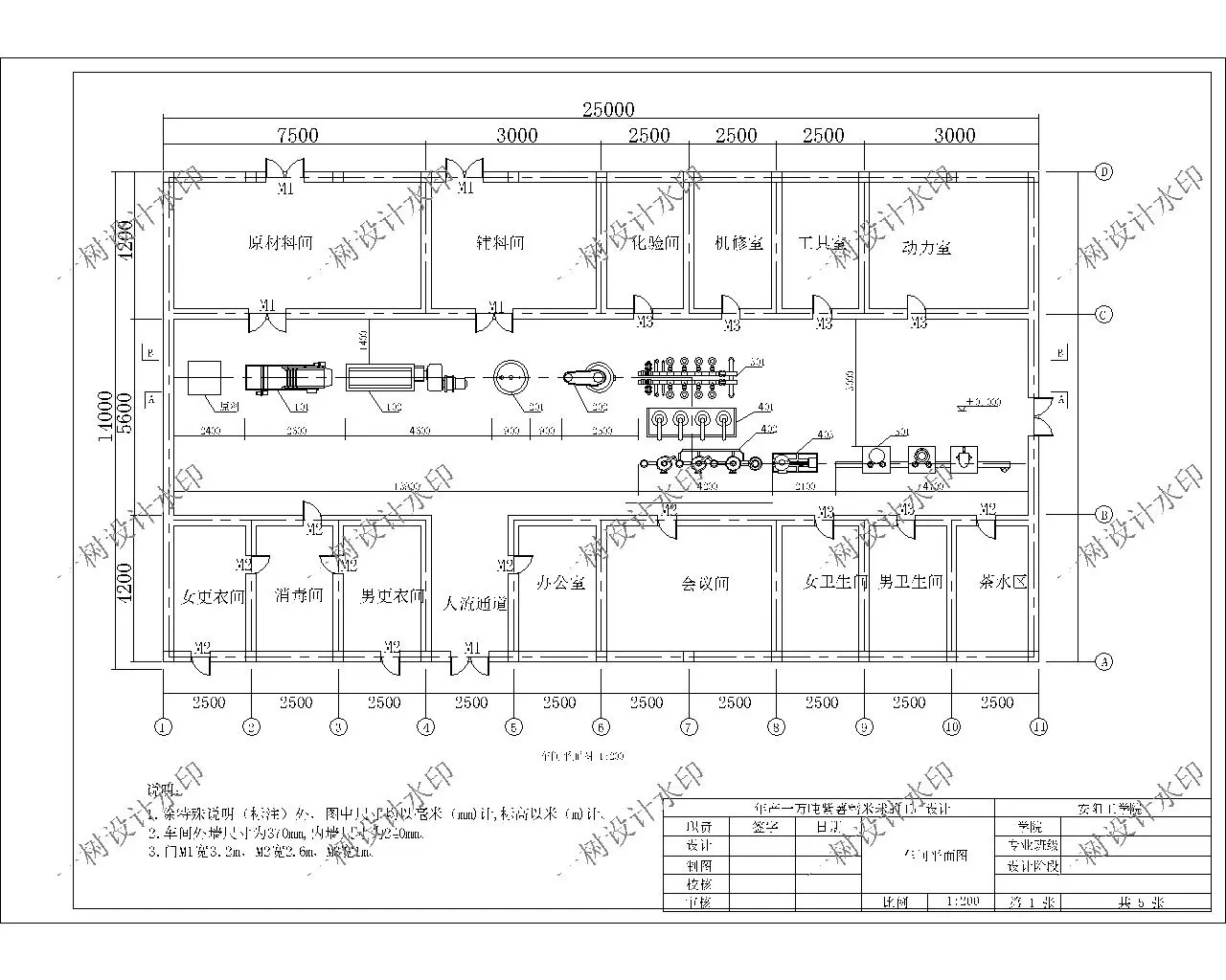
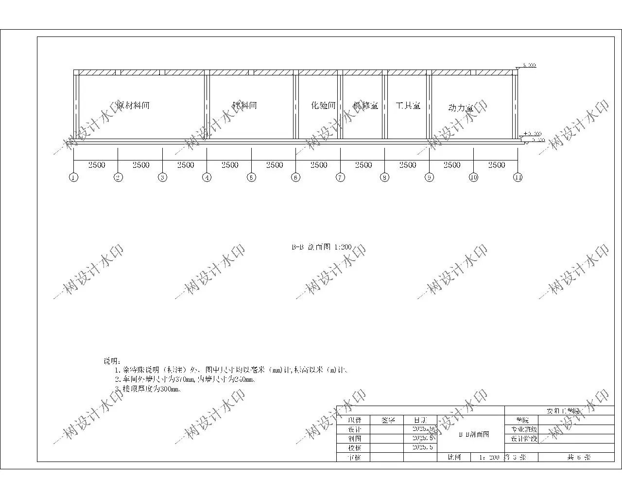
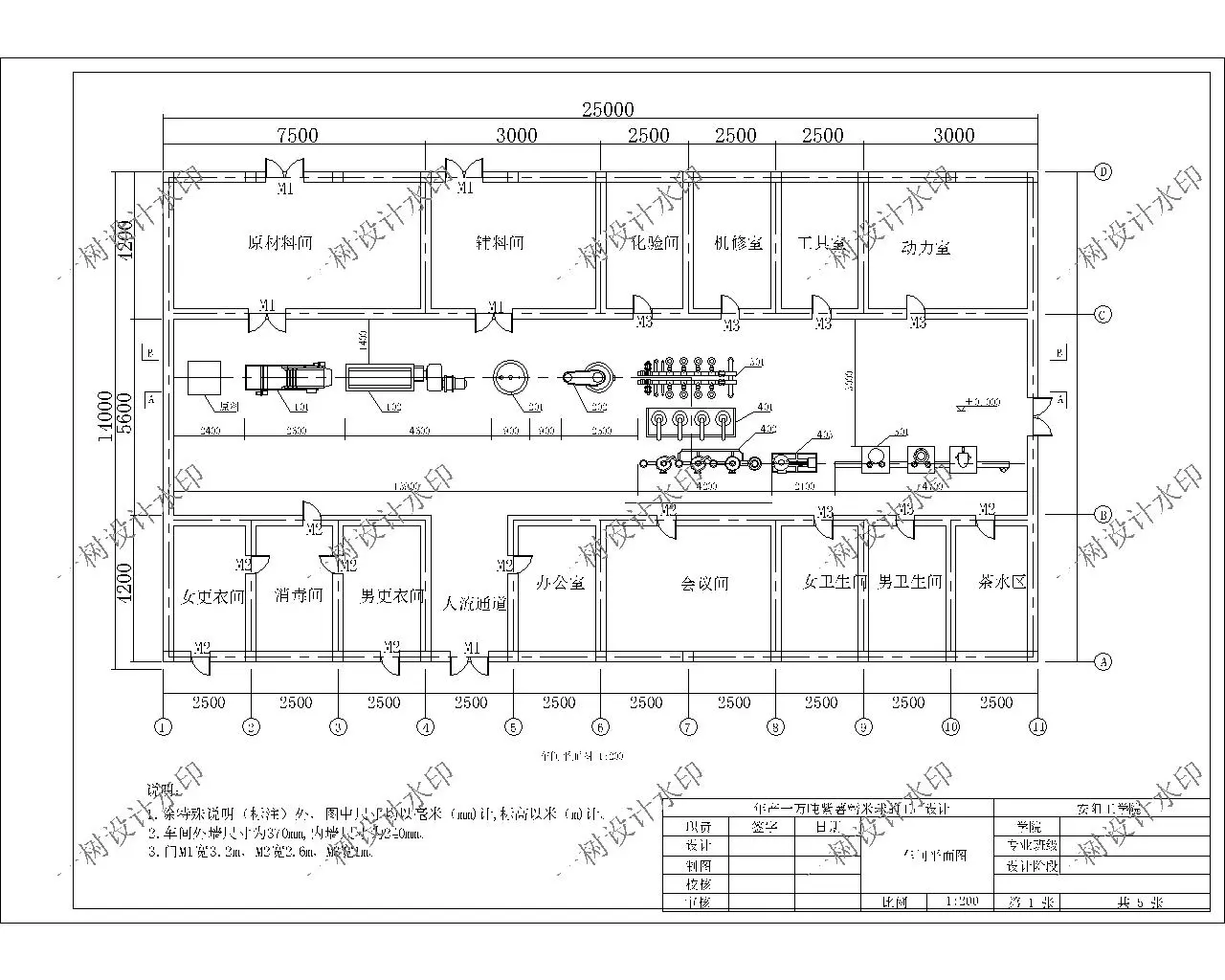
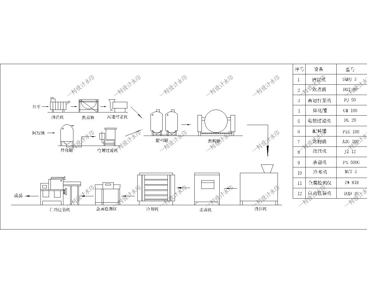
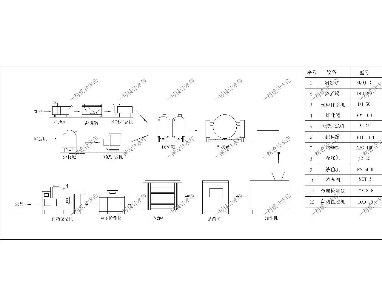
听我客户说用这个标题,可以很快找到我,这是最近的接的一些图纸,也有些库存图,都是些平面,立面剖面图纸,都是些食品专业的,这一篇都是食品的,紫薯糯米球工厂设计,马铃薯淀粉工厂设计,红枣阿胶软糖工厂设计,还有很多图纸为展示,篇幅有限,比如啤酒,饼干,固体饮料,罐头等等,有需要私聊,一般客户都是要2-3张,也就杯奶茶钱,这篇展示食品,还有制药专业,化工专业,等下一篇更新,有些地方只接一份,就是防止重复,这些设备也有些备用的,很多具体要求私聊吧。
#作业设计
#cad工厂设计
#生产工艺流程图
#课程设计
#工程设计
#大学生作业
#食品考研
下一篇:
有色又要开始了
上一篇:
就是要满足市场需求
相关内容
查看全部
央厨供应链大变革
2025-12-12 15:47
这老哥店也关了,
2025-12-12 15:45
最近鸡肉行情稳定
2025-12-12 15:42
经验之谈
2025-12-12 15:40
“反内卷”,快消
2025-12-12 15:28
高价烟彻底凉凉了
2025-12-12 15:25
2025避坑指南?36
2025-12-12 15:23
2025第一场雪吃炖
2025-12-12 15:21
太难了 真的扛不
2025-12-12 15:08
2025年12月5日全
2025-12-12 15:06