



© 宋肖澹
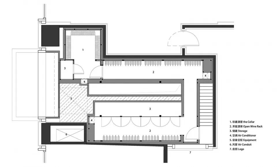
方形是主导空间形态,构建出一层展示销售区,阁楼存酒廊和珍藏酒窖三个功能性区域;三角形的顶光定义出美术馆的气质;圆形以1/4弧完成了顶与墙的衔接。

























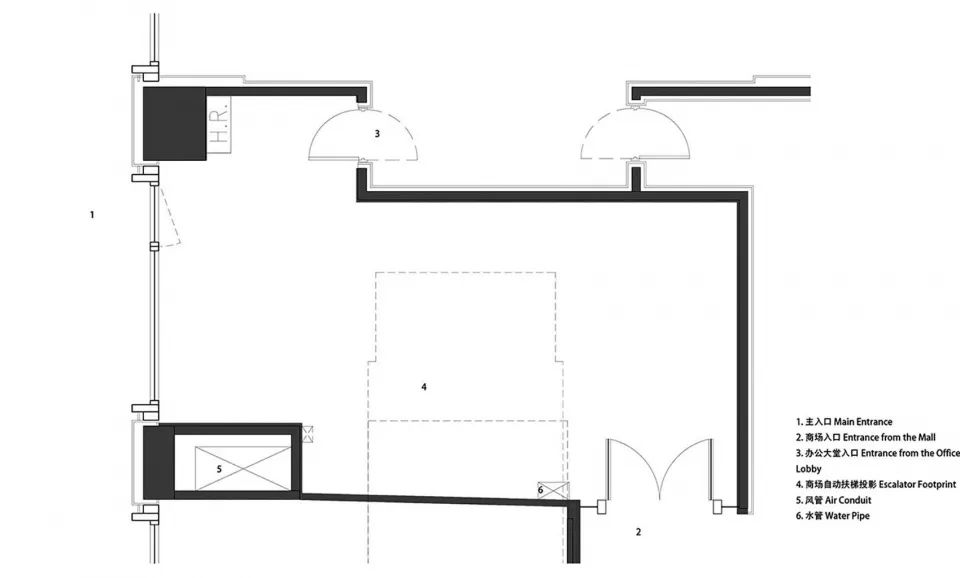
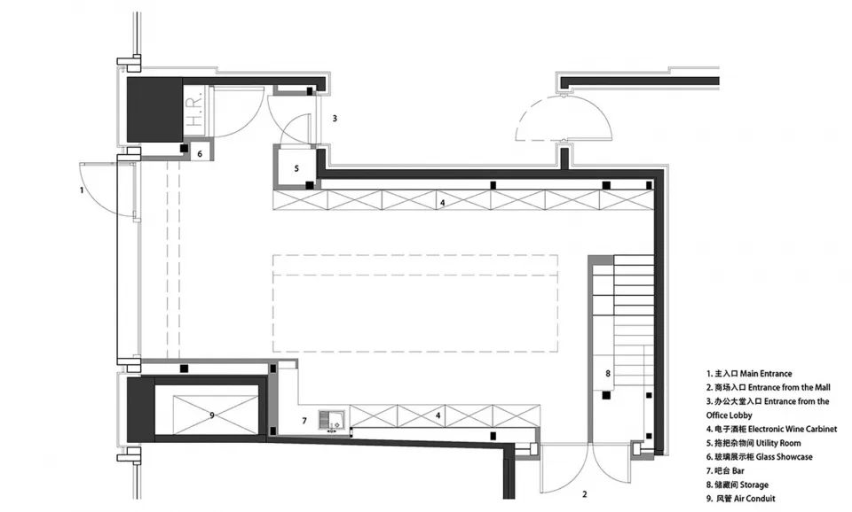
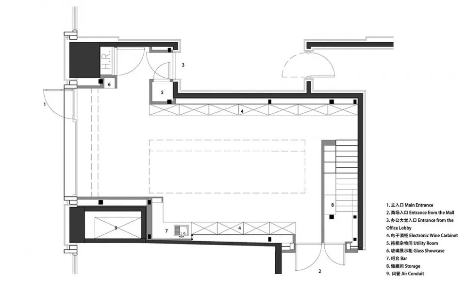
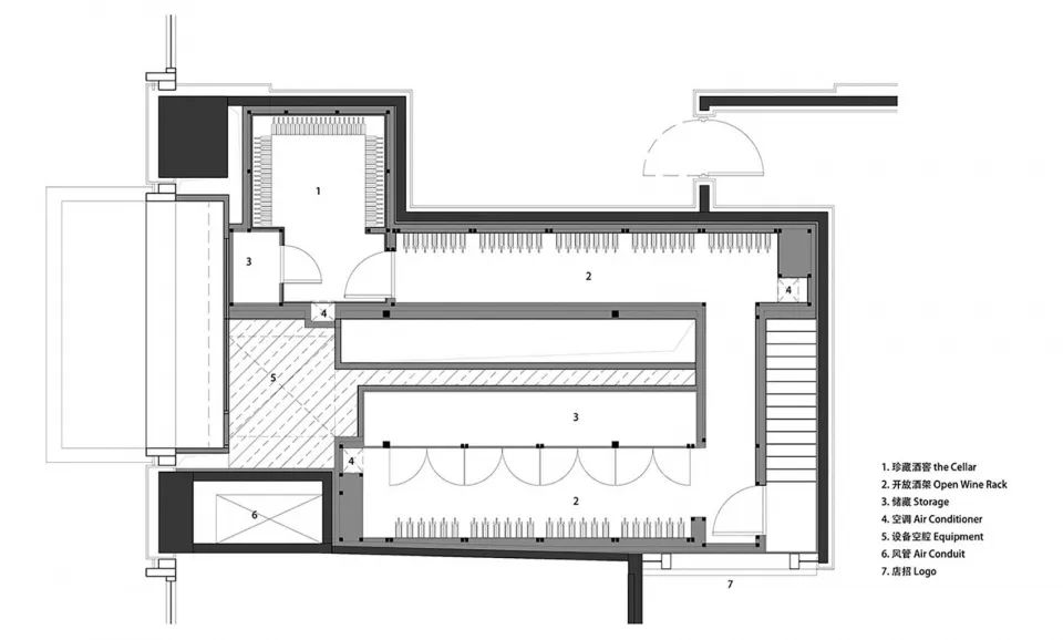
项目图纸




项目名称:Caveau de XTD
项目类型:室内设计
设计方:MONOARCHI 度向建筑
公司网站:www.monoarchi.com
联系邮箱:info@monoarchi.com
项目设计:宋小超,王克明
设计团队:宋小超,王克明,方媞媞
设计年份:2022-2023
完成年份:2023
项目地址:黄浦区湖滨路208号, 上海市
建筑面积:96㎡
摄影版权:宋肖澹,ChaoS
业主:上海永田酒业有限公司 Vinforever Fine Wines
施工方:上海韬普建筑装饰有限公司Shanghai Taopu Architectural Decoration Co. , Ltd.
灯光供应商:上海孚希威照明科技有限公司 Shanghai Fuxiwei Lighting Technology Co. , Ltd.
不锈钢供应商:上海睿括金属制品有限公司
酒柜供应商:华廷酒窖 WINE TOWN CELLAR
材料:微水泥,硅藻泥,不锈钢,大理石,亚克力




