
规划 | 建筑 | 风园 | 环艺 | 展示 | 视传 | 工业 | 动画
软件 | 手绘 | 方案 | 竞赛 | 专升本 | 考研 | 留学
▼

更多设计人提升资讯关注【观内外】
博览建筑类型包括各类博物馆、展览馆、以及其他规模的陈列馆、展览 中心等。博物馆具有采集保管、调查研究、普及教育三大基本功能。
01
博物馆的功能
组成及功能分析
· 01 博物馆的功能组成
基本组成功能:展览陈列区、观众服务区、藏品保管区、文保技术区、行政管理区、学术研究区、设备后勤区。其功能分区及功能关系见下图。
· 02 博览建筑流线
一般分为观众流线、专业人员流线、藏品流线、行政管理流线,各流线有单独的出入口与外界联系。

功能分区交通流线图
图片来源:建筑设计资料集
02
博物馆建筑
设计的相关规范
· 01 总平面图
①馆区内应功能分区明确,室外场地和道路布置应便于观众活动、集散和藏品装卸运送。
②陈列室和藏品库房若临近车流量集中的城市主干道布置,沿街一侧的外墙不宜开窗。
③新建博物馆的基地覆盖率不宜大于40%.
④馆区内应设置自行车和机动车停放场地。
· 02 建筑设计
①藏品的运送通道应禁止出现台阶,大于1:12的坡道。对温度、湿度较为敏感的藏品不宜露天运送。
②大、中型馆的藏品宜按质地分间储藏,每间库房面积不宜小于50㎡,应单独设门。重量或者体积较大的藏品宜放在多层藏品库房的地面层上。
③藏品暂存库房、鉴赏室、储藏室、办公室等用房应设在藏品库房的总门之外。
④收藏对温湿度较敏感的藏品,应在藏品库房或藏品库房的入口处设置缓冲间,面积不小于6㎡.
⑤陈列室的面积、分间应符合灵活布置展品的要求,每一个陈列主题的展现长度不宜大于300m.
⑥陈列室单跨时的跨度不宜小于8m,多跨时的柱距不宜小于7m.
⑦大、中型馆内陈列室的每层楼面应配置男女厕所各一间,若该层的陈列室面积之和超过1000㎡,则应该再适当增加厕所的数量。男女厕所内至少应该设置2个大便器,并配有污水池。
⑧大、中型馆宜设置报告厅,位置应与陈列室较接近,并便于对外开放。报告厅宜按1-2㎡/座设计。
⑨藏品库区的防火分区面积,单层建筑不得大于1500㎡,多层建筑不得大于1000㎡,同一防火分区的隔间面积不得大于500㎡.陈列区的防火分区面积不得大于2500㎡,同一防火分区内隔间面积不得大于1000㎡.
⑩藏品库区电梯和安全疏散楼梯应该设置在每层藏品库房的总门之外,疏散楼梯应采用封闭楼梯。
⑪陈列室外门应该向外开启,不得设置门槛。
03
博物馆建筑
方案设计的应试要点
· 01 总平面图设计的要点
妥善选择馆区用地与城市衔接的主次入口位置,使之对外做到主入口能迎合主要人流方向,次要入口便于馆内人员和藏品的进出,且两者适当拉开距离,有利于博物馆建筑对外开放部分与馆内作业两大功能分区的布局。
合理把握馆区内用地的“图底关系”,做到“图”的覆盖率不大于40%.建筑适当集中,且以南北朝向为主。场地平面形状便于按室外功能分成若干区,且有足够的馆前广场和停车场地。
· 02 建筑方案设计的要点
根据建筑用地出入口位置与总平面图的“图底关系”使博物馆的展览陈列区、观众服务区、学术研究区、收藏保管区、行政办公区、与藏品运送路线互不交叉。
陈列室是博物馆的核心部分,需要解决好“三线”(流线、光线、视线)的设计问题。
对于考生来说,重点是解决陈列室的流线问题,陈列区的布展形式分为以下几种:
上述陈列方式及人流组织要合理、路线要简洁,防止逆行和阻塞,并安排好观众休息的场所。
陈列室的开间应不小于7m,当陈列室为单线陈列时,跨度应不小于7m;当陈列室为双线陈列时,跨度应不小于10m.陈列室净高一般为4~6m.
快题考试中需要对展厅内部的陈列方式进行简单设计,对于面积较小的展厅可不另设展墙,对于面积较大的展厅通常采用布置展板的方式划分空间,一进深可采用单线陈列,两进深以上可采用双线陈列。
陈列室内部的布置形式一般有以下几种,可做参考:

陈列布置形式分类图
图片来源:建筑设计资料集
藏品库区内不应该设置其他用房,每间藏品库房面积不宜小于50㎡,并单独设门。藏品库房应尽量少开窗,以免阳光射入,藏品库房应接近陈列室布置。
垂直交通设施的布置应便于观众参观的连续性和顺序性。
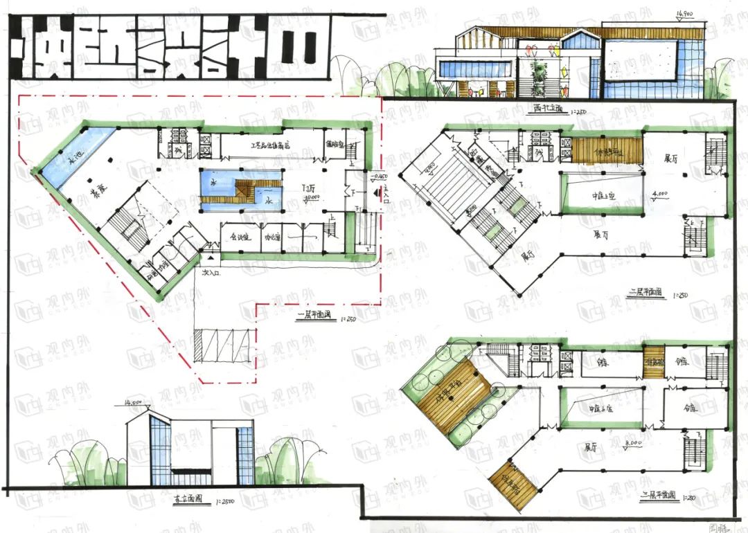
04
博物馆实际案例
· 宁波帮博物馆 / 何镜堂
可供快题借鉴的点:
05
快题实例
· 01 华工2022建筑学院学术展览附楼设计


· 02 华工2014小型岭南社区民宿博物馆设计


· 03 华工2017某建筑学院院史展览及校友交流中心设计




· 04 深大2007私立博物馆设计


· 05 深大2012区级城市规划建设展览馆


(点击文字查看更多精彩文章)

| 精彩往期
建筑考研理论 | 中国建筑史带画示范
建筑考研理论 | 中国建筑史带画示范2
建筑真题 | 23华工真题解析速来!真题/书籍包邮送到家!
闭眼囤系列 | 建筑快题书籍送送送!
2023年中央美术学院建筑学院研究生毕业作品展(上篇)
建筑案例 | 木心美术馆平面与空间构成图解
建筑案例 | 以建筑为核心的庭院建筑在高差场地中的适应性——以黑竹沟禅驿精品酒店接待中心设计为例
| 上岸分享
广大建筑学考研,总分前三上岸 —— 坚持不懈,金石可镂
考公考研同时上岸!且看建筑学卷王怎么高效利用时间?
华工建筑考研总成绩状元,看看学霸如何学习

| 23秋季班
| 24年设计集训营
| 23学员上岸战绩

课程咨询
联系我们
* 添加任意一位学姐咨询即可 *
茜茜学姐
五月学姐
小苏学姐
宿舍+自习
校园环境

学习氛围
精彩集训


纵观内外
企业交流

更多干货
扫码交流

立足世界
关注我们
【观内外】&【观内外考研】
全网同名,搜索关注

























