一、总体概况
首都国际会展中心(图1)是由北京北辰实业集团公司旗下的北京辰星国际会展有限公司投资建设,由北京市建筑设计研究院股份有限公司牵头,与扎哈·哈迪德建筑事务所、艾奕康环境规划设计(上海)有限公司联合设计。项目位于北京市顺义区,总建筑面积61万㎡,由配套酒店、展览中心、会议中心、附属设施等功能组成。
首都国际会展中心大酒店(图2),是首都国际会展中心项目的核心配套与收官工程,坐落于场地最北侧,与会议中心分列北登录厅东西两侧,通过专属连廊实现与各展厅、会议区的无缝衔接,成为会议会展功能的有力补充。


图1 项目整体鸟瞰图

图2 酒店实景图
二、项目介绍
酒店总建筑面积6.1万㎡,地上8层、地下1层,建筑高度约45m。设置约410间客房及套房、宴会厅及各规模会议室、各类餐厅、行政酒廊、恒温泳池、24小时健身房等,是一座全功能业态的标准五星级酒店。


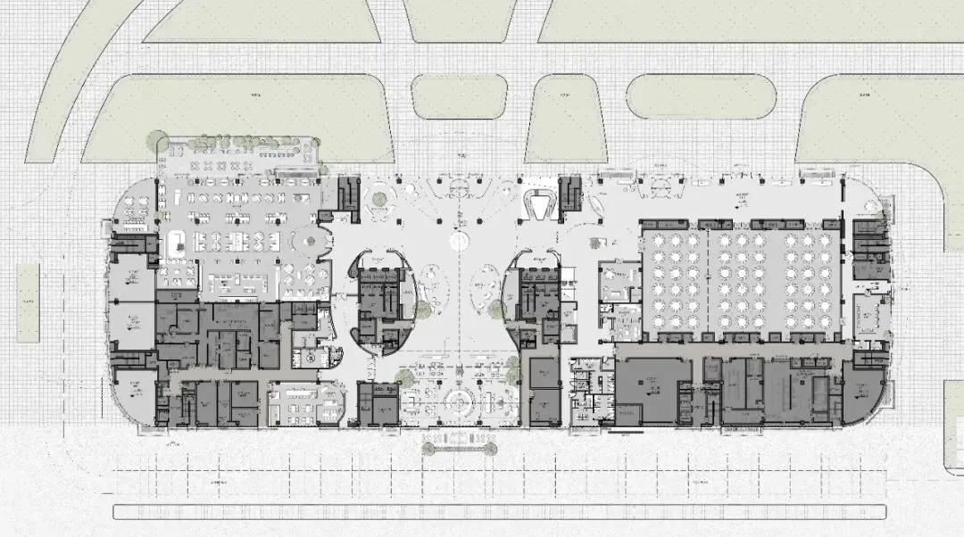
图3 酒店首层平面图
酒店首层(图3)中心区域设置大堂、大堂吧,为两层通高空间,开敞通透。西侧为餐饮区,设置了全日餐厅和特色餐厅,沿街设置部分商铺,方便对外经营。东侧设置了一个1000㎡的宴会厅以及商务中心、贵宾休息室等。东西两侧通过大堂空间有机组合形成空间串联。二层西侧为餐饮区,主要布置中餐厅、红酒吧等。东侧为会议区,布置若干中小型会议室,通过扶梯和艺术楼梯与一层宴会区形成互动与联通。东西两侧通过一座时尚轻巧的钢结构空中连桥相互连通,连桥横跨大堂上空,与首层形成空间联动,丰富了空间层次。另外在二层东南角设置连廊与北登录厅连接,方便顾客便捷到达会议中心和各展厅。


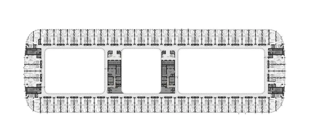
图4 酒店标准层平面图
酒店三层~八层为客房层(图4),每层布置约60~80个客房不等。在三层北侧中心位置设置了行政酒廊,两层通高,景观条件优越,彰显尊贵品质。
地下一层主要功能为酒店康体区,布置恒温泳池、健身房、瑜伽室等康体功能。其余空间为酒店后勤用房和设备机电用房等。
三、设计特色
1.联动、高效、复合的会展服务体系
整个项目以会展联动、高效动线、复合功能为核心功能导向,立足国际大型展会、高端发布会、专业论坛及商务活动的全链条需求,深度整合展览展示、会议论坛、品牌发布、商务洽谈、配套服务、智慧运营等多元场景,实现会展核心功能与商务、商业、酒店、交通、后勤服务等功能的高效衔接与有机融合。通过优化空间布局、提升流线效率、强化功能复合,构建一站式、一体化、全周期的会展服务体系,全面满足国际化、专业化、高品质会展活动的举办要求,助力打造具有国际影响力、区域引领力与行业示范效应的复合型会展标杆项目。


图5 酒店局部实景图
2.“紫金丝带”表达中国与世界互联互通之音
项目以寓意祥瑞的“紫金丝带”造型为设计理念(图5),丝带交织于各个展厅和酒店、会议中心之间,通过舒展飘逸的弧形屋顶与流畅曲面幕墙为设计元素,巧妙融入故宫琉璃瓦的古铜色调,于现代形制中承载东方文脉,打造出兼具国际时尚感与东方礼序气质的灵动流畅的建筑形象。
“紫金丝带”寓意共建“一带一路”战略,表达中国与世界互联互通之音。鱼骨式布局与一期协调统一,建筑空间对称,形象庄重大气,流线完整高效。同时是落实首都“四个中心”战略定位、服务国际交往中心建设、承担重大外交外事活动的舞台,将发挥向世界展现我国发展建设成就的重要窗口作用。
3.兼具科技感与东方美学的室内空间
酒店以“生长共荣之脉・链接未来”为核心设计主题,深度延续项目整体“紫金丝带”的创意脉络与建筑语言,将舒展流畅的曲线形态由外至内贯穿始终,有机融合现代简约格调与东方雅致气韵,打造兼具前沿科技感与深厚东方美学的高端会展酒店室内空间(图6)。


图6 酒店室内效果图
整体室内设计以流动、舒展、通透为空间基调,通过凹凸有致的精致纹饰、柔和连续的曲面造型、富有韵律的线条肌理,呼应建筑“紫金丝带”的灵动形态,形成内外统一、一气呵成的视觉效果。在材质、色彩与光影的精心营造下,空间开阔大气、层次丰富,既彰显国际会展酒店的现代品质,又传递含蓄端庄的东方礼序与文化底蕴,为国际商旅、展会宾客提供兼具仪式感、舒适度与辨识度的沉浸式体验。
4.贯通高效的酒店客房经典布局
酒店客房标准层采用“双核心筒 + 环形走廊”的经典高效布局,充分契合整体项目会展接待的高强度运营需求。标准层集中设置6部客梯、2部消防电梯及专用布草服务间,通过核心筒集约化布置,实现垂直交通、后勤服务与疏散功能的高效整合,最大化提升客房使用效率与运营管理效率,并形成简洁清晰、互不干扰的客人动线与服务动线,为展会高峰期间的大规模客流提供舒适、顺畅、高效的入住体验(图7)。


图7 酒店客房区效果图
客房空间坚持高标准化设计,除少量转角景观客房外,其余客房均实现户型、模数、机电点位及装修做法的高度统一,便于工业化生产、快速施工与后期运维。在统一标准的基础上,通过细节材质、灯光氛围、软装搭配及功能配置的精细化设计,真正实现“标准化品质,个性化体验”,既保证国际会展酒店的专业品质与稳定水准,又为宾客营造舒适雅致、富有辨识度的旅居空间。
四、结语
如今,首都国际会展中心大酒店已正式成为北京会展配套服务的标杆示范酒店,凭借国际化硬件标准、精细化运营管理与沉浸式美学体验,为来自全球各地的参展商、商务宾客、国际嘉宾提供国际水准的高品质旅居服务。酒店以专业、高效、完善的全链条接待能力,全面支撑各类国家级展览、高端国际会议、重要商务论坛及大型品牌活动的顺利举办,为首都国际交往中心建设、会展产业高质量发展提供坚实有力的服务保障与重要支撑。

注:文中图片由北京市建筑设计研究院股份有限公司、扎哈·哈迪德建筑事务所、CCD深圳郑中设计事务所、张锦影像工作室提供。
项目信息
项目名称:首都国际会展中心大酒店
项目地址:北京市顺义区首都机场临空经济示范区
建设单位:北京辰星国际会展有限公司
设计总承包单位:北京市建筑设计研究院股份有限公司
方案设计单位:扎哈·哈迪德建筑事务所+北京市建筑设计研究院股份有限公司(联合体牵头方)+艾奕康环境规划设计(上海)有限公司
施工单位:北京建工集团有限责任公司
BIAD设计团队
第一建筑设计院:杜松、刘志鹏、张亚洲、范迪龙、张雅楠、段钧、张志强、孙乐、李昕、崔佳昭、陈莹、郝晨思、孙晟浩、袁慧瑛
第三建筑设计院:于波、周俊仙、赵大伟、韩修远、韩巍、李芊、方启霄、郝彤、陈雅昕、李学超、董艺、王凌宇、魏恒杰、阮家琪、耿弈
顾问信息
室内顾问:CCD深圳郑中设计事务所
标识顾问:CCD深圳郑中设计事务所
厨房顾问:北京快易服科技有限公司
声学及会议工艺系统顾问:中广电广播电影电视设计研究院有限公司
幕墙顾问:中建研科技股份有限公司
泛光照明顾问:栋梁国际照明设计(北京)中心有限公司
景观顾问:易兰(北京)规划设计股份有限公司
