

课程简介 /INTRODUTION
《建筑装饰制图与识图》是环境艺术设计专业核心基础必修课,面向环艺及相关专业学生,衔接设计理念与实践落地,系统传授制图规范、识图技巧与绘图方法,为学生后续专业学习和职业发展奠定基础。
一、课程定位与核心目标
课程以国家制图标准为准则、行业需求为导向,定位“理论筑基、实践赋能”,实现“识图有方法、制图有规范、应用有能力”的教学目标,培养学生严谨的职业作风。
1.知识目标:掌握正投影法等核心理论,熟悉各类制图标准规范,了解制图工具使用及图纸构成逻辑。
2.能力目标:能准确识读各类设计图纸,规范完成手绘制图与软件绘图,具备将设计理念转化为标准图纸的实操能力。
3.素养目标:培养空间想象与逻辑分析能力,树立规范意识与协作意识,养成严谨务实的工作态度。
二、课程核心教学内容
课程内容贴合行业需求,分三大模块层层递进,涵盖从基础入门到综合应用的核心内容,结合行业最新规范优化教学。

教师简介
朱嘉琦,中共党员,毕业于山东工艺美术学院,艺术设计硕士。曾在国际会议和《山东艺术》等期刊发表多篇论文,并参与了众多设计实地项目;曾在“泛华园林杯”、“齐鲁青未了”、山东建筑装饰设计比赛、山东省专业学位研究生美术与设计作品大赛、“丝绸之路 ”国际艺术大赛以及USDA美国新概念设计艺术奖(总赛区)等设计比赛中获得设计奖项。





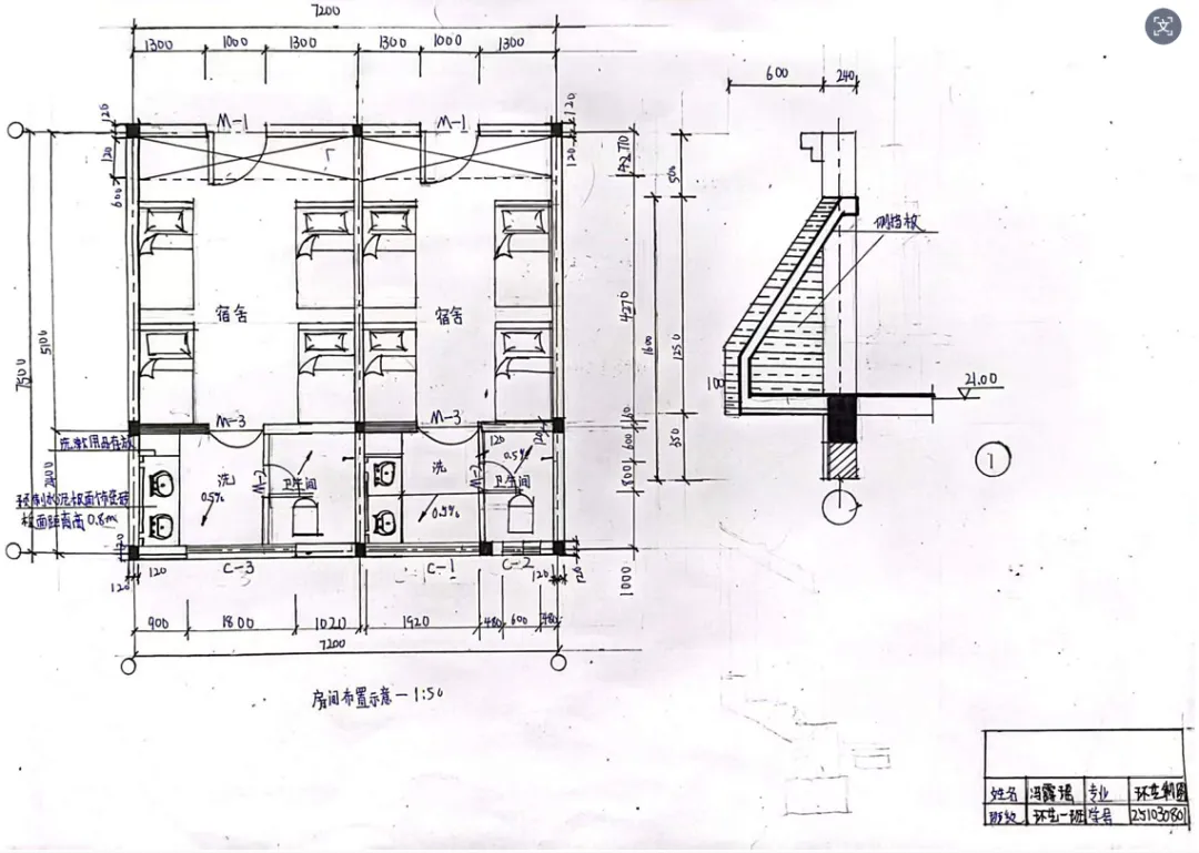
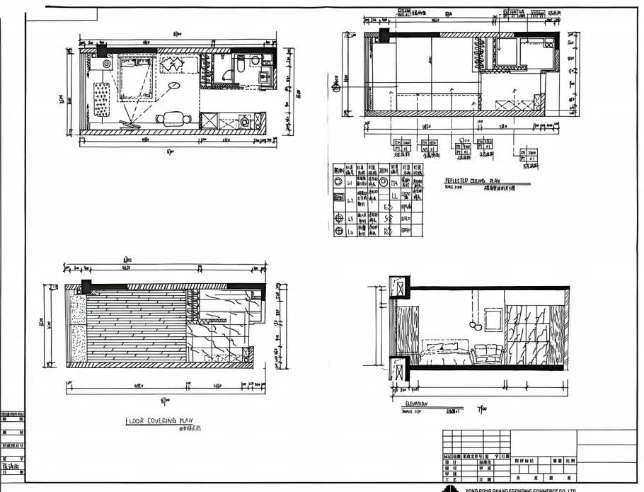
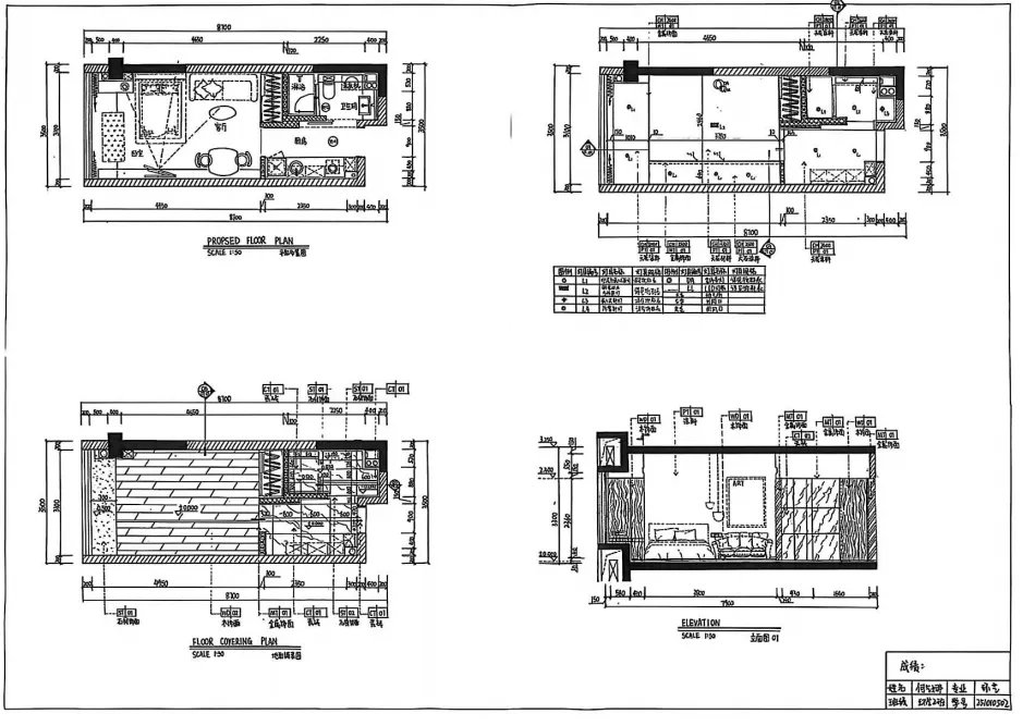
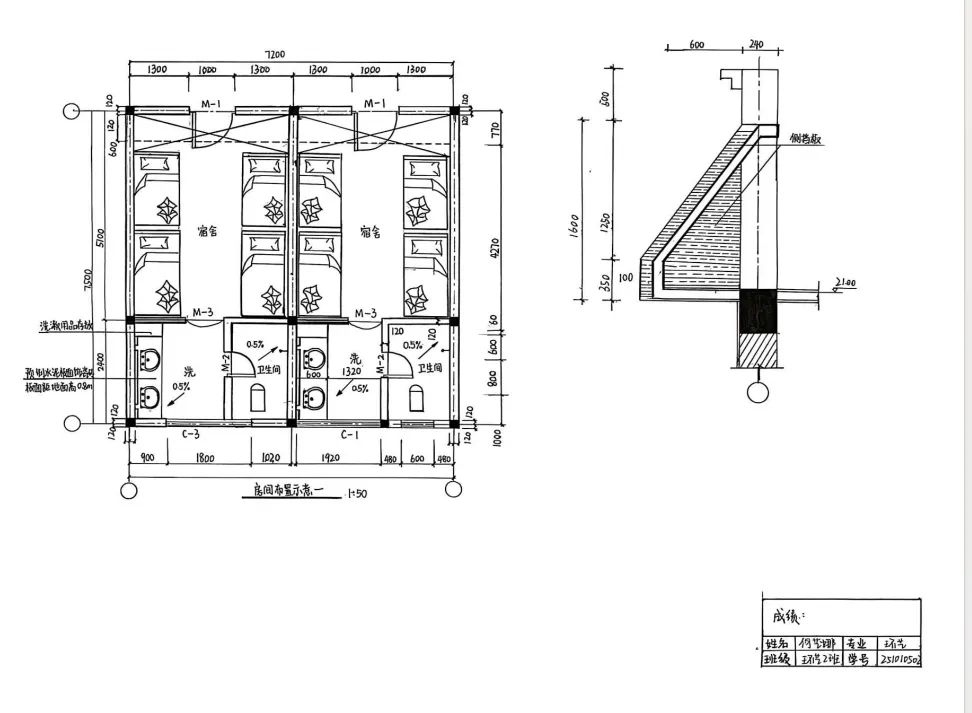
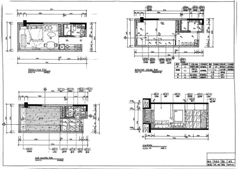
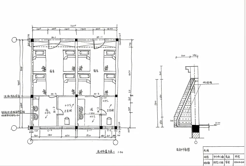
作者:冯露瑶

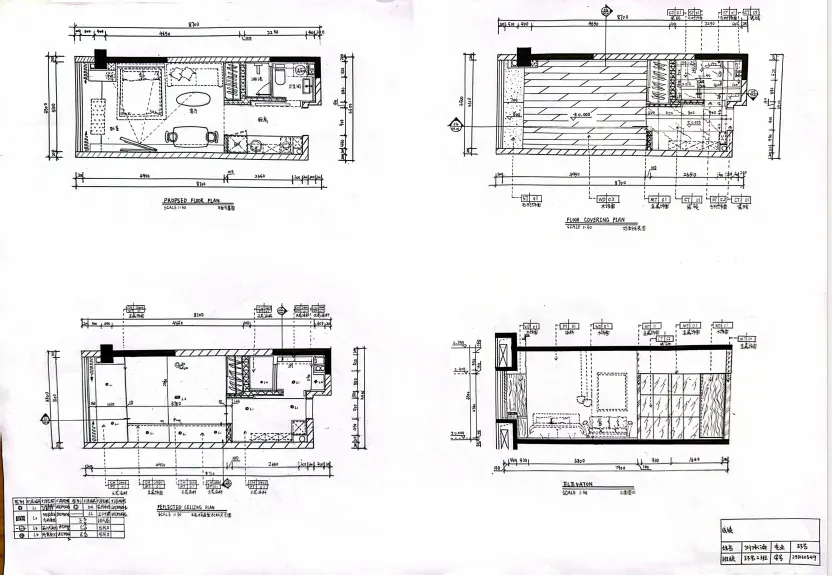
作者:孔雨轩


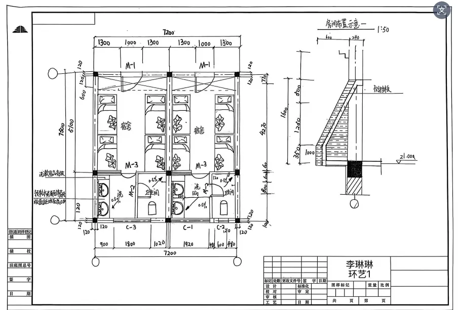
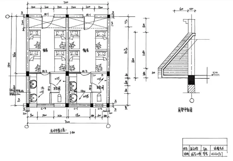
作者:李琳琳




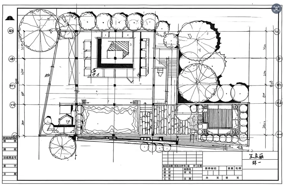
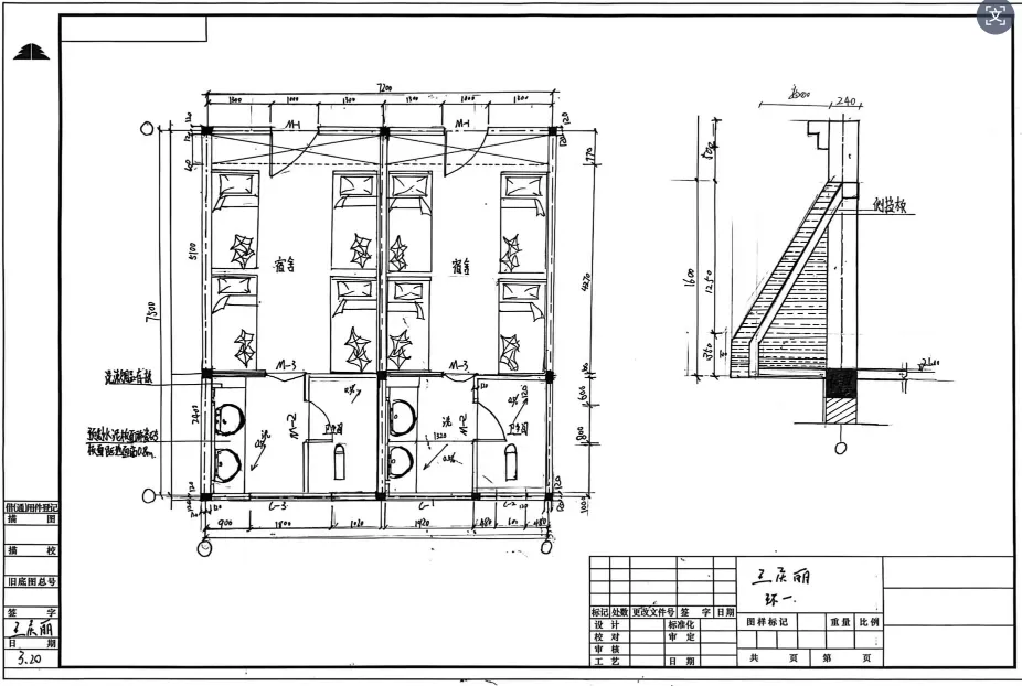
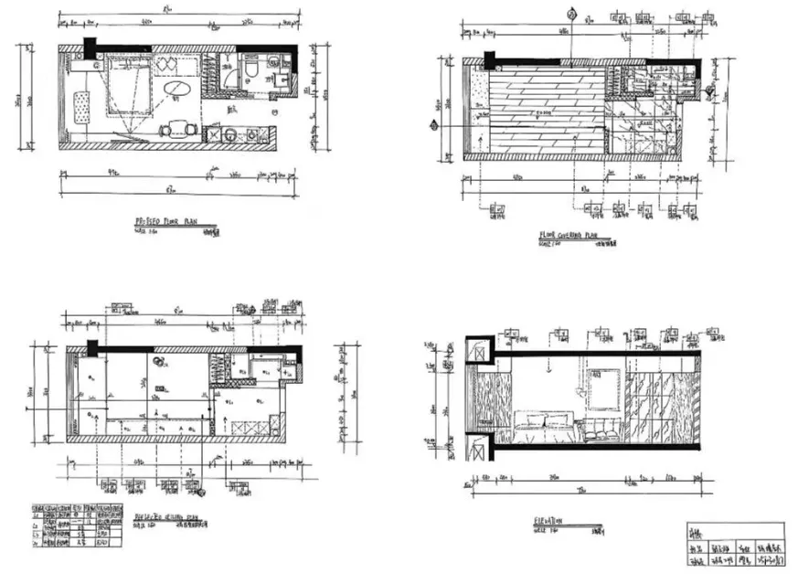
作者:王庆丽





作者:赵俊颖

作者:陈诗雨



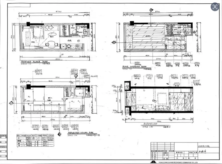
作者:何艺娜




作者:余金雨



作者:张莹莹


作者:荆秀怡

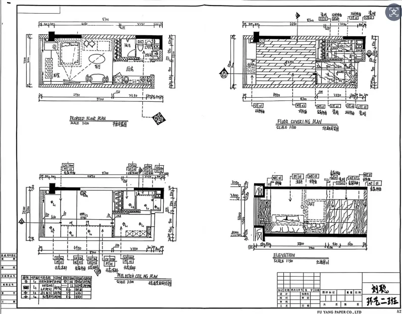
作者:刘聪




作者:刘依涵



作者:张子烨

作者:马啸坤

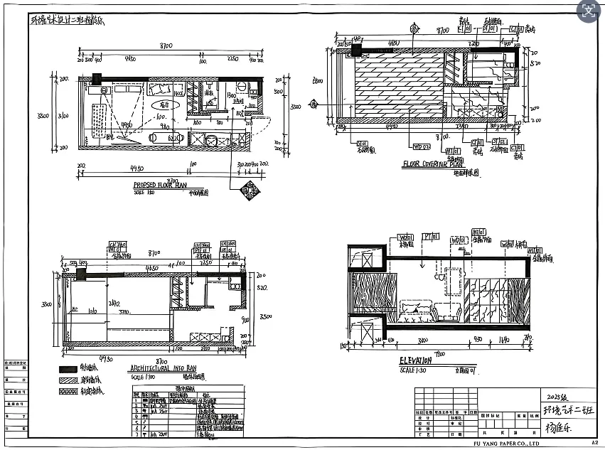
作者:杨佳乐

END
【欢迎关注青春山设环艺官方微信】
编 辑:余 金 雨
审 核:曹 扬
终 审:张 娟
