
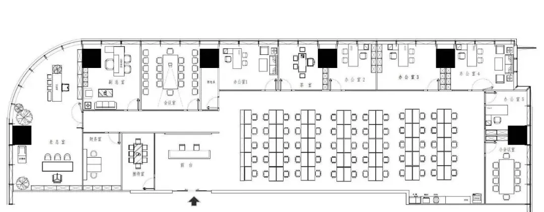
皇庭中心 精装办公租赁 卓悦中心商圈
福田中心区【会展中心】地铁上盖物业 卓悦中心商圈
电梯口单位三面采光 全新精装 拎包入驻办公
【参考面积】: 1280.7㎡
【格 局】:12+1东北西
超甲级写字楼 适合证券 银行 金融 投资 保险 各行业总部
直租热线:136-9195 6511 韩经理 无中介费









感谢关注微信公众号
(新房、写字楼、商铺租售)


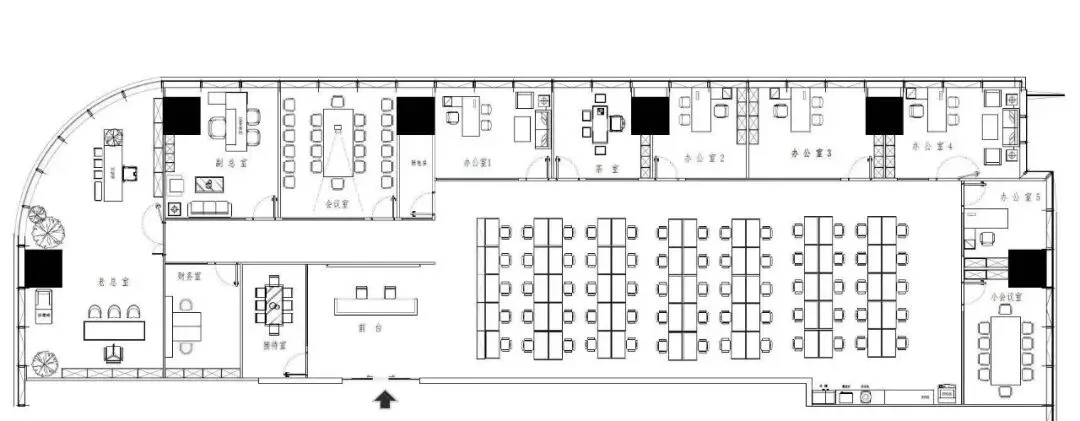
皇庭中心 精装办公租赁 卓悦中心商圈
福田中心区【会展中心】地铁上盖物业 卓悦中心商圈
电梯口单位三面采光 全新精装 拎包入驻办公
【参考面积】: 1280.7㎡
【格 局】:12+1东北西
超甲级写字楼 适合证券 银行 金融 投资 保险 各行业总部









感谢关注微信公众号
(新房、写字楼、商铺租售)
