

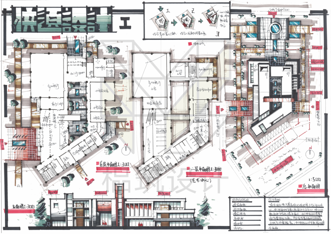
2019年大连理工大学初试快题






01
考点回应
建筑从第五立面回应基地形态,总图入口选择准确,考虑了音乐喷泉的因素,组织了主要道路流线与音乐喷泉的流线。
停车位考虑动静,选择位置佳。
02
界面组织
建筑立面虚实比例适中,手法多样但不复杂,比较出效果。
建筑的界面天际线丰富。
03
形体逻辑
采用板与形体的交错穿插,凹凸推进,光影关系丰富。
包板和柱的组合增强光影关系。
靠近建筑的配景颜色较深,能起到衬托建筑的作用。


01
考点回应
建筑功能分区清晰、明朗。
展览流线较完整,不交叉。
整体形态基本符合建筑形态。
02
界面组织
坡屋顶与框架的搭配,丰富第五立面。
建筑立面手法统一,材质多样。
03
形体逻辑
等坡屋顶断裂,形题局部挖空,尾端采用框架,视觉“L”逻辑不变。
展览馆建筑主入口附近形体采用两个简单的形体叠加穿插,简洁大气。


01
考点回应
二层沿着音乐喷泉,形成平台通道,回应场地要素。
二层局部挖空,形成小平台,对周边建筑要素呼应。
02
界面组织
界面组织很整体,每个元素整体,链接度很高。
采用局部空间增高的方式,丰富建筑顶界面。
03
形体逻辑
三个条形形体组合,大小等量,左侧条形削去一角,破除呆板形象,增加活跃度,右侧条形也削去一角。


01
考点回应
建筑形体呼应场地的基本形态,形成两个明显带有穿插感的基本型。
竖向条形位于主轴线上,喇叭形的“C”形形成入口引导空间。
02
界面组织
界面组织横向处理,元素之间前后层级明显。
除了横平竖直的立面区域,采用斜向对称的手法,活泼有力。
03
形体逻辑
“一”与“C”字的穿插,基本的形体操作,形成的效果不错。


△ 榀筑教务老师

△ 榀筑设计小红书

△ 榀筑建筑考研B站
