
重庆两江新区公共租赁房投资管理有限公司(以下简称“两江公租房公司”)是重庆两江新区开发投资集团全资子公司,成立于2011年5月19日,注册资金10亿元。公司紧紧围绕两江新区龙盛水土新城“招商引资的配套、人才汇聚的基石、市民安居的保障、城市发展的引导”四大定位,秉承“服务两江发展”理念,发扬“务实、创新、奉献、作为”企业精神,打造两江新区龙盛水土新城最大的保障性公益类国有企业,努力实现两江发展赋予的历史使命。现位于重庆市两江新区万寿福居、龙兴福居、天堡福居公租房的配套商业,面向社会公开招租。
一、项目简介
(一)万寿福居
万寿福居位于两江新区水土新城,总建筑面积约100万平方米,配套商业约10万平方米,住宅户数约1.7万套,预计居住人口可达5万人。现阶段,住宅配租约14000套,居住人口约35000人,主要服务于周边60多个高新技术企业。如重庆京东方光电科技有限公司、重庆莱宝科技有限公司、重庆两江联创电子科技有限公司、北大医药重庆大新药业股份有限公司、重庆超硅半导体有限公司等。本项目将打造成为辐射水土、静观、复兴片区的生态地标性全业态商业中心。
(二)龙兴福居
龙兴福居位于两江新区龙盛新城(重庆理工大学两江校区旁),总建筑面积约50万平方米,配套商业约5.6万平米,住宅户数约8200套,预计居住人口可达2.1万人。现阶段,住宅配租约7500套,居住人口约19000人,主要服务于周边50多个高新技术企业,如西北工业大学重庆科创中心、重庆北理工大学创新中心、重庆金康塞力斯汽车有限公司、重庆金世利航空材料有限公司、重庆渝翔航空飞行培训有限责任公司等。本项目将打造为服务理工大学、协同创新区的商务休闲区域商业中心。
(三)天堡福居
天堡福居位于两江新区龙盛新城,总建筑面积约53万平方米,配套商业约3.9万平方米,住宅户数约9000套,预计居住人口可达2.3万人。现阶段,住宅配租约5700套,居住人口约14000人,主要服务于周边30多个高新技术企业。如瑞豪(宝丽)科技有限公司、重庆沪光汽车电器有限公司、重庆赛工科技有限公司、重庆长安汽车股份有限公司、重庆桂诺光电科技有限公司等。本项目将打造成为独具特色的休闲生活风情商业街区。
二、招租区域及面积
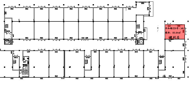
(一)万寿福居:41、42、44、45号楼局部,招租面积545.36平方米。


万寿福居41、42号商业楼一层平面图

万寿福居44、45号商业楼一层平面图
(二)龙兴福居:24号商业楼局部,招租面积105.80平方米。


龙兴福居24号商业楼第负一层平面图
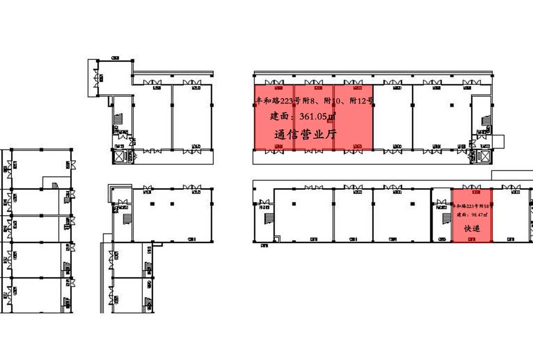
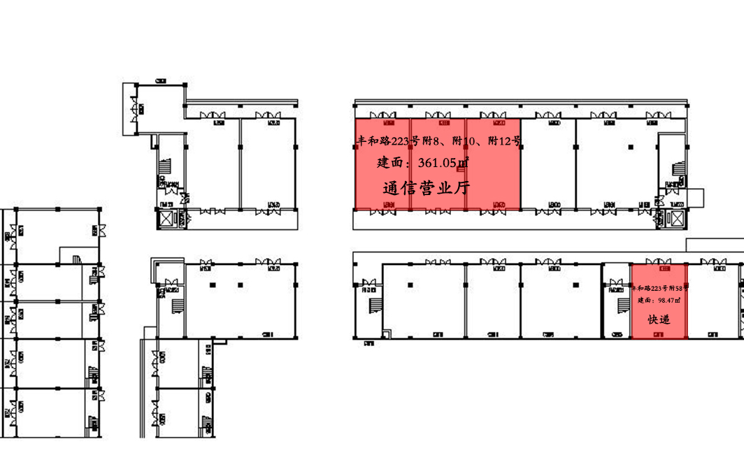
(三)天堡福居:10号商业楼局部,招租面积1280.74平方米。


天堡福居10号商业楼一层平面图

天堡福居10号商业楼三层平面图
三、业态规划及招租政策

详见附件1
四、招租方式及对象
(一)招租方式
1.本次招租在公平公正原则下,采用公开竞标(一次性暗标)。
2.开标当日现场提交标书至公证人员处,现场开标,在同一铺号中取租金报价最高者为中标人。
3.本次招租商铺均为存续经营状态,招租条件中不再另行给予装修期、免租期,原承租人参与公开竞标时,同等条件下享有优先承租权。
优先承租权,即原承租人租金报价不是现场最高报价时,可按最高报价优先其他竞标人取得该商铺继续承租权;原承租人投标报价与投标现场最高报价相同时,原承租人也享有优先承租权。享有优先承租权的原承租人参与竞标时,公证单位需根据现场报价实际情况,当场向原承租人明确是否行使或放弃优先承租权,并当场完善确认手续。若原承租人放弃优先承租权,则由最高报价竞标人取得该商铺承租权。
(二)招租对象
符合报名条件,且在规定时间内(报名时间截止前)足额缴纳投标保证金的竞标人。
五、招租组织
(一)报名时间:截止到2023年11月24日17:00,竞标人通过线上转账方式缴纳投标保证金的,保证金转出时间不得晚于报名截止时间,且该笔保证金到账时间不得晚于2023年11月24日17:30,否则视为报名无效且不能参与本次招租竞标活动。
(二)缴纳投标保证金
1.银行转账方式:开户名(重庆两江新区公共租赁房投资管理有限公司),开户行(中国银行重庆金山支行),银行账号(110215517557)。转账时,请务必备注竞标商铺号、竞标人姓名、联系电话等信息,确保通讯畅通,便于后续重要事项及时通知。
(示例:天韵路××号+张三+136××××)。
(若字数受限,可通过以下联系电话以短信方式发送完整信息)。
2.现场缴纳方式:在两江公租房公司(渝北区普福大道459号龙兴福居23号商业楼人工智能学院区域315室,联系电话02367821690,18696672053,15923305827,13108983636)或者在龙兴、鱼复、水土三个片区任一房管中心均可缴纳。现场缴纳时,请务必备注竞标商铺号、竞标人姓名、联系电话等信息,确保通讯畅通,便于后续重要事项及时通知。
(三)领取两江公租房配套商业竞标标书时间:2023年11月13日–2023年11月24日(现场领取时间09:00–17:30)。
(四)领取竞标标书方式:在招租公告中下载打印(要求A4纸单面)(详见附件2)或在缴纳投标保证金后前往两江公租房公司(渝北区普福大道459号龙兴福居23号商业楼人工智能学院区域315室,联系电话02367821690,18696672053,15923305827,13108983636)或在龙兴、鱼复、水土三个片区任一房管中心领取。
(五)提交竞标标书时间:暂定2023年11月27日上午09:30–10:00,上述时间若有调整,将以电话、短信或公告任一形式告知,超过标书提交时间,不再接收标书。
(六)开标时间:暂定2023年11月27日上午10:00,上述时间若有调整,将以电话、短信或公告任一形式告知,现场按照商铺开标顺序,依次进行开标。
(七)开标地点:天堡支援社区三楼会议室。
(八)参加单位及人员
1.招标人:两江公租房公司;
2.竞标人:按时足额缴纳投标保证金、递交竞标标书的意向商户;
3.监督人:两江公租房公司派出监督人员;
4.公证人:重庆市渝北公证处。
(九)开标流程
1.竞标人需提交有效身份证件、缴纳投标保证金收据原件或缴费凭证或缴费记录等资料完成签到,自备两份密封完好竞标标书,在进入竞标现场时一份提交给招标单位,在竞标开始后一份提交给公证单位;
2.工作人员引导竞标人就坐;
3.主持人介绍本次开标项目、参加单位及人员情况;
4.公证处人员现场展示标书,唱标;
5.公证人宣布中标人;
6.监督人员、公证人员、记录人员填写现场开标记录表,核对无误后签字;
7.竞标人对现场开标记录表确认无误后签字;
8.工作人员引导竞标人离场。
(一)本次投标可接受竞标人的合法程序委托。同一个人、企业仅能书面委托一人代表其参加竞标;
(二)享有优先承租权的原承租人为个人的,须本人亲自参与公开招投标,否则视为放弃优先承租权。
1.原承租人投标报价与投标现场最高报价相同时,原承租人享有优先承租权;若原承租人放弃优先承租权,则由投标现场最高报价的竞标人中标。
2.原承租人投标报价低于投标现场最高报价时,但在开标现场书面承诺按投标现场最高报价同样价格承租的,原承租人享有优先承租权。若原承租人放弃优先承租权,则由投标现场最高报价的竞标人中标。
(三)竞标人报价须以“元”为单位的整数且报价不得低于底价,否则视为废标。
(四)标书提交要求
1.标书构成(一式两份,两个密封袋);
a.两江公租房商业竞标标书*2;
b.竞标人身份证复印件*2;
c.缴纳投标保证金的收据或缴费凭证或缴费记录复印件*2;
d.受个人、企业委托者须提交授权委托书复印件*2;
e.原商铺租赁合同复印件*2(原承租人提供)。
此类资料装订成册,一式两份(以上文件为复印件的需携带原件备查)。
2.填报要求:按固定模板填写完整,不得对标书的固定模板做任何修改,否则视为无效标书;标书填写内容不得作任何涂改,否则视为无效标书;提交招标单位和公证单位的两份竞标标书的内容保持一致,否则视为无效标书。
3.提交要求:装袋密封,在封口外标注竞标人身份信息、竞标商铺铺号,企业竞标人须法人代表或授权代表人签名并盖企业公章;未按要求提交,含有违反国家法律、法规内容、造假的标书一律视为无效标书;竞标人提交标书时需出示与标书信息相符的身份证明及缴纳投标保证金收据原件或缴费凭证或缴费记录,否则不予接受标书。
(五)如出现多个相同租金报价为最高时,而原承租人放弃优先承租权,则以现场抽签的方式选出中标人。
(六)现场开标结束,竞标人核对无误后在《现场开标记录表》上签字确认;如竞标人不予签字,则其缴纳的投标保证金不予退还。
(七)招租政策表中备注栏显示出将两个或以上门牌号商铺组合招租的,中标人不得擅自进行分割经营(若物业现状存有隔墙的由中标人自费自行拆除)。该组合商铺实际经营业态与招租业态保持一致,且实际经营品牌仅限于某单一品牌,且实际经营品类仅限于某单一品类,且装修风格具有统一性完整性,该组合商铺仅限办理一份营业执照。
(八)中标人应在通知后5个工作日内与两江公租房公司签订商业租赁合同。如遇特殊情况,则由两江公租房公司另行通知。
若中标人,在开标现场或开标结束后放弃中标资格,不按时签约或放弃(取消)签约,均视为流标,由招标人对本商铺进行重新招租。中标人发生任一上述行为,则其所缴纳投标保证金一律不予退还,且该中标人在五年之内不得参与两江公租房公司所属配套商业的招租活动。
(一)商铺按现状交房,填写竞标标书前,请竞标人务必自行到商铺现场实地踏勘,对存有质疑的内容,必须在竞标前书面提交质疑,若竞标人现场踏勘后未提出相关书面质疑或竞标人不自行现场踏勘,视同对本次竞标商铺的所有现状均认可,且无任何异议,中标后因此可能存在的风险和产生的后果均由竞标人自行全部承担。
(二)竞标标书一旦提交,则视为认可该商铺的实际交房条件,中标人不得以此为由,发生包括不限于延迟接房、拒绝接房、申请降租、免租、迟缴拒缴租金、要求补偿等任何形式损害招标人利益的行为。
(三)商业租赁合同样本公示于招租公告中(详见附件3),请竞标人在填写竞标标书前自行前往查看,竞标标书一旦提交则视为对合同条款表示全部认可。
(四)商铺物业费按照物业公司统一收费标准自行缴纳。
(五)中标人所缴纳投标保证金直接转为履约保证金或租金,未中标或开标前放弃竞标商户所缴纳的投标保证金在书面确认后60个工作日内无息退还。
(六)中标人对中标商铺装修前须提交店招设计及装修图纸,按照顺序需经项目所在物业公司和房管中心初审,经房屋租售部(渝北区普福大道459号龙兴福居23号商业楼人工智能学院区域315室)审核后再行装修施工。
(七)中标人因经营需要,须在不损害招标人利益,取得招标人及相关政府职能部门书面同意的情况下,对此次招租物业进行改造,相关费用自行承担;在承租期期满或提前终止租赁合同时,签约人应当保持房屋及设施的完好状态,不得留存物品或影响房屋的正常使用,招标人有权要求签约人将房屋及附属设施全部或部分恢复至交付使用时的原貌。
(八)本次招租区域商业楼已取得不动产权证,中标人在此条件下自行自费办理相关一切经营手续,中标人不得以此为由,发生包括不限于延迟接房、拒绝接房、申请降租、延长免租、拒缴迟缴租金、要求补偿等任何形式损害招标人利益的行为。
(九)商铺实际接房时间以本公司另行书面通知为准。
(十)竞标人确保在近三年内的经营活动没有重大违法记录和招投标不良记录,同时不存在被法院纳入失信人员记录,否则取消中标资格,其所缴纳的投标保证金不予退还。
(十一)该公告所有内容,最终解释权归本公司所有。
重庆两江新区公共租赁房投资管理有限公司
2023年11月13日
通讯员:公租房公司
项目建设再提速!重庆医药科技学校迁扩建一期项目全面进入主体施工阶段

