Vinforever Fine Wines是一家年轻富有锐气的红酒经销商,Caveau de XTD(新天地大酒窖)是他们第一家线下销售门店,位于上海市中心文化地标新天地,选择租金如此高昂的地段来作为他们企业酒品展示、销售和储存的场所,业主有着自己的雄心,期望以一种纯净浪漫的美术馆式氛围去展示他们对红酒文化的理解与推动,由此有了这个项目。

暮色中的红酒“美术馆”(©宋肖澹)

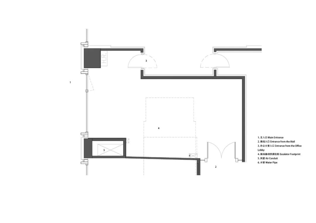
原始平面(©MONOARCHI)

店面立面现状(©MONOARCHI)

店面室内现状(©MONOARCHI)
至上主义 Suprematism
在这样一个杂乱无序的场所,我们认为以基本几何形,色块平涂为特征的至上主义艺术将会使空间退回到原初的纯净和抽象的秩序,凝结为一个有意义的场所。

《白底上的白色方块》卡西米尔·塞文洛维奇·马列维奇
(Kasimier Severinovich Malevich 1878--1935)
经过多回合的形式推敲之后,我们最终确定以最基本的方形、三角形和圆形的组合来塑造我们设想中的简单但并不空无,抽象但又有所指的艺术型商业空间。

至上主义习作(©ChaoS)

形式推敲(©MONOARCHI)

基本空间之分解(©MONOARCHI)
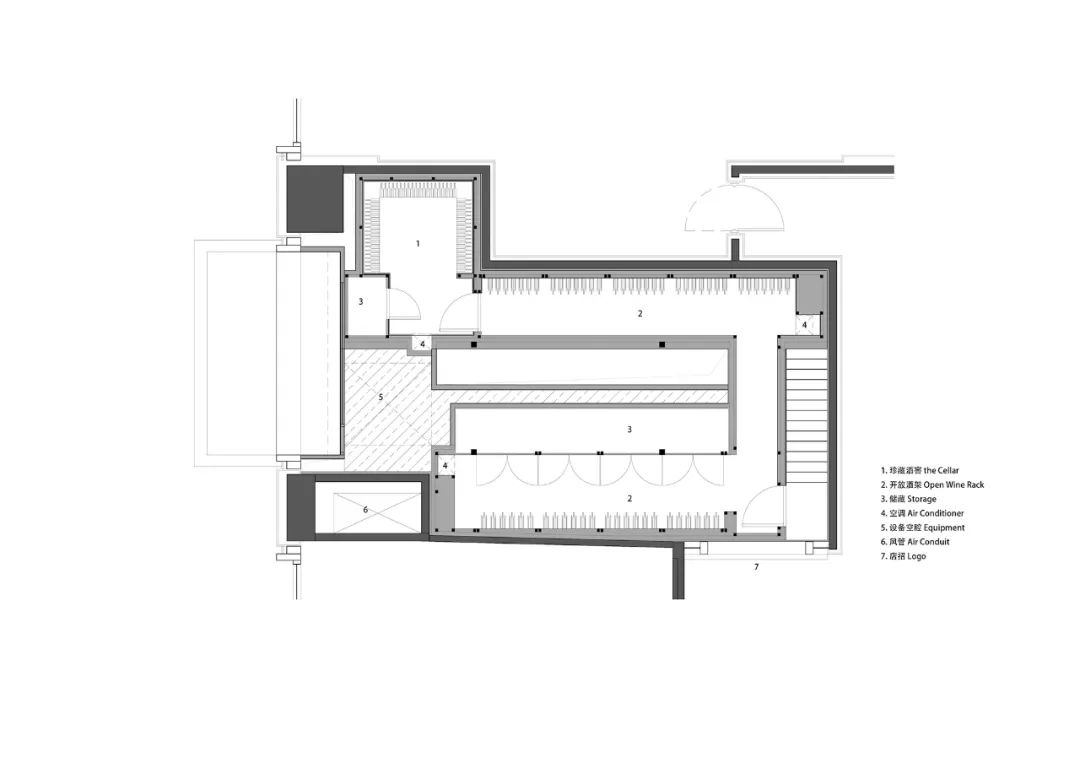
在形态上起主导的是方形,构建出一层展示销售区,阁楼存酒廊和珍藏酒窖三个功能性区域。三角形以顶光的面目出现,高耸着侵入阁楼层,复又倾泻而下,神圣光芒定义出美术馆的气质;圆形被分解,只出现了1/4的弧,以顶与墙的衔接者完成了空间角色。

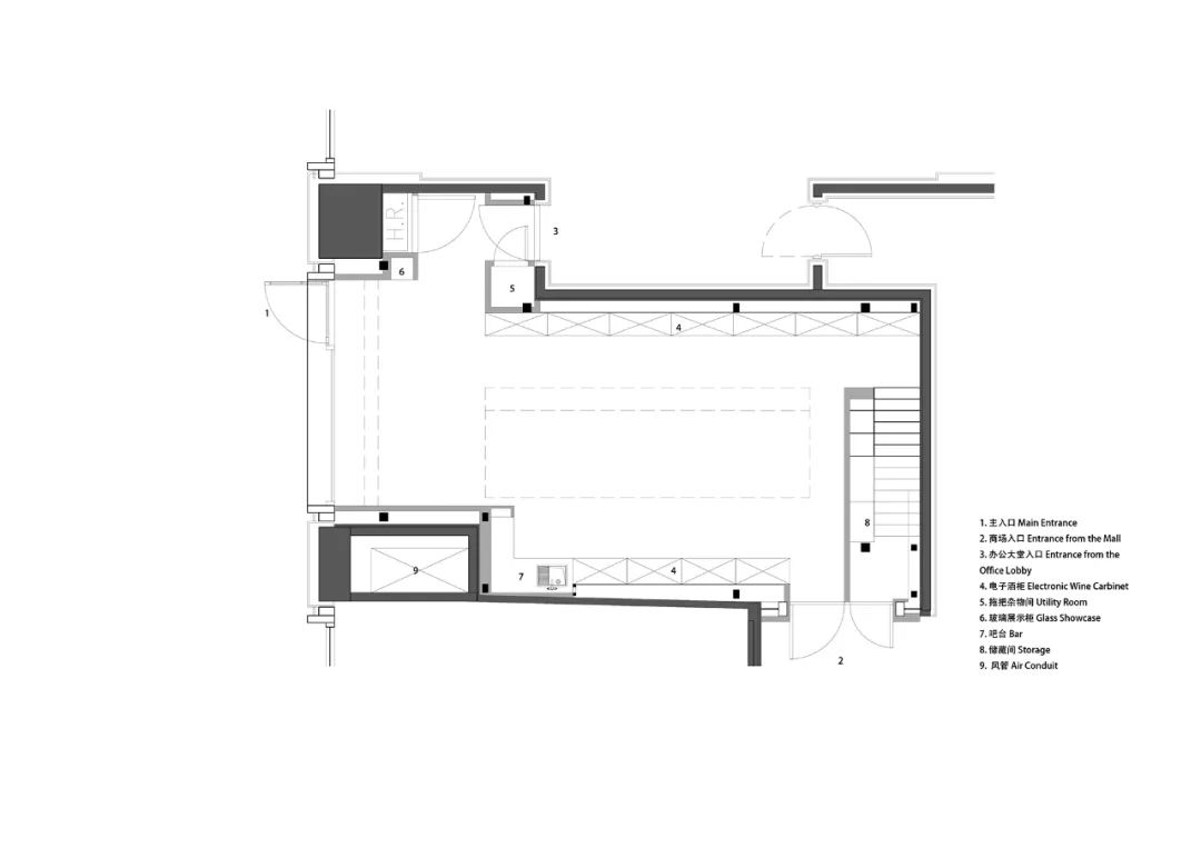
一层平面(©MONOARCHI)

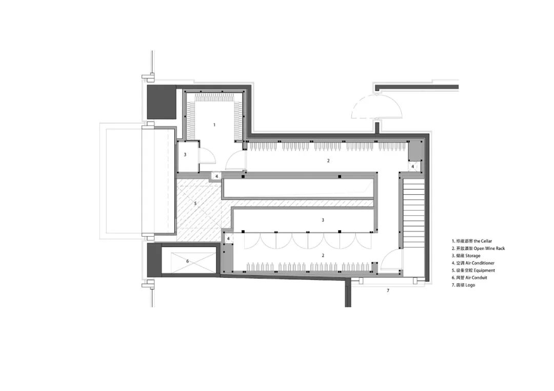
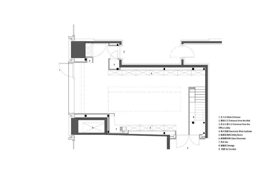
阁楼层平面(©MONOARCHI)

三角形顶光形成锋利的边界(©宋肖澹)

三角与圆弧流畅地衔接(©宋肖澹)

圆弧消失于酒柜顶面(©宋肖澹)
流动性 Fluidity
上述的各个空间有着明确的边界形态,但我们又想让空间呈现出一种流动性,而空间的流动一个很重要的显现方式就是空间界面的连续性。
为了实现界面的连续,我们和结构师合作,以一种非常规的方式把阁楼层用钢柱悬吊在上层楼板的梁上,一楼因此成为一个无柱空间,在视觉上实现了顶面,墙面和地面不被阻隔的连续感。

墙、顶和地面的连续(©宋肖澹)

墙、顶和地面同色同质连续,营造出静谧的氛围(©宋肖澹)

剖面图/方形,三角和圆/悬挂的阁楼/空间的流动(©MONOARCHI)
如果往更细一个尺度推演,材质作为界面的皮肤,它需要能继承空间的流动属性,呈现出连贯的质感。
我们首先廓清了材质观感与空间机能(programming)属性之间的对照关系,然后建立出边界和序列。
一层涂料的暖色调和柔和观感助推展示和销售的商业行为;

三角形顶光下呈现出温暖气质的展示销售区(©宋肖澹)

暖色调的展示及休息空间(©ChaoS)
坚硬的,无机的,冷酷的金属质感与阁楼酒品储藏冷库完美匹配;

金属界面切割出冷酷的阁楼储藏冷库(©宋肖澹)
隐藏在路径序列终点的大理石则合理地诠释了珍藏酒窖的价格地位。

冷库的终点是珍藏酒窖(©宋肖澹)
所以,这是一个开放度和酒品价值相匹配的序列。

材料和灯光区分出了不同的空间机能及氛围(©宋肖澹)

珍藏酒窖内的大理石墙面和不锈钢开放式酒架(©宋肖澹)
其次,我们弱化了材料的标准特征,转而追求其抽象感,以形成更好的连续性。
对应于至上主义画作中的平涂技法,我们把所有材料都进行了扁平化操作,微水泥(地面)和硅藻泥(墙面和顶面)平涂整个一层空间;

展示及休息空间:墙面顶面硅藻泥与地面微水泥的整体平涂包覆(©ChaoS)
阁楼的灰色微水泥地面,不锈钢墙面和顶面的波纹镜面不锈钢也营造出了一种大面上的平涂效果。

灰色调的微水泥地面和金属墙顶面,形成有微妙肌理差的和谐空间基底(©ChaoS)
另外,在肌理上我们借由无意义的重复的底纹也强化了抽象性。比如说硅藻泥花费很多人工凿出疏密有致的小洞模拟出洞石的粗粝质感;墙体不锈钢采用的和纹做法以及顶面的波纹镜面不锈钢,都极大地弱化了金属的镜面成像属性,获得了流畅的连贯性;雅致金大理石深深浅浅的斜纹的阵列重复,也是流动性的一种抽象表达。
灯光 Light
在Caveau de XTD,酒品犹如美术馆的藏品,由于酒对光照非常敏感,灯光的设计既要满足展示,同时又不能对酒品有所损害。三角顶光的设计既满足了主照明和神圣氛围的要求,也避免了对酒柜的直射光;由于酒柜有自己的光源,线条灯仅是作为照明和氛围的补充。一层灯光整体是明亮温暖富有启发性的。

三角形顶光与线条灯(©宋肖澹)

红酒犹如美术馆中的展品(©宋肖澹)

楼梯间延续着温暖的质感(©ChaoS)

双V造型顶灯致敬Vinforever(©ChaoS)

楼梯间的狭小空间浓缩了至上主义的构成:发光的三角,黄色方形基底上的黑色圆形(©ChaoS)

影与光(©ChaoS)

吧台(©宋肖澹)
阁楼灯光整体是冷冽昏暗和戏剧性。存酒廊以不锈钢圆棒和亚克力圆棒形成酒品储藏和展示矩阵,其中亚克力棒作为光源提供了柔和的光照,远看有着星空的效果。

星空与光点的矩阵(©ChaoS)

冷酷与迷幻(©宋肖澹)
冷库开放式酒架的气氛渲染得益于金属圆棒酒托与亚克力光棒的矩阵式设计,我们根据业主储存酒品的需求,测试了多次之后确定了圆棒的长度、直径以及间隔,然后是光源的呈现方式,最后以磨砂处理的亚克力棒背部打光的方法创造出柔和的点状星云,以满足不伤害酒品的照明展示需求。

亚克力发光棒测试(©MONOARCHI)

金属圆棒与亚克力棒Mockup(©MONOARCHI)

金属棒与亚克力棒矩阵板安装(©MONOARCHI)

细部(©MONOARCHI)

矩阵酒架安装后效果(©宋肖澹)

不锈钢托架与亚克力发光棒细节(©宋肖澹)
酒,在这里被当作了一件件艺术品去展示和呵护,有了和它们血脉相匹配的文化浸染,焕发出独具特色的风采。
项目名称:Caveau
de XTD
项目类型:室内设计
设计方:MONOARCHI 度向建筑
公司网站:www.monoarchi.com
联系邮箱:info@monoarchi.com
项目设计:宋小超,王克明
设计团队:宋小超,王克明,方媞媞
设计年份:2022-2023
完成年份:2023
项目地址:黄浦区湖滨路208号, 上海市
建筑面积:96㎡
摄影版权:宋肖澹,ChaoS
业主:上海永田酒业有限公司 Vinforever
Fine Wines
施工方:上海韬普建筑装饰有限公司Shanghai Taopu
Architectural Decoration Co. , Ltd.
灯光供应商:上海孚希威照明科技有限公司Shanghai Fuxiwei Lighting Technology Co. , Ltd.
不锈钢供应商:上海睿括金属制品有限公司
酒柜供应商:华廷酒窖 WINE TOWN CELLAR
材料:微水泥,硅藻泥,不锈钢,大理石,亚克力
