


© 张超建筑摄影工作室
原金威啤酒厂空间作为工业遗存及城市集体记忆的物质载体,对于保育再利用的原厂房空间,我们的室内改造设计策略更多是系统地记录和梳理,进而保留、提炼、再诠释和再现。



















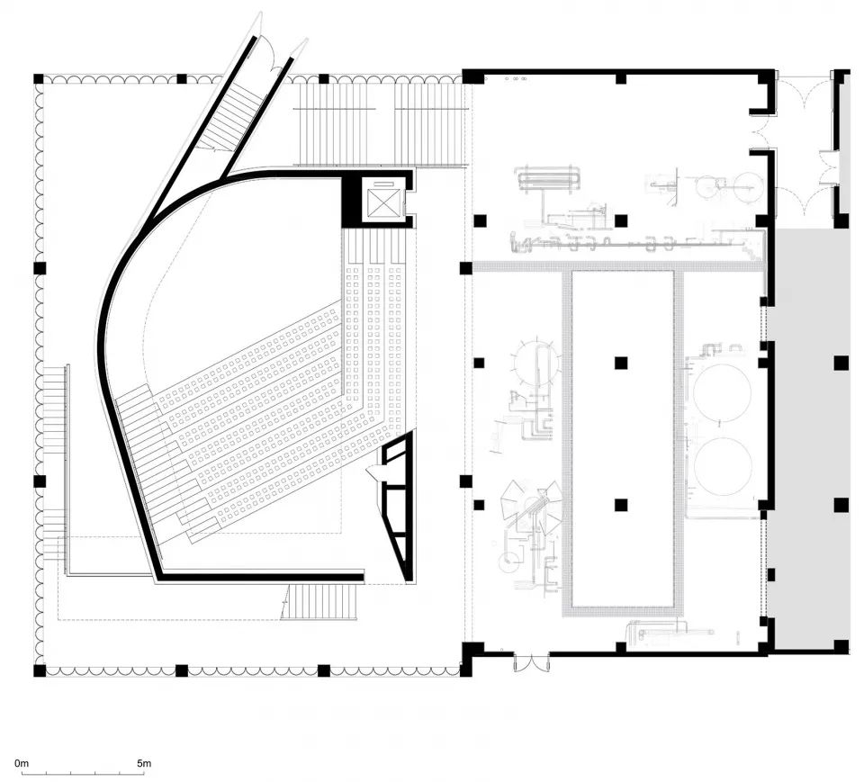
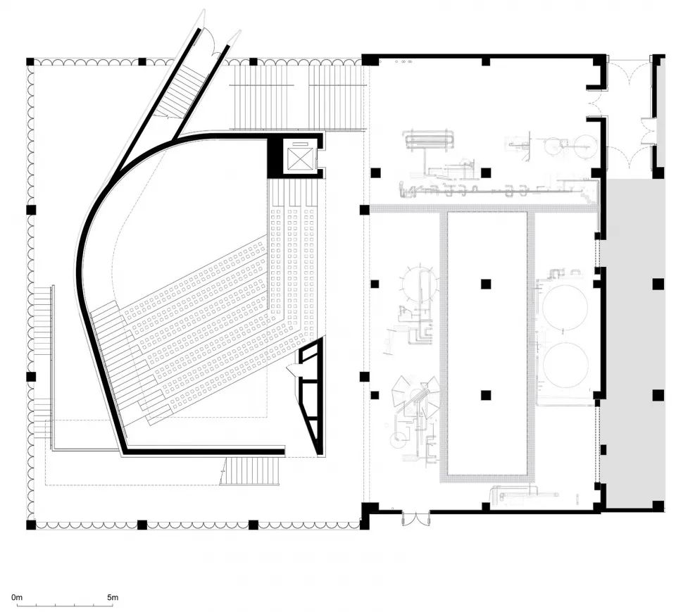
▲D1多功能厅前厅空间 © 张超建筑摄影工作室









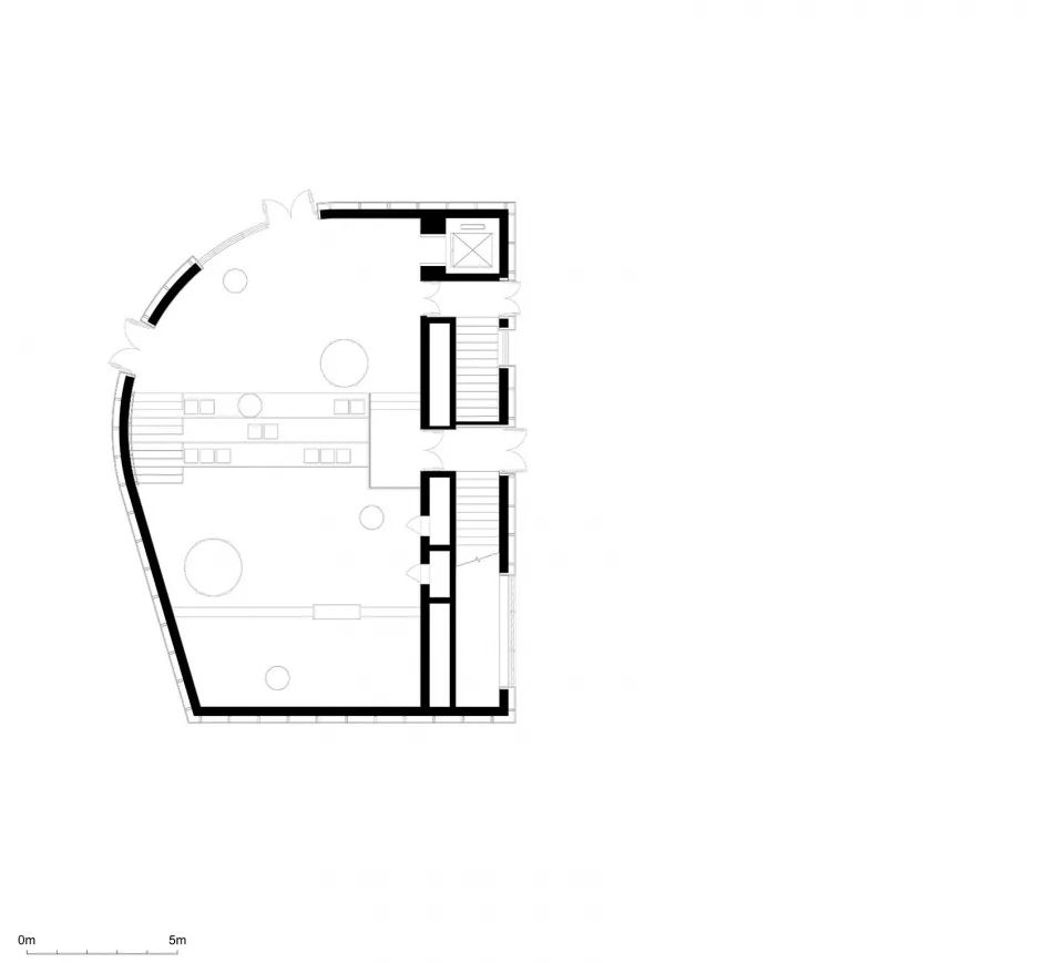
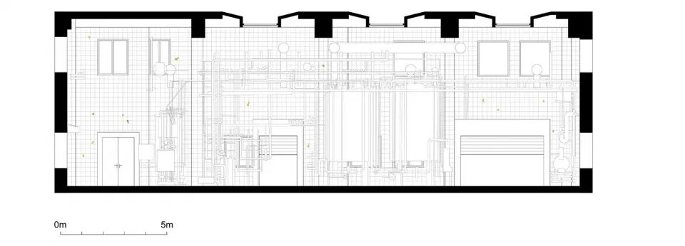
项目图纸和模型







项目地址:广东省深圳市罗湖区原金威啤酒厂(D2栋首层常设展厅,D1栋地下一层及首层多功能厅和前厅、电梯轿厢、首层楼梯间、二层常设展厅,A/D1/D5栋公共卫生间)
完工时间:2022年12月
面积:1525平米
建设单位:广东粤海置地集团有限公司
主管合伙人:周实
团队:莫纯煇、赵津汝、黄安、薛梦琪、董盈希、罗辰浩(实习)、包嘉晓(项目助理)、陈菲菲(项目助理)、黄嘉颖、吕云洁、Cristina Moreno Cabello、郑鑫、扈诗雨(实习)、肇美施、张瑞羽、邱婧祺、张经纬、金圣翔(实习)、罗冠欣(实习)
整体规划、建筑设计及室内设计合作单位:深圳市都市实践设计有限公司(都市实践)
室内施工图团队:中国建筑科学研究院有限公司/深圳九思室内设计有限公司
灯光设计顾问:北京远瞻照明设计有限公司
平面设计团队:烁设计
摄影:张超建筑摄影工作室、Studio 10
Studio 10微信/ Instagram: studio10design




