

根据《中华人民共和国城乡规划法》、《湖北省城乡规划条例》、《关于城乡规划公开公示的规定》等相关规定,现将随州市博览中心建设规划进行批前公示。
一、项目名称:随州市博览中心设规划
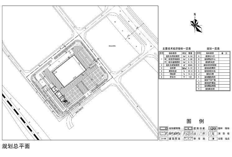
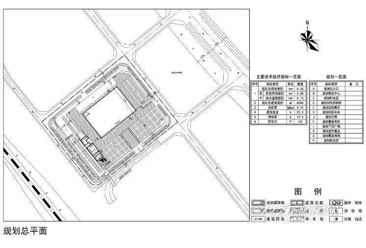
二、项目位置:位于城南高铁站片区,西邻东胜西路,东临站前北路,北邻站前西路
三、用地性质:文化设施用地
四、建设单位:随州市发展实业有限公司。
五、建设规模:地上建筑面积:8345㎡。
六、规划说明:规划结合场地合理布置博览中心、配套服务用房、室外展区、停车场等功能。
待公示无异议后审批,具体布局方案及建筑尺寸、层数和建筑间距、退距详见规划图纸。

七、公示地点:1.随州市博览中心建设项目现场,2.随州市自然资源和规划局网站。
为促使该规划更加科学合理,现向社会各界和广大市民征求意见和建议。敬请将意见建议(署真实姓名和联系地址、通讯方式)于公示期(2023年10月18日至2023年10月26日)内反映至市自然资源和规划局建设工程科(联系电话0722-3827917)。该项目利害关系人在公示期内有提出听证的权利。邮寄地址:随州市迎宾大道15号随州市自然资源和规划局建设工程科,邮编:441300。
随州市自然资源和规划局监制
二〇二三年十月
文章来源:随州市自然资源和规划局

免责声明:本平台致力分享有价值的内容,转载引用仅为传播信息之用,所转载的所有文章、图片、音频、视频文件等资料版权归版权所有人所有,因非原创文章及图片等内容无法逐一和版权者联系,亦无法核实真实出处,如涉及侵权请来电联系:0722-3588122,我们将立即予以删除。
点击"阅读原文"
