
买房是个重要的事儿,千万不要图便宜就买!
因为有些尴尬的缺点会伴随一辈子,而且很难在后期改造,改造费用太高,或者说根本不能改造。
以下面3种户型为例,展开分析,他们有他们的优势,也同样存在缺点,希望能够帮大家解决实际问题。
户型1

此户型三室两厅一卫,餐厅的位置有些尴尬,餐桌无论是放在中间,还是靠近入户右侧墙面,都会对交通流线造成一定的影响,不过卫生间设计为套间,内部马桶与淋浴又做了干湿分离,而且可以对外自然通风,相信不会有卫生间异味进入室内。
户型2

目前市面上常见的一套三十户型,建议客厅餐厅做虚墙分割空间,虚墙分割空间的同时,将入户视线分割,造成空气通而不畅的目的,在风 1水上也起到分割作用。户型的阳台特别宽敞,无论是晾衣服还是作为花园,都具有良好的视线效果,北侧设计两个露台,给生活带来极大方便。
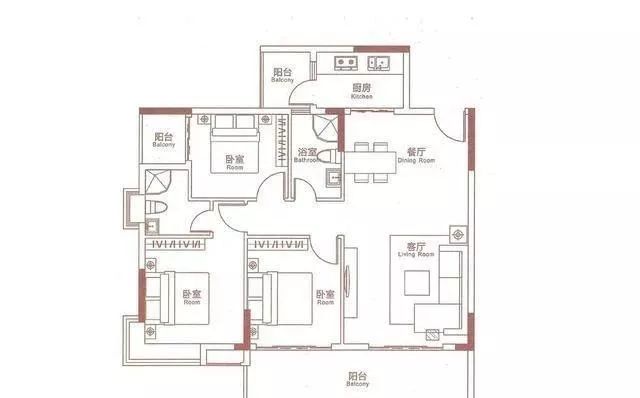
户型3

这个户型整体感觉还可以,不过餐厅空间不够独立,而且餐厅顶可能存在一道暗梁,甚至是明梁,影响使用,主卧室与北侧次卧室之间的空间,设计比较尴尬,作为书房隐私性不够,不过也完全看个人喜好,厨房设计过大,还阻碍了室内通透性,按照中国人的生活习惯,厨房不易改为开敞厨房。
大家看后感觉怎样?欢迎留言讨论!
图文来自网络,若有侵权,联系删除
