▲ 更多精品,关注“搜建筑”
当城市人居的美好需求被更多样地满足,住得更好,成为让生活品质进阶的下一个目标。
改善人居逐渐具象化,人们对居住的空间也提出了更多的要求:
• 采光更通透
• 视野更宽广
• 布局更前沿
• 空间更自由
• 体验更奢华
……
作为改善型主力面积段,120㎡这个区间的户型有非常多可圈可点的地方,接下来搜建筑就来看看龙湖打造的百变120㎡面积段户型。
虽然没有达不到百花齐放、百家争鸣的地步,但也是各有特点:
面宽升级更大、户型动线更清晰、功能空间更多更丰富、独立入户大玄关、竖厅到横厅再到巨厅、大阳台、空中花园......
1
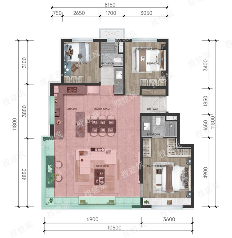
成都龙湖九里璟颂建筑面积约126㎡户型,这个户型从功能、空间、尺度、舒适度、得房率、可变性方面来说都是不错的。
整体来看,这个户型南北通透,做到了紧凑无浪费,保证各房间使用功能的同时,做到了四房双卫双阳台的设计,满足不同家庭的功能需求。实际得房率超过83%以上,着实令人惊叹。

龙湖·九里璟颂126㎡户型图
除了拥有采光通风的独立入户电梯厅之外,还有约2米超大玄关收纳系统。
奢阔舒适超大采光面,整体南向采光约13.35米,空间开敞,动线灵活多样,在提升空间利用率的同时,更强调人与人之间的社交沟通体验,家人之间随时可进行无界交流互动。客厅是LDK阔厅设计,面积约32㎡,约6.9米超大开间横厅设计。



龙湖·九里璟颂126㎡样板间实景
最亮眼的是L型阳台,长约7m,进深最长2.4m,这里就是家里聚会的第二会客厅。若是客厅和阳台打通,还能获得更大面宽、大进深和大横厅,为家庭欢聚带来无限空间可能。比如L型阳台的一旁,就可以打造成一个有阳光的机麻房,惬意十足。当然,也可以是孩子的玩耍空间、男主人的茶室或是女主人的阳光花房等。

样板间实景
约4米开间U型厨房,操作功能区划分明确,动线布局合理高效。

样板间实景
这个户型功能性和私密感也很高,4个卧室的配置,不仅满足二胎家庭的功能性,还可额外做单独衣帽间、书房,生活品质感顿时提升。
酒店式套房主卧,约3.65m的大开间,仅床区的进深就达到约5m,尺度宽裕。对标酒店式动静分区,配备L型衣帽间,独立卫浴间,私密尊崇感十足。

主卧、公共卫生间还进行了三段式分离,环绕式奢享生活,度假酒店般的感受。
另外三个房间既可以是三间卧室,亦可以是2+1书房的空间配比,各房间尺寸方正无浪费,保证基本功能性。

龙湖·九里璟颂效果图
龙湖·九里璟颂主入口实景
2
北京龙湖建工九里熙宸的户型产品,定位京西精英人群,始于居住,不止于居住,提供“全景·全世代”生活居所,约120平米的产品也能有200平米豪宅甚至别墅的客厅体验。

北京龙湖建工九里熙宸约120㎡三居户型
建筑面积约120平三居边户户型,一改往日大平米要多居室的格局。南向面宽约10.5米,南向约6.9米×侧边约4.85米的飘窗,270度全景,采光和视野近乎奢侈。这样配置的大边厅做出了200平米豪宅的效果,120平米的产品也能有豪宅甚至别墅的客厅体验。

实景图
约55㎡的超大LDK厅,代表了更多的使用可能性,不仅涵盖了中西厨、餐厅、客厅,更是通过约10.5米的飘窗,将270°的景观纳入房间,真正做到了“让绿色环绕生活“。
三个主要的睡眠空间,根据老、中、青三代的使用侧重点不同,配备了定制化功能,满足不同年龄段的使用需求。



实景图
效果图
3
北京龙湖建工九里熙宸另一款120平四居,就是120平三居同楼层的中间户了。
经典“四叶草”户型,这种幸运四叶草的户型布局,卧室分居四角,互不干扰,保证了隐私性;并且是没有过道的户型浪费,套内面积利用率高。
和120的三居相比,牺牲了客厅的面宽,加强了居住的功能性,给需求不同的群体多了一个选择。

北京龙湖建工九里熙宸约120㎡四居户型
4
龙湖天字系作品武汉龙湖清能天曜建筑面积约128㎡户型,3室2厅2卫,三开间朝南,户型方正,南北通透,套内空间利用率高,南向大阳台。将128㎡的产品做出140㎡的尺度感和舒适感,这样的设计,放眼整个武汉市场都是堪称“王炸”的存在。

武汉龙湖清能天曜约128㎡户型
这个户型的亮点非常明了——大方厅,这个厅的尺度感十足,并且这个户型如果想追求功能性,可以变为3+1房,在方厅里隔出一间书房,实现四房功能性,同时仍可以保持高舒适度和气度。
比拟豪宅的居住体验,约41㎡的巨型宽厅,创新采用LDKGX一体化设计,将客厅、餐厅、厨房、观景阳台、可变空间融为一体,营造出奢阔的空间格局,也完美演绎了动静分区。

样板间实景图
南向约12米三面宽和主卧套房设计,在满足功能性前提之上,更大程度上留存男女主人居家舒适感。约5.6米开间宽厅,连接南向跑道式阳台,使得观景视野更加开阔,进一步提升室内的采光和通风效果。
同时,又很好地控制了三个卧室的面积,在实现两个卧室朝南布局之余,每一个房间都配置了飘窗的可优化空间,有效保障了得房率。

样板间实景图


项目效果示意图
5
温州大家坤和龙湖云创上城建筑面积约128㎡户型,四开间朝南,南向面宽约12.8米,“U”型厨房、套房式主卧……
户型容纳了南向大面宽厅场景模块 ,与北侧多功能室结合互动,丰富了生活中各阶段场景,南向采光优越,宽厅设计给业主提供开阔的视野体验。

温州大家坤和龙湖云创上城约128㎡户型

示意图
户型自带未来社区特色的“空中花园”,杀手锏在于餐客厅一体连接三联阳台,同类难寻。试想,茶余饭后,无需下楼,推开窗,就能一览醉人的绿意;不用出门就能拥有一个私人的小花园,这样的气定神闲,又有多少人能够拥有?

样板房实景图示意,仅供参考,以实际交付为准

立面效果图,仅供示意,以实际为准
6
广州时代龙湖·天著建面约121㎡户型,不仅做到了四开间朝南,并且南向采光面达到了惊人的约12米,赠入户花园,既可作为玄关使用,也能满足大众的“庭院情怀",让每家每户都能拥有“私家花园”。

广州时代龙湖·天著建面约121㎡户型
客厅+餐厅采用一体化横厅设计,减少了户内的走道空间,更大限度地提高得房率,增加了客厅的空间感。同时客餐厅的尺度也非常阔绰,整体的开间尺度近6米,进深约4.5米,可以说是媲美大平层的尺度。

实景图
客餐厅还与一个近6米的南向的景观大阳台相连,大阳台还可以根据个人的喜爱改造为空中花园或咖啡吧,延伸空间的同时,也将屋外的风引入室内,通风采光效果俱佳。

实景图
配置南北双阳台,它还拥有一个灵动空间,可以根据家庭成员的需求进行改造。舒适主卧室套房南北通透。
实景图
7
昆明龙湖·紫宸建筑面积约120㎡方正三房,搭配三开间朝南和大主卧套房,仿佛置身于200㎡的大户型。
在餐厨一体的空间里,尽享烹饪和美食,美餐过后围坐客厅其乐融融,开启一家人的幸福时光。
约11m阳台连接主次卧室与客厅,突破普通住宅尺度的同时也彰显主人不凡的气场。
想象在每一个休闲的午后,静坐家中阳光倾泻而下,举目便是满园绿意,该是何等惬意。

龙湖·紫宸约120㎡户型

约120㎡客厅实拍
龙湖·紫宸还将人形的居住理念贯彻始终,所有产品采用高标准装修。

在精装方面龙湖从来都是大手笔。比如,为客户量身定制一套精装体系,配置主卧衣柜纳等多重收纳空间,为家扩容。
通过将精装细节渗透至生活的点滴,真正让业主感受“生活即是归家”的亲切感。

约120㎡卧室实拍

龙湖·紫宸社区入户大门
龙湖·紫宸单元入户
8
沈阳方林龙湖·云河砚建筑面积约125㎡精装洋房的基础结构是“三面朝阳”三风道南北通透的格局,舒适大三居的设计,分离式中西双厨+超强收纳空间是很大亮点。

沈阳方林龙湖·云河砚约125㎡洋房户型
分离式中西双厨的设计,将中西厨按照有烟区和无烟区进行区分,先满足中厨的功能,把油烟控制在最小的范围之内,同时也释放出更多的空间给西厨。西厨的位置在中厨与餐桌之间,这样正好可以照顾到两头的需求,就餐或者拿取食物都很方便。西厨的吧台设计,可以让家中充满幸福仪式感,充分享受二人的美食时光。
在收纳方面,拥有约6.3米的独立家政间和入户玄关处的独立的储藏室,形成了两大独立的储存空间。可用来放置日常的衣物和生活用品,业主也可以根据自己的需求发挥想象来自由规划。除了上述两大独立收纳空间设计,餐厅处设计有嵌入式餐储藏柜、主卧L型独立衣帽间和次卧的转角衣柜也能很好的将日常的衣物进行分区收纳和管理。
除了收纳方面的亮点,从整体上看125㎡户型是一个舒适的改善三居的设计,南向开间11米,客厅开间达4.3米,可以更大限度的增加居室的采光,营造舒适的居住环境。
LDK一体化布局,客厅、餐厅、厨房系统,自南向北、一气呵成。优化整体布局,提升空间使用率,缩短了家居生活动线方便家人之间互动沟通。
主卧开间为3.6米,同时主卧室设立独立的L型衣帽间,南向转角飘窗设计,可以在闲暇之余,欣赏窗外美景,也可以根据自己的需求改造成休闲空间。
卫生间干湿分离,在一定程度上避免了卫生间潮湿的问题。在空间布局上,三口之家可将北部次卧设计为客卧或书房,可根据具体需求做进一步调整。四口之家可将北卧设计为儿童房,让每个家庭成员独立私密的空间。
9
扬州龙湖·锦麟天序建筑面积约128㎡户型,三室两厅两卫,南向约14米大面宽,这个户型最大的亮点,就是超大横厅,面宽达到约7.2米,尺度惊人,在建面约128㎡的户型中,做出了豪宅大平层的尺度感!

扬州龙湖·锦麟天序约128㎡户型
约7.2m宽厅一般出现在140㎡以上的户型,购入门槛较高,龙湖就把它优化到只有约128㎡,总价上瞬间让购房者轻松一大截。
约128㎡的宽厅是真正独立的“真宽厅”,而不是横厅,餐客厅分离,南北排布,宽厅北侧还有一个独立餐厅,区别于很多大平层户型。在此空间内用餐、互动、休闲娱乐融为一体,完全就是电视剧中豪宅的既视感。

样板间实景图
南向“跑道式”阳台,面宽达到了约7.2米,进深约1.8米,搭配约7.2米大宽厅……
户型设计精巧、大收容空间的入户玄关,搭配独立电梯厅;双卫分区,南向独立主卧套房;南向约7.2m大横厅……无论三口之家、三代同堂,亦或是二孩家庭,都很适合。
10
沈阳龙湖华煜·江与城建筑面积约127㎡洋房,户型方正,南北通透采光面大,符合大多数人的居住偏好。
独立家政间,节约空间,方便收纳,缩短做家务的动线,让整个家看起来更加整齐有序。

沈阳龙湖华煜·江与城建筑面积约127㎡洋房户型
在居住舒适度上,项目除了配备三房两卫的空间布局,使得居住空间更大以外,大开间的设计也是项目的亮点之一,客厅开间阔达5.6 米,并与餐厅、厨房连成一体,通透开阔,空间延展性更好。

样板间实景图
项目采用主卧套房式设计,开间达3.9米,并配备独立卫浴间,无论功能设置到空间尺度都能面面俱到,从容大气,优雅随心,享受尊崇生活礼遇。
结语
户型,是佐证一个楼盘是否在尽力做产品的重要指标。如果产品力不够硬,是肯定无法打动买房人的心。在120㎡的改善型户型中,在人们挑剔眼光的推动下,开发商也对户型不断进行优化,提升了功能性,是真正地在用心打造。
延伸阅读:
“小户型”也可以大边厅——多样化设计(150㎡内产品)
市场主流大平层—— 160㎡面积段户型
市场主流大平层—— 180㎡面积段户型
中海创变产品:140㎡面积段改善趋势
万科创新户型:140㎡面积段
万科创新大平层:160㎡面积段——20个户型
万科创新大平层:180㎡面积段——10个户型
市场流行的—— “大横厅”户型(不同面积段)
流行、创新的—— “边厅”户型(100-420㎡,不同面积段)
“大横厅”户型,为何独得市场青睐?(优秀户型集)
课题研究:200㎡内户型,适合做边厅吗?
户型创新:客厅都这样设计了……空间布局更多元、更人性化!!
卧室的精细化设计—— 关乎“睡觉”的大事
90㎡小户型:做出120㎡空间感
不同面积段:“大三房”户型设计,改善迭代升级!
一层一户,创新大平层(200㎡内户型) 真正的改善
一层一户, 洋房+高层+顶层……户型布局特点
一层一户,“大平层”(230-760㎡多个面积段)
本资料声明:
1.本文为建筑设计技术分析,仅供欣赏学习。
2.本资料为要约邀请,不视为要约,所有政府、政策信息均来源于官方披露信息,具体以实物、政府主管部门批准文件及买卖双方签订的商品房买卖合同约定为准。如有变化恕不另行通知。
3.因编辑需要,文字和图片无必然联系,仅供读者参考;
推荐一个
专业的地产+建筑平台
每天都有新内容
扫描二维码关注

微信公众号“搜建筑”(ID:sjz9999)
合作、宣传、投稿
联系微信:soujianzhu006


