
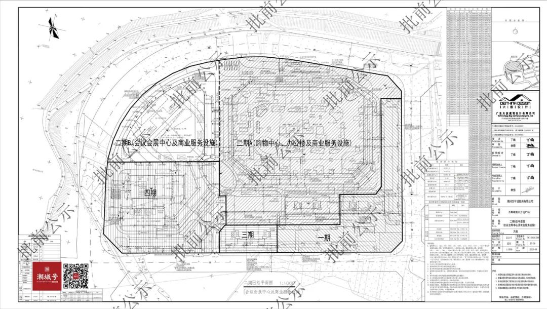
万年城潮州万达广场二期B(会议会展中心及商业服务设施)《建设工程规划许可证》批前公示
潮州万年城投资有限公司申请办理位于湘桥区磷溪镇窑美村半岛广场片区的万年城潮州万达广场二期B(会议会展中心及商业服务设施)《建设工程规划许可证》,现依据有关法律、法规及《广东省城乡规划条例》的要求,予以批前公示,公示内容如下:
建设单位(个人):潮州万年城投资有限公司
建设项目名称:万年城潮州万达广场二期B(会议会展中心及商业服务设施)
建设位置:湘桥区磷溪镇窑美村半岛广场片区
建设规模:总建筑面积61282.18平方米(A13幢商业服务设施2层,A18幢会议会展中心3层,地下室2层)。
公示日期:2023年9月1日—2023年9月10日(10天)
有关上述项目的详细信息,可到潮州大道北段潮州市湘桥区自然资源局五楼,电话2398657查询。
依照《广东省城乡规划条例》的规定,申请人、利害关系人对许可事项提出异议的,可在公示之日起十日内向本局提出申述(申述采用书面形式,个人申述材料应亲笔签名,并附身份证复印件;单位申述应由法人代表签章)。逾期未提出的,视为放弃上述权利。
特此公告。

潮州市长豪汽车贸易有限公司长豪大厦建设工程规划许可证批前公示
依据有关法律、法规及《广东省城乡规划条例》的要求,现对潮州市长豪汽车贸易有限公司长豪大厦建设工程规划许可证予以批前公示,公示内容如下:
建设单位:潮州市长豪汽车贸易有限公司
建设项目名称:潮州市长豪汽车贸易有限公司长豪大厦
建设位置:潮州市枫春路云梯路段
建设规模:酒店综合楼壹幢壹拾玖层,地下室壹层,总建筑面积16565.64平方米。
公示日期:2023年9月 4日 — 2023年9月13 日。
有关上述项目的详细信息,可到潮州市自然资源局枫溪分局(潮州市新风路26号9楼,电话6899383)查询。
该项目于2023年4月27日至2023年5月6日首次进行公示,因项目设计方案变更,重新予以公示。依照《广东省城乡规划条例》的规定,申请人、利害关系人对许可事项提出异议的,可在公示之日起十日内向本局提出申述(申述采用书面形式,个人申述材料应亲笔签名,并附身份证复印件;单位申述应由法人代表签章)。逾期未提出的,视为放弃上述权利。
联系电话:6899383 监督电话:2262632
特此公示。
唐商花园规划设计方案变更批前公示
我局收到饶平县华创文置地有限公司变更唐商花园规划设计方案的申请及有关材料,依照《广东省城乡规划条例》第二十九条规定,现将变更后的规划设计方案进行批前公示,内容如下:
一、建设单位:饶平县华创文置地有限公司。
二、建设位置:饶平县黄冈镇黄冈大道西段北侧片区东南部(饶平县华侨中学前片区)。
三、规划设计方案变更内容:区内园林设计优化调整;西南面局部消防车道设计标高调整;规划总平面图6#栋-7#栋、10#栋首层室内标高及建筑高度修正。
四、规划设计方案变更后各项规划指标:建筑面积及其他各项规划技术指标与原设计方案保持一致。
五、公示时间:10日(2023年8月29日至2023年9月7日)。
六、公示地点:饶平县人民政府公众网(www.raoping.gov.cn)、建设项目现场公示栏。
七、意见反馈:与本方案有利害关系人,如有意见,请以书面形式并署真实姓名、联系地址和通讯方式,于公示时间内(2023年8月29日至2023年9月7日)向我局反馈(联系电话:0768-7805025;邮寄地址:饶平县黄冈镇饶平大道中段县自然资源局;邮编:515700)。
附:方案总平面图











