
深圳宝安区【会展湾水岸】 项目简介
接待专员:155 0758 3167【售楼中心】
尊享团购折扣_恭迎品鉴〢
提前两个小时预约,成功认购享受额外团购折扣
( 欢迎来电咨询 | 请提前预约登记看房 | 1:1销售专业讲解)
一、会展湾水岸的项目介绍
占地面积:约4.2万㎡
建筑面积:约15.6万㎡
产权:40年(2016年8月起)
车位:947个
占地面积:26276.86㎡
建筑面积:96263.39㎡
容积率:3.66
绿化率:30%
物业费:7元/㎡·月
交付时间:2021年8月
物业公司:华侨城物业
户型:37-60-90-124㎡
价格:5.3-5.6万/㎡
产品特点:精装交付、带阳台、通燃气,不限购、个人名义可购买
项目地址:深圳市宝安区凤塘大道与福园二路交汇处(宝安国际会展中心东侧)
二、户型鉴赏
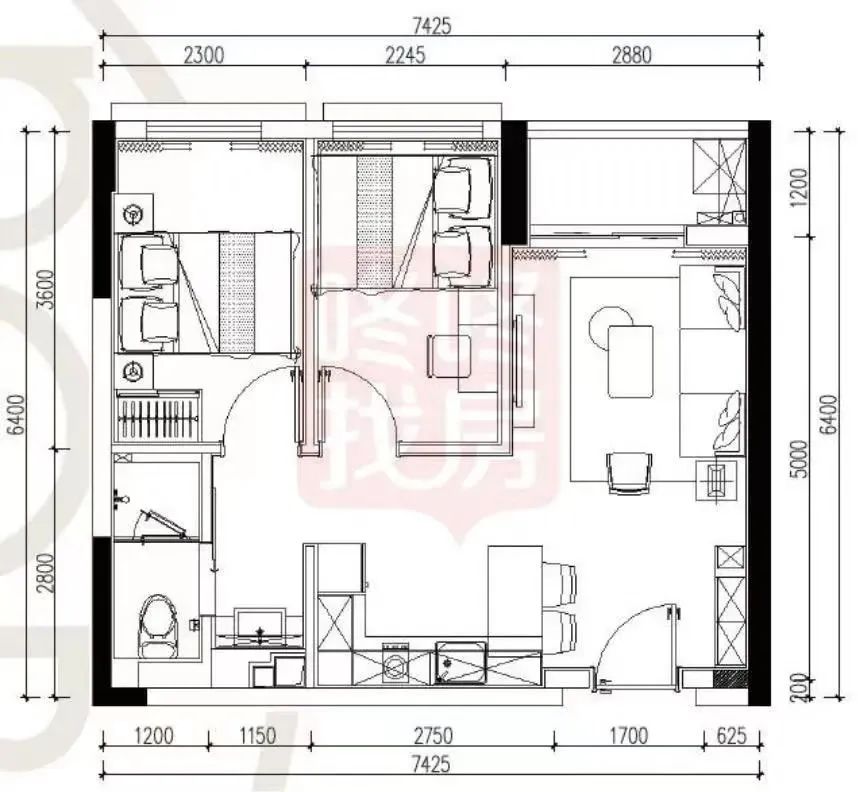
T5栋主力户型C1 59㎡-65㎡
户型方正,动静区划分明确,布局合理。房间和阳台都同一朝向,采光优秀。
主次卧面积相当,都比较适中,居住感舒适。
开放式厨房可能会不利于油烟排放,但还是看具体使用

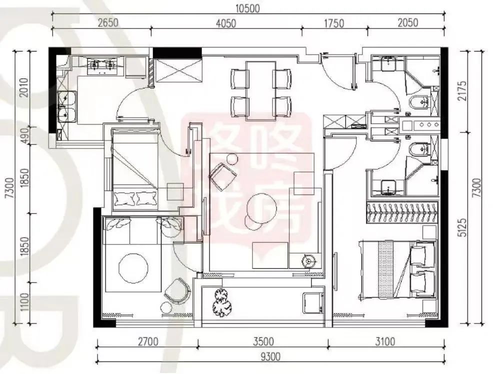
T5栋主力户型D1 90㎡
动静区划分得没有很明确,会缺少一些私密性。入门厕所与餐厅直接相对,这一点体验感会相对较差。但餐厨都很大很阔,实用率偏高。
做到了每个房间都有窗户,就算是内里的小房,也有面积比较小的小窗户,利于屋内通风。

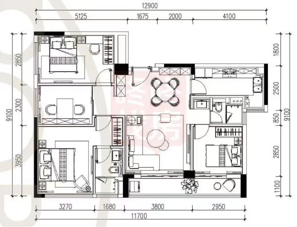
T5栋主力户型E1 124㎡
户型方正,阳台比较宽阔,房间、书房都有比较大的窗户,动静区总体采光充沛。
厨房比较深,但只有小窗户,可能会不利于通风。且餐厅面积比较有限,如果有客人来家里聚餐,空间会不够。

三、五维交通·链接全球
海陆空铁轨五维立体交通,构建“珠三角经济圈”, 辐射全球经济中心,成为湾区综合性的交通枢纽。
国际航空枢纽:深圳宝安国际机场T3、T4 航站楼,快速通达全球超120个城市。
高铁枢组:深圳机场东高铁站(规划中)。
城际轨道枢纽:地铁1、11号线(已通车)、12、20号线(在建)、18、30、33号线(规划中),
新增深茂铁路、穗莞深城际线(在建), 通达市区及珠三角。
空港码头枢纽;福永码头、大空港码头(规划中)。
城市陆路枢组:S3沿江高速、广深公路、京港澳高速等核心路网迅速通达南山、福田,深中通道(在建)、妈湾跨海通道(在建)、滨江大道、展览大道。

四、生活
1、多维度打造立体化垂直生态社区,营造不同开放与私密等级的共享空间。包括城市通廊、广场,社区花园,楼栋空中花园,以及屋顶共享泳池会所等等。

2、会展新城
坐镇粤港澳大湾区几何地理中心,29平方公里会展新城,以“三城一港”规划,构建湾区科创产业中心。

3、复合业态
深圳会展湾定位“创新型会展产业综合体”,以超300万㎡总体量,集合约160万㎡国际会展中心及约154万㎡包括国际体验式商业中心、星级酒店群、高端公寓群、会展商务基地、会展公园、会展河等复合功能业态会展综合配套。
深圳宝安区【会展湾水岸】 项目简介
接待专员:155 0758 3167【售楼中心】
尊享团购折扣_恭迎品鉴〢
提前两个小时预约,成功认购享受额外团购折扣
( 欢迎来电咨询 | 请提前预约登记看房 | 1:1销售专业讲解)
