深圳【会展湾雍境花园二期】
会展湾雍境花园二期
加推6-9栋778套住宅
再现67㎡2房上车户型
约67㎡-110㎡2房-4房
毛坯价 / 送品质装修
三大引擎 | 五维交通 | 咫尺地铁
丰盛配套 | 全能户型 | 品质纯居
备案价已出 | 开盘98折


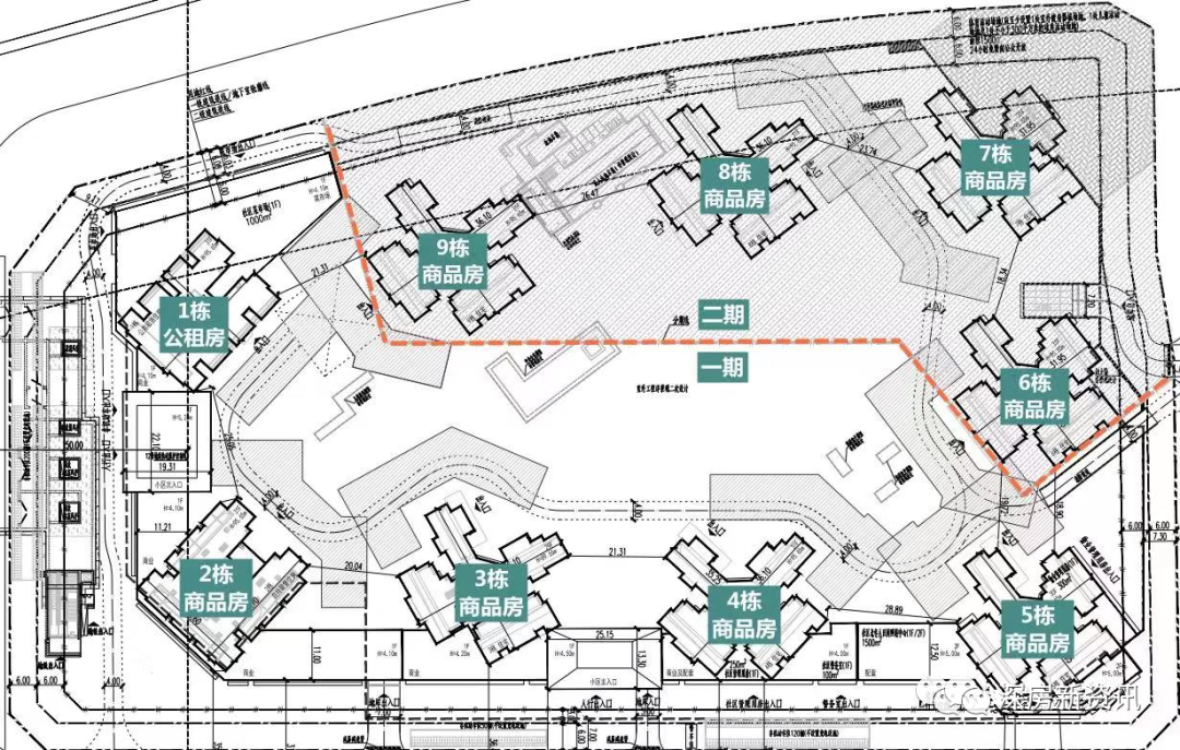
宝安国际会展片区的招商A301-0586宗地——会展湾雍境花园,加推6-9栋(已取证),建面约67㎡-110㎡的2-4房!备案均价4.81万/㎡,送品质装修。

深圳【会展湾雍境花园二期】
会展湾雍境是在2022年8月4日的深圳第二轮集中供地上,由招商以31.02亿+竞配1.9万平拍下,在拍下的当天,项目就已经动工。前期称其为招商会展北项目,现一期已经开盘,仅剩少量房源在售,目前二期即将加推。


该项目由9栋28-31层住宅围合组成,项目紧挨着云海臻府,云海臻府总房源有1448套,其中商品住宅有744套房源,面积段为约89-120㎡3-4房,毛坯限价4.61万/㎡。

备案价格表
首推4、5栋,380套,67㎡-110㎡2房-4房


加推3栋,162套,79㎡-110㎡3房-4房


加推3栋,778套,67㎡-110㎡3房-4房


01
项目基础信息
深圳【会展湾雍境花园二期】
【项目名称】招商会展湾雍境
【占地面积】约3.8万㎡
【建筑面积】约15万㎡
【推售产品】66㎡-110㎡2房-4房
【交付标准】送品质简装
【交房时间】2025.6.30
【产权年限】70年
【房产性质】住宅
【可售户数】1327套(一期547套、二期780套)
【车位比】1:0.94
【容积率】4.0
【绿化率】35%
【梯户比】2梯6户,3梯7户
【开发商】深圳市招雍置业有限公司
【物业公司】招商物业
【项目地址】地铁12号线海上田园南站A出口直线距离约50米·会展湾雍境
02
百年招商 | 品牌央企
央企招商蛇口,美好生活承载者
招商蛇口是招商局集团旗下城市综合开发运营板块的旗舰企业,中国领先的城市和园区综合开发运营服务商,以优秀的产品品质和领先的服务水准深受信赖,企业品牌价值位列行业TOP5。

立序会展七载,片区实力运营者
招商蛇口,自2016年取得深圳国际会展中心(一期)建设运营权,正式以会展开发与运营者的身份和央企实力,首进会展湾,七载深耕、实力运营。

从太子湾,到前海湾,再到会展湾,招商蛇口沿着海岸线一路西进、一路传承,匠心打造高品质纯居。
03
前海会展 | 约29平方公里会展新城
前海扩容,世界级经济发展高地
项目位于前海板块核心地段,或将成为拉动片区经济发展的核心力量。
前海8倍扩容,会展新城正式纳入前海,前海发展能级显著提升,汇聚海港、空港、综合保税区、国际会展中心,创新资源要素和头部企业集聚,擎动湾区发展。

约29平方公里会展新城,湾区战略制高点
会展新城规划布局为“三城一港”,包括国际会展城、海洋新城、会展田园城和综合港区,将成为深圳在全球科技创新中心和海洋中心城市地位的重要战略支撑。

04
三大引擎 | 千亿级经济动脉
会展新城以“会展经济+文旅经济+海洋经济”三大经济引擎,促进资金、技术、人才等资源集聚,助推城市发展,会展湾雍境占位会展新城核芯,享受宜居宜业宜游的优质生活圈与发展动脉。
全球最大会展中心:以展馆为产业驱动、综合配套为重要支撑的创新型会展产业生态圈,引领全球会展产业发展。

自2019年11月投入运营,已累计承接超87场展会,办展面积达764万㎡,参展观众超588万人次。

约7.44公里海洋新城:作为深圳第四大填海区,聚焦海洋新兴产业,构建以海洋高端设备、海洋电子信息两大产业为核心,海洋现代服务、海洋生态环保、海洋新能源三大产业为支撑的“2+3”产业体系,预计建成后产值规模达7000亿元,形成千亿级海洋产业集群。


建面约131万㎡冰雪世界(在建中):规划有全球规模最大、中国落差最高的室内雪世界与冰雪主题商业街、星级冰雪主题酒店、星光庆典广场等,千万人流带动旅游住宿等区域经济的爆发式增长。

建面约10万㎡金蚝小镇(在建中):打造深圳西部文旅名片,与海上田园共同构建文化+生态的旅游区,推动建设教育、文化等公共配套设施。
占地约163万㎡海上田园(在建中):
宝安区“十四五规划”将“会展田园城”升级为“海上田园城“,足以证明政府对于片区文旅经济发展的重视,整个区域将作为文旅经济的发展中心,作为深圳的一张名片面向全国!

海上田园作为国家4A级景区,以生态、休闲、健康为主题,打造10大特色景区,集旅游观光、休闲度假、生态科普、会议培训等多功能为一体。整体规模约为东部华侨城的3倍!
05
五维交通 | 加速链接全球
地铁:12/20号线双地铁已开通,距离地铁12号线-海上田园南站约50米,18号线/30号线规划中。

高速:广深沿江高速、外环高速、京港澳高速等众多高速通达,深中通道2024年即将开通。
机场:宝安国际机场T3航站楼,超120条航线汇聚,链接世界各地。

城轨:穗莞深城际已投入运营、广深第二高铁(在建中)、深茂铁路(在建中)等将陆续呈现。
海运:福永码头、国际游艇港、宝安大空港码头等海上交通也日益完善。
06
咫尺地铁 | 通勤无忧
会展湾雍境,与12号线地铁海上田园南站A口直线距离约50米。


定位王:深圳西部发展“大动脉”
地铁12号线由南向北依次串联蛇口自贸区、南山中心区、前海自贸区、宝安中心区、机场和会展片区,是支撑深圳西部发展轴的轨道交通骨干线。

换乘王:规划设有20个换乘站点(含规划)
地铁12号线共设33个站点,可换乘1/2/5/9/11/20号线等多条线路,规划总换乘站点达20个,快速通达宝安中心、南山科技园、蛇口海上世界等,通勤无忧。

07
丰盛配套 | 超80万平商业圈
建面超80万平商业配套
一站直达约32万平会展公园主题商业,环伺会展湾花园城/花园里、约10万平冰雪世界主题商街、约18万平京基百纳、约10万平新沙天虹、约16.4万平海岸城商圈,自带建面约1500平商业,构建多元化繁华生活圈。

丰富生活配套
学校环伺:项目500范围;规划配建1所9年一贯制公立学校,1所54班9年一贯制公立学校,1所36班的小学,以及2所18班幼儿园。
共享学区蚝业小学,茭塘小学,和一学校,沙井中学,荣跟学校。
周边医院:5公里内2家三甲医院—深圳市中西结合医院、沙井人民医院宝安区沙井坣岗医院,与深圳万丰医院。

滨海生态景观
会展河:毗邻约6.4KM会展河,纵贯会展新城南北,相关政府部门规划打造为深圳国际会展城的中央水花园。
会展公园:约1.6KM滨水休闲带,总投资超过20亿,相关政府部门规划打造为深圳极具科技感的休闲目的地。
海上田园:以自身独特的基塘田园风光为依托,将1.73平方公里的沿海滩涂由相关政府部门规划打造成为以生态旅游为主题的超大型旅游区。

08
品质纯居 | 五重归家礼序
滨海公园式园林
以现代简约的建筑语言,与海上田园、冰雪乐园链接观景动线,打造7大全周期活动景观配套+9大主题架空层,树立片区独特的现代生活美学复合型无界公园社区。

秘境花园无边泳池
打造儿童戏水池、标准泳道、按摩池、室内健身空间等丰富休闲区,配置独立更衣室、水上吧台等,提供国际化健康休闲体验。

五重归家礼序
尊享礼仪入口、礼仪轴线花园、超尺度中心花园、林隐次入口与花园入户,享受归家仪式感。
09
全能户型 | 舒阔2-4房



建面约66㎡ 2房2厅1卫:南北通透,全凸窗设计,开放式U型厨房。

建面约79㎡ 3房2厅1卫:南北通透3房,功能分区合理,全凸窗设计,三分离卫生间。

建面约89㎡ 3房2厅2卫(竖厅):南北通透3房,全凸窗设计,动静分区合理。


建面约89㎡ 3房2厅2卫(横厅):经典宽阔横厅打造,客餐厅一体化设计,通风采光俱佳,全凸窗设计。

建面约110㎡ 4房2厅2卫:设阔尺度横厅打造,阔绰景观阳台,动静分区合理,U型厨房操作使用,居住舒适度高。

10
楼盘综合点评
优势:
1、面积起步小,上车门槛低,预计首付百万内(3成)有机会入手。
2、紧靠地铁口,临近高速路路口,地铁及自驾外出便捷。
3、所处大空港及大前海,未来规划定位有一定优势。
4、依托会展经济,人流量充足,且有一定的配套基础。
5、周边多新地、新项目,城市面貌建设更新快,且建立“新城”的周期相对旧改短。
6、招商大品牌,实力口碑和产品质量等都能为后期的溢价提供充足的筹码。
不足:
1、片区新建项目较多,市场竞争压力较大。
2、短期内,周边环境较差,商业配套不足。
