会展湾雍境
请务必致电与销售确认时间,仅预约客户可进入销售现场,感谢您的支持
3月27日,沙井会展湾雍境一期登记人名册公示,项目共成功登记入围371批客户。3月28日,会展湾雍境花园(住宅) 一期摇号,摇号结果已经全部出炉,欢迎下拉查看!
推出住宅380套,户型建面均约为67-110㎡,备案均价约4.73万/㎡,单价区间约4.4-5.4万/㎡,总价区间约300-590万/套。
根据销售方案显示,项目将于3月29日进行线上选房。










此项目为2022年第二次集中供地中,招商竞得的沙井A301-0586地块——招商会展北项目 。当时招商蛇口以封顶价31.02亿元+ 14680㎡配建+19000㎡自持竞得。
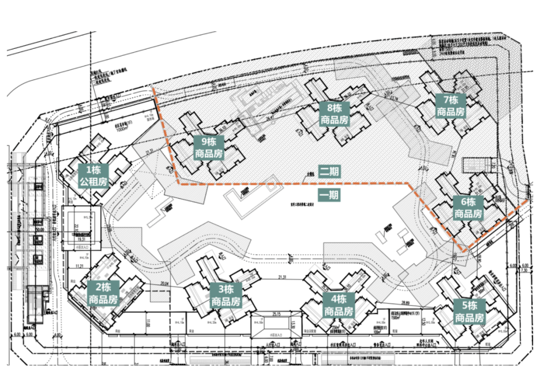
地块挨着特建发云海瑧府, 项目用地规划总建面151400㎡,包括住宅建面146750㎡,商业1500㎡,以及社区管理、菜市场、老年人照料中心、社区体育活动场地等。
项目分两期开发,一期住宅1259户(其中保障性住房 712 户)套内小于90平1263 户,占比100%;二期780套住宅,套内小于90平780户,占比100%。
总销售约1327套(不包括保障房),套内小于90平1327户,占比100%;毛坯限价4.79万/平。


项目由招商8月4日第二批供地中竞得,当天拿地即开工,此项目位于刚开通的12号地铁线海上田园南站A口,周边现在都是在建设的工地,未来片区建起来后还挺壮观的。
教育资源:项目周边目前并无教育资源,不过项目周边规划有3所学校,其中包括2所九年一贯制学校。
商业配套:项目自带1500平,冰雪文旅城(在建)商圈。
周边公园:环河绿道,海上田园、深圳冰雪文旅城(在建)
优势:会展新城少有的新盘,12号线地铁约200多米,海上田园也近,还限价4.79万,未来周边还规划18号线
劣势:飞机航线中,未来噪声会非常明显。

项目实景(3.23日拍摄)

附户型图:







会展湾雍境
