深圳【会展湾招商雍境】
开发商售楼处咨询/预约热线:18665399778(文经理)
(更多楼市动态| 欢迎来电咨询 | 请提前预约登记看房 | 1:1销售专业讲解)置业顾问一对一对接,来电享受额外优惠
温馨提示:看房需提前预约,请戴好口罩,做好防护,感谢您的配合!
位于宝安国际会展片区的招商A301-0586宗地取名为会展湾雍境花园,项目由9栋28-31层住宅围合组成,普通商品房源有1331户,开发商在拿地当天已动工,预计快的话在明年一季度左右入市。

项目简介
会展湾雍境花园前身原为宝安沙井A301-0586宗地,在今年8月4日的深圳第二轮集中供地上,由招商以31.02亿+竞配1.9万平拍下,在拍下的当天,项目就已经动工。
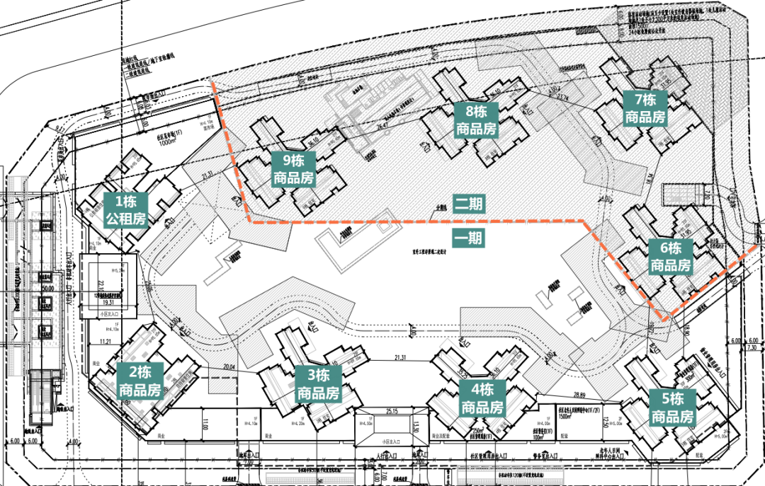
根据规划,会展湾雍境花园总建筑面积154163㎡,计容建面86867㎡,其中住宅80896㎡,商业1500㎡,公共配套设施3150㎡,机动车位1908,容积率4.08,由9栋建筑主体组成,总房源2043户(含712户保障房),可售房源有1331套,项目分为一二期开发,其中一期由1/2/3/4/5栋组成,其中1栋为公租房(靠近地铁),2-4栋均为商品房,共1263户(含保障房712户);二期由6/7/8/9栋组成,共780户,二期均为商品房。

图源政府官网
招商会展北项目效果图

项目所在片区的规划相对较多,离地铁近,楼下就是12号线的海上田园南站,算得上是地铁口,但目前所在片区正在开发中,整体配套不足,商品房极少,缺乏各项生活配套,相对荒凉,居住舒适度较差,加上周边也没有什么学校,需要等规划中的。
54班九年制学校和36班小学,而这些配套需要一个较长的时间周期去兑现。
同片区还有十月份入市的恒兴御景园和待入市的云海臻府,这两个项目的房源体量加起来都有一千套房源,加上会展湾雍境花园的1300多套房源,按照当下的行情,展湾雍境花园如此大体量的项目预计会有一定的营销手段和折扣优惠,要不然会有一个较长的去化周期。
恒兴御景园在今年10月初入市,直线距离会展湾雍境花园约一公里左右,其推售532套房源,面积段64-182㎡,备案均价4.79万/㎡(毛坯),冻资入围157批,据了解,开盘当天销售113套房源,但恒兴御景园距离地铁比较远,前往12/20号线的国展北步行距离约2.3公里左右。
会展湾雍境花园南侧的云海臻府总房源有1448套,其中商品住宅有744套房源,面积段105-120㎡,毛坯限价4.61万/㎡。
两个项目一南一北紧挨着,周边整体配套都相同,但招商会展北项目限价4.79万/㎡,而云海臻府限价4.61万/㎡,从价格上来看,云海臻府更具有价格优势,两者之间单价相差1800元/㎡,以一套面积100㎡房源为例,云海臻府总价为461万,招商会展北总价为479万,总价相差18万左右。


交通地铁:项目最近地铁为刚开通运营的12号线海上田园南站,算得上是地铁盘,12号线起于南山区左炮台东站,止于宝安区海上田园东站,将在本月底开通,此外,项目直线距离已开通的20号线会展城站约750米左右。


深圳【会展湾招商雍境】
开发商售楼处咨询/预约热线:186653997788(林经理)
(更多楼市动态| 欢迎来电咨询 | 请提前预约登记看房 | 1:1销售专业讲解)置业顾问一对一对接,来电享受额外优惠
温馨提示:看房需提前预约,请戴好口罩,做好防护,感谢您的配合!
