
“我们感到非常荣幸,能够为Tillamook Cooperative的农民们设计他们的全新游客体验。我们希望新建筑和游客体验能够成为Tillamook故事的一部分,这个故事关乎高品质产品,同时也关乎Tillamook乳品厂农民和员工。我们对于Tillamook乳品厂的未来发展感到非常兴奋。” ——FAIA、RIBA建筑设计负责人Tom Kundig





“在这个项目中,我们想借鉴Tillamook乳品厂的农业传统,建造一个理性、直接的建筑,这个建筑能真实反映了Tillamook Cooperative农民们的经验与历史。”
—— FAIA、RIBA建筑设计负责人Tom Kundig





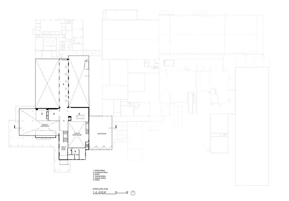
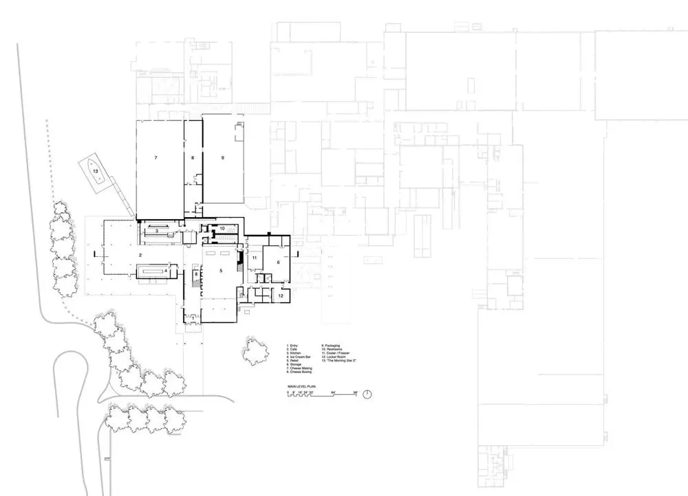
“对于Tillamook来说,我们让游客感受了手中食物的背后故事。这讲述了Tillamook乳品厂109年来的历史,其中有乳品厂、奶牛、农民,以及高品质材料。” ——展览主要设计人员Alan Maskin
















