就在昨天,长沙楼市的一枚重磅炸弹,引爆了朋友圈:
运达地产纯新项目——运达会展湾一期地块首开,一次性拿出了全部11栋房源全场摇号,单日斩获13亿销量!

这是长沙楼市足以载入编年史的大事件。
要知道,项目产品可是建面约191-606㎡纯改善项目,门槛不低。
但昨天的购房现场,约500组认筹客户让瑞吉酒店1700平的大宴会厅座无虚席。

首秀大卖,除了拥有大量簇拥者的品牌效应,更重要的原因还在于:
这是你从未见过的全新运达。
NO.1丨壹
作为湖湘地产的品质担当,二十余年每一次新品亮相都意味着运达开启了新一轮的产品迭代。

这次也不例外,而且更加宏大。
因为运达会展湾的全新关键词,是造城。
项目位于高铁会展新城核心板块,总占地达到了约1100亩。

项目区位示意图,仅供参考
堪称超级大盘的体量给了运达会展湾足够的施展空间,也带来了更多难度。
要知道,真正意义上的造城可不是建起一片房子就完事了。
造出来的建筑要立得住,要有独立的产业支撑,还有完备的运营体系开启内外循环,才有可能成为整个城市的一部分。
所以在项目约1100亩的土地上,建设用地只有约450亩,配套用地竟高达650亩!
整个运达会展湾项目规划了7期业态,除了一期的城市森林花园住宅和多层洋房住宅,还有包括国际五星级奢华品牌酒店、高端商业街区、运动中心、青少年活动中心、医疗康养中心、生态企业总部、独栋花园别墅的多元形态。
一句话:让该有的都有。

而且规模庞大的运达会展湾,是在完成配套引入、商业落地、城市共建等一系列动作,并等待住宅全部封顶后,再开始一期准现房的销售。
于是项目面世时,业主们审视周边的目光,已经变得已胸有成竹。
丽思卡尔顿来了:
丽思卡尔顿酒店效果图,仅供参考
这个万豪旗下的全球首屈一指的奢华酒店品牌,一向被称为“全世界的屋顶”。
这样级别的品牌选址向来苛刻,它的入驻可以说是万豪集团对片区发展的认可。
与之配套的近2万方商业街区,将配建高端5A甲级写字楼,后续将作为运达集团总部办公,为整个片区带来大量稳定人流。
育英小学和雅礼洋湖中学来了:
一个长沙的传统名校,一个“雅礼系”近年崛起的新贵,加上自建了约2500平米的幼儿园,为业主家庭实现目送式教育。(具体学区划分以教育局官方文件为准)

运达高标准的景观风光带也来了:
项目紧邻浏阳河风光带,周边还规划了2个市政公园,给业主提供了休闲娱乐的空间。
各个维度上,运达都以百分百的确定性给予客户信心,才有了开盘的满堂喝彩。

我们常说房子是用来住的,但究竟什么是客户心中的理想生活,这是运达一直努力探索的课题。
齐全的周边配套只是其中之一,具体到社区内部,更重要的是生活方式的重塑。
在运达成名的大平层产品上,会展湾做出了截然不同的诠释。
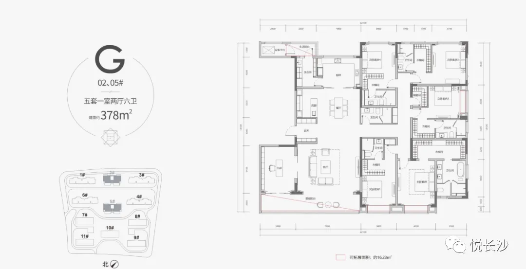
项目一期包含6栋水岸花园洋房和5栋城市森林花园住宅,北瞰浏阳河,南邻市政公园,旁侧即是学校,整体容积率仅约1.9。

建面约191-606㎡的水岸花园洋房,里外都透着两个字:从容



项目户型图,左右滑动查看更多,仅供参考
首先是层高,达到了惊人的3.3-3.6米,高挑的空间让室内布局更加开阔。
其次是尺度,U型厨房、LDK一体化、超大阳台、多套房等设计搭配洋房独有的高得房率,每个空间都极具尺度感。
除此之外,整个项目还有自带空中庭院的城市森林花园住宅。

5栋城市森林花园住宅,户型基本一致,全都是建面约263㎡的两套两室两厅三卫。

如果说270°三面采光客厅、走廊式玄关、U型厨房、LDK客餐厨一体化功能厅等奢阔空间是仪式感的化身;
那南向双套间、星级套房主卧、3卫生间设计就是生活便利的呈现。

但最出众的,一定是那个东西向的空中庭院。
要知道,项目空中花园部分面积约45㎡,只有20%计入建筑面积,相当于80%赠送面积,并且全精装交付。
运达利用镜像户型的设计,让庭院分置于楼栋东西两侧,以楼体为遮挡错层分布,同时兼具中间隔板的效果。
既延伸了客厅空间,也不影响南向采光,还为整个客餐厅开启了270°景观视野,甚至让每户的空中花园拥有约6.6米的层高,避免了上下楼栋的庭院干扰,把空中院墅的概念全力呈现。
充足的土壤厚度(约50cm)可自由搭配庭院美景,且交付配齐了花园草木和自动灌溉系统、防蚊虫系统、氛围灯等,未来可开启一键养护模式。
从外部的硬核配套到内部的精致肌理,你可以清晰地看到,运达的项目,永远不是单纯做产品这么简单,而是围绕着用户的生活去打造产品,这是先天自带的运达血统。
对运达而言,我更愿意称它为脚踏实地的理想主义者。
虽然一直在维系高端领域客群,但运达从来不定义高端,连单价超过3.5万的运达滨河广场也从不进行验资行为。
敞开大门,欢迎交流,尽可能倾听更多意见,是运达的基本原则。
比如会展湾项目,自1月9日开放以来,客户提出了增加插座、增加地漏等各种细节反馈,运达同步改进,最终于开盘前修改并入最终呈现标准。
比如目前长沙主流装修审批标准是2500-3500元/㎡,但运达会展湾为满足高端客群对生活的追求,定制豪装系精装标准超5000元/㎡,超出的1500元/㎡全部赠送。
在此基础上,运达还给出了巨大诚意:
项目的备案均价城市森林花园住宅约20700元/㎡,水岸花园洋房约21700元/㎡,但首开的成交均价仅分别为18000元/㎡、19000元/㎡。
这样的用心和诚心,自然会反馈到销量上。
凌晨排队认筹、11栋房源全部推出依旧摇号、首开卖13亿,真的不是偶然。
如此大规模的投入,运达会展湾成为新的城市名片只是时间问题。
但依然有人不解:
运达为何情定会展新城?
项目所处的区位,又叫会展新城国际交流区。
项目效果图,仅供参考
这里具备了高端住宅的天然低密基因,周边还包括浏阳河风光带、浏阳河磨盘洲、万亩画田垸湿地公园等城市绿肺。
大批尚未出让的土地留下了足够的想象空间,更像一张大量留白的画卷。
在最新的会展片区控制性详细规划修编公示里,会展片区功能定位为“自贸经济对外开放的国际门户”和“综合性服务中心”。
加上本就自带的会展产业,和高铁新城、空港新城一同组成了“空铁枢纽+国际会展功能区+国际自贸区”的特殊定位。

看遍全国,拥有同样地位的片区只有一个:上海虹桥,似乎也映射了运达重仓会展的参照物。
这样的定位和规划,注定这是一片未来的门户之地。
注意上述表达中的高频关键词:国际。
再看一下运达对会展湾项目的定位:一个业态多元、科技智能、节能环保、生态优美的现代化高品质国际社区。
这不是一次牵强附会的巧合,而是一次长期主义的现实案例。
要知道,早在2007年,运达国际广场引入长沙第一个五星级酒店——喜来登时,运达就曾表达过“长沙需要一个面向全球的窗口”的梦想。
如今,在国际化的会展高铁新城,国际化的运达会展湾成了当初梦想的延续。
NO.5丨伍
看到这里,你能明白,为什么运达一直受到购房者的追捧。
是的,态度。
不论市场怎么变,不论别人怎么说,它总是坚持用自己的态度来做自己的产品。
运达多年前就把真正长期主义扎根在运达的基因里,二十多年来,初心不改。
运达会展湾,值得看,值得跟他一起共同参与自贸会展片区的崛起。
眼下,一期产品还有少量准现房可选,即将加推的二期新品,同样值得期待。
毕竟,这是总会有惊喜的运达。
进大平层豪宅交流群
加微信后私信“运达会展湾”

更多精彩内容,点击下方关注公众号!
