发布信息

基础生产线的三维布局

作者:本站编辑      2026-02-22 13:56:00     11
基础生产线的三维布局
在工业领域,陶瓷并不是唯一的硅酸盐产物,水泥,砖瓦,玻璃,耐火材料,家用建筑材料,基本成分也都是各不相同的硅酸盐,陶瓷的生产就是无意间的火烧阿房宫或火烧圆明园,一旦温度过高,所有的固体产物就会化作一地焦土,当已经生产的瓷器被非工艺性的热处理所取代时,瓷器也会变成一把烧焦了的泥土。
小编之前没有经历过玻璃生产线,但见过玻璃,在自动化高度覆盖的生产过程,升温曲线也就不局限于陶瓷的制造,而是什么样的材料,也就必须采取什么样的温度来完成制品的出现,高温釉,低温釉并不是人们为了满足不同的烧制效果,而是材料的性质只能保障用高温还是低温来加热到某个临界点,使半成品过渡到成品的过程需要保持理想的工艺形态。
平板玻璃基本有四种工艺方法:垂直引上法,平拉法,这两种方法对于平面误差和产品质量造成的干扰很大,逐渐被压延和浮法生产线所代替,如果从陶瓷墙地砖和图案施工等方面,对玻璃的要求精度会更加有所提高。
传统的陶瓷,以艺术瓷作为鉴赏的独特造型,以原始的方法进行烧制,以随心所欲的艺术效果展示在陶瓷的制造上,那些传统的手艺,也只能在文博界做一些真真假假,虚虚实实的物理性质,没有什么技术难度,唯手熟尔。
玻璃生产线是将制造玻璃的材料完全熔化,变成液体,并通过液体的流动进行平面成型,而不是在半固体半液体之间,依靠固体的支撑和液体的浇灌,尽最大的限度保持原样,通过助熔剂的降低熔点和熔融体对间隙的填充,陶瓷的制造和烧制变成独特的使用和艺术产物而作为轻工业的一部分行业类目。对于技术难点和应控制的质量标准,材料要求,工艺过程,升温曲线,往往不具有技术特性和对装备的特殊要求。人们所考虑的,就是生产时间发生在什么时候,距离现在保存了多长时间。瓷器的收藏,从一定的基础考虑,就是时代的确定性,质量等地的高低,资源的稀缺性,这些物的方向考虑,而不是什么人自己对于世界观的掌握。从人性上去思考一件物品的基本属性,价值连城和一文不值,就是对资源的占有欲或者对博弈的筹码有着理想的预期。这种思维,和野兽的本能没有什么差别,文明和文化的差别基础也在这里面。信息的茧房在古代物品和仿古制品之间就给人造成了很大的壁垒。
一份简简单单的布局图,在产业实施的过程,技术难度和质量控制的精准度,可以不用做任何后台的支撑,无非就是加工能力的大小,对整条生产线的各个工段尽量做到无人值守,人只在辅助的岗位上进行情景化的管理,机器取代人工,对设备的配置与选型,对动力要求,对加工精度的稳定化,是作为流水线产业的一种集成能力核心的体现。仅仅从概念图上,模型的概念存在,无论是企业组织结构,还是基础的设计参考,一些基础的概念规划产生,就有了一定的底层逻辑意义。
如何把一份不具有任何意义的规划图,变成一个完全展示给各个不同的人都可以做引用的企业宣传,技术交底,可行性分析,商业论述等都完全以思维引导进行全面反映。宏大叙事是不可能的,人们更多的是需要知道你的底牌有没有能力把这件事情完成。零基础将规划做的让人看到最终的模样,才是给决策者做的有力参考。一份草图最终转化成可实施的效果图,产能和技术参数做细化的输出,也就为所有人提供了可行性的参考。
当用布局模型进行展示的时候,所有人都看得懂其中的道理。
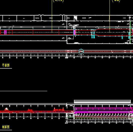
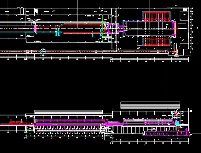
长约400米的浮法玻璃生产线布局草图及模型概念图
从熔化----压延(浮法)---冷却----裁切(静止,运动)---废料落料---下线---输送---打包等全部过程,几乎完成全部运行的自动化。在速度上的选型,整体生产线的协调,几乎所有的平板玻璃生产企业也都可以做成这种标准化的模块。从石英砂变成一块块完整合格的玻璃,所用的的生产线也就基本囊括了。在集成类生产线,也就可以应对任何形式的客户的需求,功能,配置,产能,规划,细化,采购,安装,调试,运行等全方位的服务。
从接触这样的图纸,时间过去两周左右,很少借用现有的模块,技术原理及功能达成,翻阅少量的资料以外,这种闭门造车的生产线,有经验的成手企业和相应的供应商,都可以达到完全的技术交底。

相关内容 查看全部