
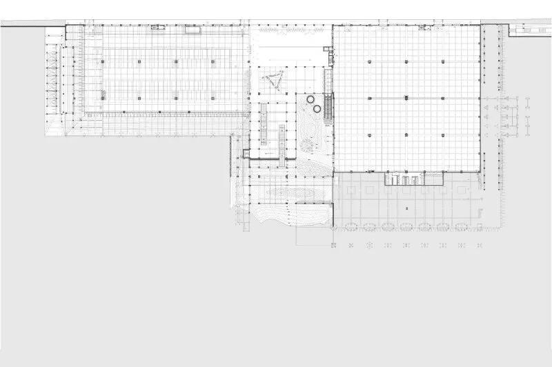
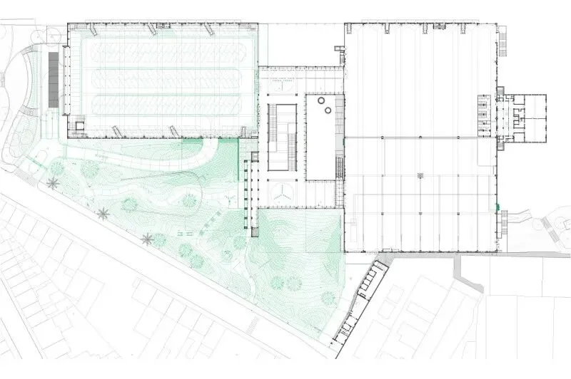
本项目旨在充分挖掘这座位于坡地上的庞大建筑的潜力,同时保留其尺度感、理性特质与纪念性等非凡品质。目标是对现有结构的每个部分重新评估其历史与遗产价值,从而为拆除、保护和翻新决策提供精准指导。建筑干预力求最大限度地减少设计痕迹,重新规划流线体系。项目将公共空间、停车场和景观引入建筑内部,同时重建市中心与周边区域的连接。
原方案建议用一座低能耗建筑取代中央大厅,但预算仅为所需资金的三分之一。因此最终改为开放中心区域并拆除立面,形成有顶盖的户外空间——这实质上构成了一个"零能耗"结构。通过在一楼开辟中庭,与昏暗的地下层连通,从而在项目核心区域打造出三层通高的立体花园。南翼被改造为多层停车场,进一步将热工围护结构缩减至北侧体量。经过深思熟虑的拆除工程衍生出诸多巧妙解决方案:例如自然通风的停车场楼层;或是拆除受损混凝土板,将停车区域转化为公园绿地。建筑所处的矿渣堆被暴露出来并播种乡土植物,形成生态丰富的景观。施工期间新增了整合会议中心的需求,为此增设的新阳台仿佛在向世人展示原始建筑的改造潜力。
尊重性再利用原则贯穿项目始终,通过发掘与强化既有特质,形成一种平衡经济、生态与美学的建筑考古学实践。建筑干预仅限于精准的点状介入:例如通过叠加双层绿色栏杆来满足现行安全规范;将拆除构件转化为城市家具;采用白色抗碳化涂料保护原有混凝土;表面按原功能色彩编码重新涂装(如网球场沿用绿色),既恢复场所记忆,又帮助人们重新认识焕新后的建筑。项目限制特殊技术的使用,积极引入自然通风。材料选择注重耐久性与直接性,植被配置要求低维护。建筑原有的灵活性得到增强并延伸至未来,如今已成为展览宫的鲜明特征。本次改造并非终点,而是让建筑获得新生并持续演变的开端。

































1.https://eumiesawards.com/heritageobject/charleroi-palais-des-expositions/
2.https://www.agwa.be/en/projects/1508_CHAPEX/151/
