功能至上!会展城核心新项目户型设计曝光
随着远洋官宣代建以及城市展厅开放,位于观山湖区会展城核心的新项目——美韵林城峯上的户型也于近日公布。
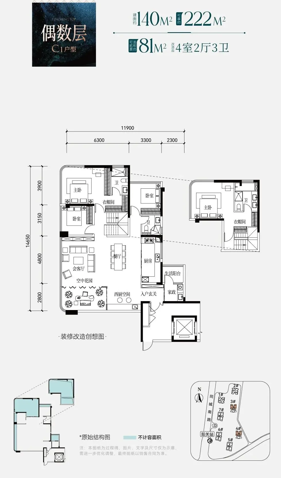
据悉,美韵林城峯上共有建面115/119平方米、137/140平方米、140/140平方米、166/166平方米四大类共八种跃层户型;


115/119户型


137/140户型


140/140户型


166/166户型
其中115/119平方米和137/140平方米户型系5、6、7号T4楼栋户型,140/140平方米和166/166平方米户型,则是3、4号T3楼栋户型。
总体看下来,我个人感觉这个项目的户型,更多关注的是功能性,无论建面是115平方米还是166平方米,功能区都填得很满;
这里我也是总结出了这些户型的以下几个特点,或者说优势和大家分享:
①所有户型均可电梯入户,且均有私享前室;
②所有户型均有独立玄关,且除166户型外,均有对景墙;
③所有户型均配备有独立生活阳台,且除115/119户型外,均有独立家政/储藏间;
④所有户型均是静区挑空设计;
⑤除166户型外,其余户型均有+1房可拓展客厅景观面。
虽然拥有以上这些优势,但项目的户型依然称不上完美,在朝向、改造成本以及奇偶层差异上,仍会存在一些劣势。
比如115/119户型,就需要在主卧套房的功能性和景观面上做取舍:
想要双面采光就必须放弃掉一些储物空间,同时总价也会因建面的变化而产生差异。
总的来说,美韵林城峯上这次释出的户型,大体上还是具备差异化竞争力的,接下来就看项目如何定价了。
而随着项目户型产品出炉,结合此前公示的规划,目前可以给项目做一个基础的定调了。

项目区位优势不用多说,单看美的林城时代坚挺的二手房价格,就能知道项目的区位铁定错不了;
规划条件上,项目地块其实面临诸多掣肘,但总体排布上还是化解了不少,通过巧妙的错位,项目的商品房楼栋几乎实现了无遮挡,即便是错位不够充分的楼栋,楼间距也超过了60米;

户型设计上,项目具备一定的差异化优势,但也伴生有一些可能会被关注的劣势。
事实上,项目真正面临的痛点,其实并不在区位、规划或户型设计上,而是在于内部的回迁房,以及尚需时间改善的城市界面上。
从与户型同时释出的鸟瞰图,以及公建化立面的楼栋效果图来看,项目是有意往高端方向去靠的,如何用预期消解不利因素以及如何制定合理的首开价格,会是项目当下最需要做好的功课。

2026年贵阳定下这些目标
2026年2月4日,据官媒公开报道,2026年贵阳市政府工作报告已正式对外公布,这里我还是按照惯例,为大家摘出与城建、地产相关的重点内容。

根据报告,2026年贵阳市将因地制宜打造玩具手办、国潮IP等年轻化消费产品,新引进首店100家以上;
围绕精品咖啡、精酿啤酒、精美餐饮、精彩文创、精致旅居,升级焕新一批“文旅+”融合产品;
创新举办第一届“食博会”,在重点商圈、夜经济商圈导入“咖啡”“新茶饮”“精酿+Livehouse”等元素,培育“小而美”“专而精”的特色店铺,打造“早C午T晚A”的贵阳消费文化新图景;
加快鹿冲关森林公园康养休闲示范基地等项目建设,面向国内外重点市场策划“逃离酷暑潮热来贵阳计划”,联动周边城市推送专属优惠,吸引不少于50万人次来筑避暑旅居;
举办大型演唱会及音乐节45场以上、路边音乐会200场以上;
办好贵阳“城超”、贵阳马拉松、攀岩世界杯、“阳明杯”围棋赛、贵阳国际网球公开赛等赛事,打造山地户外运动目的地;
全年接待游客人次、旅游总花费均增长9.5%左右;
加快建设贵阳环城高速公路扩容工程、观潭大道、红花连通工程等基础设施项目;
用好房地产新政,提速“好房子”和旅居地产建设,开展商品房“以旧换新”,盘活存量、优化增量,推出改善性住房项目20个以上、避暑地产项目5个以上;
谋划实施一批民生类补短板项目,加大对教育医疗、文化体育、职业培训等领域的公共投入,提高民生类政府投资比重;
支持石板现代商贸服务园、西南国际商贸城提质增效;
新增各类产业人才5万人,高校毕业生留(引)筑10万人以上,引进培养教育、医疗、科技等领域博士100名以上,人才总量突破170万人;
深化贵阳贵安融合发展;
坚持人口、产业、城镇、交通一体规划,加快编制中心城区详细规划,统筹路网、水网、电网、气网等规划建设管理,推动国土空间高效利用,健全与常住人口相适应的公共资源配置机制,提升贵安新区产业支撑能力和公共服务水平;
坚持保护优先,高起点高标准高质量谋划推进阿哈湖区域规划、融资、招商、建设、运营、管理等各项工作,按期启动世行贷款项目建设,奋力开启“两山”转化、“多彩贵州、爽爽贵阳、幸福阿哈”的新篇章、新传奇;
持之以恒抓好城市“一圈两场三改”,实施街区改造、站点提质、片区试点工程,加快推进148个在建项目建设,新开工城中村改造项目15个,实施老旧小区改造项目25个、背街小巷改造50条、老旧街区(厂区)改造项目4个,完成棚户区改造项目21个,实施老城区微改造项目100个,建设改造污水管网150公里、燃气管网74公里、供水管网100公里、雨水管网156公里;
健全城市风貌管理制度,加快“一河一道两片”重点项目建设;
深化花果园、未来方舟等大型社区治理;
优化公共交通服务,提升公交与轨道交通接驳能力;
加快贵阳贵安全域智能信控项目建设,有效缓解中心城区交通拥堵;
健全租购并举的住房制度,满足工薪群体刚性住房需求。
给报告划完重点后,有个重磅内容必须跟大家聊一聊——被省市两级计划文件都提及的阿哈湖片区。
虽然省级政府工作报告正文并未直接提到阿哈湖片区,但2026年贵州省计划报告(审查稿)中明确提过,要“支持贵阳贵安高标准推进阿哈湖区域规划建设”;
结合本次市级报告的重点表态,阿哈湖片区的开发,毫无疑问会成为接下来贵阳贵安推动新型城镇化战略的工作重点之一。
那么,阿哈湖为何会如此重要呢?在我看来,其代表的,是贵阳楼市可能存在的新增长极,是打通大贵阳城建工作的主动脉。
区位上,阿哈湖北靠三马、南抵金竹,位于大贵阳核心,一旦数博大道和太金线打通,这里就会成为不折不扣的城市几何中心;
生态上,阿哈湖绿心在充分开发过后,毫无疑问会成为比观山湖公园更大的生态典范,值得深入挖掘生态价值;
产业规划上,依托贵阳近年来愈发火热的文旅、旅居和康养概念,阿哈湖可以做的文章也很多;
总之,相比起更像飞地的贵安新区,阿哈湖确实在先天条件上,更适合被打造为新的增长极。
当然了,即便阿哈湖片区有着超强的开发潜力,也并不代表着其开发工作就会一帆风顺。
首先,阿哈湖片区基础配套薄弱,需要的先期投入很大,结合当前不甚好的财政状况,战线和时间都可能会拉得较长;
其次,阿哈湖片区缺少轨交支持,虽说后续基础设施起来后,能缩短一些和地铁接驳的距离,但远期来看确实也会面临一些便利性问题;
最后,阿哈湖片区规划难度大,因为市场现况关系,大盘模式已经基本被摒弃,小步快跑的开发模式势必会造成一些矛盾,贵阳城投集团要如何做好统筹工作,也会是一大难点。
无论如何,阿哈湖片区的开发确实会得到政府方的大力支持,也确实会面临诸多难题,机遇与风险并存;
但总体方向和思路,我认为是没有问题的,是非常值得尝试的。
也许在不久的将来,阿哈湖就会成为观山湖之后,新的贵阳楼市热词。
贵阳市第三批参与“以旧换新”活动项目名单公布
2026年2月6日,贵阳市住建局公示了第三批参与贵阳市商品住房“以旧换新”房地产开发企业及项目名单。
第三批名单共含3个项目,分别位于云岩区和观山湖区,结合第一、二批名单,目前贵阳市已有24个项目参与“以旧换新”活动。
第三批名单具体如下。

附:第一、二批企业及项目名单


贵阳楼市周成交榜
据贵州省房协统计数据,2026年1月30日至2026年2月5日,贵阳主城六区住宅网签金额榜单中:

贵阳城投融翠成为周销冠,凯佳里仁境排名第二,众恒观山云麓位居第三;
其后分别是天一观山阅、乾麟龙观宸、天瀑观山府、盼盼金檀郡、黄埔国际、东都云湖天境和万科理想城等项目。
从榜单大家不难看出,过年前的例行下滑期是已经到来了,接下来的两三周也大概就是这个状态了,所以环比分析咱就放到年后再做了。
不过虽然是例行下滑,但本周贵阳主城楼市榜单,还是有点意思的。
我万万没想到贵阳城投融翠,能够凭借交付红利,把凯佳里仁境和众恒观山云麓两个项目挡在身后,成为周销冠;
看起来,市场对于融翠首批交付洋房的表现,还是颇为认可的,而融翠也有机会再接再厉,在周榜上站稳,成为下一个销量长虹的项目。
至于凯佳里仁境和众恒观山云麓嘛,本周就算是稳定发挥了,在例行下滑期里,表现也还算亮眼。
再往后,天一观山阅的身影,也是很久没见到;
这个凭借“颜值”出圈的项目,目前顶着区域内相对较高的售价能在单周有次表现,还是比较令我意外的;
看起来,在新的学区加持之后,这个“颜值”项目也再次补齐了一个短板。
接下来,乾麟龙观宸、盼盼金檀郡等,也是市场上颇具代表性的几个好项目了,出现在榜单上也是理所当然。
总的来说呢,接下来两周的贵阳主城楼市榜单,可能就不会有太多看点了。
真正的变数要等到年后,投控甲秀、美韵林城峯上等重磅新项目正式开卖了。
即将面世!投控置业新项目投控甲秀启动前期物业招标
2026年2月2日,据贵州省招投标公共服务平台公告,贵阳投控锦铭置业有限责任公司正式就G(22)130地块项目前期物业管理服务实施招标。
这意味着投控置业原融媒体中心地块项目有望于近期面世。
据悉,该项目位于林城东路北侧,金朱东路以南,地处博物馆、图书馆正后方,区位优势十分明显;
项目总投资14.25亿元,总建筑面积145893.26平方米,建设内容包含住宅9栋、商业5栋(1栋为独立商业其余为底商)、幼儿园1所。
而根据近期业内信息,该项目案名已正式确定为“投控甲秀”,首开主力户型建面为180-225平方米;

按照此前读者朋友分享的照片,这些户型有望采用时下流行的“全景舱”端厅设计,同时楼栋还将采用公建化立面。


事实上,据业内小道消息,项目有望在春节后也就是3月初正式面世。
值得关注的是,2月6日,贵州省招投标公共服务平台又发布了该项目营销中心工作人员工装制作采购公告。
根据公告,该项目营销中心工作人员工装制作最高限价11万元,要求2026年3月5日前完成制作。
编制实施贵阳都市圈发展规划,省级政府工作报告出炉
2026年2月2日,贵州省政府官网公示了2026年贵州省政府工作报告(全文),这里我也是按惯例摘出与地产及贵阳相关的重点内容和大家分享。
根据报告,2026年贵州省将推动贵阳环高扩容工程等14条高速公路项目和黄百等4个在建铁路项目加快建设,推进重庆至贵阳高速铁路前期工作。
全面开展城市体检,编制城市更新专项规划,统筹推进片区更新,大力推进老旧小区改造,建设和改造城镇地下管网4000公里以上。
加快存量安置房清零。
积极争取金融机构支持,统筹资金收购存量商品房用作保障性住房和安置房。
因城施策增加改善性住房供给,落地建设“好房子”项目50个左右。
用好新型政策性金融工具、银行贷款、公募REITs等,设立城市更新基金和专项引导资金,为城市更新项目提供多元化金融支持。
新建改扩建及维修改造公办幼儿园200所以上、义务教育学校500所以上、普通高中40所以上,力争实施医疗卫生强基工程10个以上。
统筹推进增量项目谋划和存量项目盘活。
出台政府投资项目全生命周期管理办法,制定全省闲置低效项目盘活行动方案,分领域推动项目发挥效益,以存量盘活带动增量优化。
统筹推进“黄小西吃晚饭”等重点旅游景区和贵阳、安顺、兴义等一流旅游城市建设。
建设贵阳、遵义国家物流枢纽,打造5条多式联运示范线路,A级物流企业达210家。
推动贵阳综合保税区与贵阳国际陆港一体化打造国际贸易中转集拼地和西南重要国际物流枢纽。
编制实施贵阳都市圈发展规划,制定新一轮政策措施支持贵安新区、毕节高质量发展。
持续办好生态文明贵阳国际论坛。
湖师大贵安学校小学部推进建设
2026年2月3日,据贵阳市公共资源交易中心公告,湖南师范大学附属贵安学校(小学部)建设项目启动全过程代建服务采购工作。

根据采购公告,湖南师范大学附属贵安学校(小学部)建设项目建设规模48班,提供2000个学位,总用地面积50251.39平方米(75.38亩),总建筑面积36555平方米,项目总投资21025万元。
而根据湖南师范大学附属贵安学校官微公开信息,该校规划占地面积316亩,办学规模156个班,其中小学部60个班、初中部36个班、高中部60个班。
相较本次采购公告内容,该校小学办学规模有所变化。
目前,该校高中部已于去年8月10日通过竣工验收,同年9月份,该校小初高三部全部招生开学。
延伸阅读:湖南师大附中创建于1905年,是湖南省首批示范性普通高级中学,是一所文化底蕴深厚、办学成绩卓著的百年名校,培养了大批革命志士和科技、经济、文化杰出人才。
学校师资力量雄厚,其中享受国务院、省政府特殊津贴专家5人,国家级教学名师1人,正高级教师14人,特级教师12人,学科奥赛金牌教练26人,学生参加国际中学生学科奥林匹克竞赛,获得国际金牌36枚、银牌13枚,金牌总数和奖牌总数均居全国前列,被誉为“金牌摇篮”。
楼市快讯
1、誉鹭湖中小学进入实质性推进阶段
2026年1月30日,据贵阳市公共资源交易中心公告,誉鹭湖中小学项目正式启动设计-采购-施工总承包(EPC)招标,标志着该新建教育配套项目进入实质性推进阶段。根据公告,该项目位于观山湖区同城大道与宏运大道交叉口东南侧,为全新新建中小学项目,总用地面积59157.32平方米,主要建设内容包括18班小学和9班中学,建筑总面积达21868平方米。项目计划工期为540日历天,总投资为26796万元,其中建安合同估算价约12600万元。去年3月份,誉鹭湖项目曾官宣签约观山湖中学教育资源,拟建设观山湖中学(分校)。
2、南明区两宗地获用地许可
2026年1月30日,据贵阳市自然资源和规划局公示信息,52010220250038和52010220250045号地块已获取建设用地规划许可证。其中,52010220250038号地块位于南明区甘荫塘,东临花溪大道,西至沪昆铁路支线,南抵诚景尚城,北至梧桐苑,实际出让面积58302.99平方米,容积率2.5,成交楼面价2350元/平方米;52010220250045号地块位于南明区甲秀南路西侧,东至南明区甲秀路,西至南明区区界,南至甲秀南路生活垃圾分类分拣中心,北至上坝路,实际出让面积24943.02平方米,容积率2.5,成交楼面价2300元/平方米。两宗地均由南明区国企平台公司获取。

52010220250038号地块

52010220250045号地块
3、白云区新项目将启动建设
2026年2月4日,据贵阳市公共资源交易中心公告,高科雲蘭颂建设工程项目启动设计施工总承包招标。该项目位于白云区艳山红镇,建设单位为贵阳高科科技置业发展有限公司,总投资230065万元,占地面积约178亩,总建筑面积约43.71万方,建设内容包含商品住宅、商业、小学、幼儿园、社区配套用房,停车位约2834个(预留100%充电基础设施安装条件且配建不低于10%比例的充电基础设施),项目暂定分三期实施,每期工程建设施工工期不超过720日历天,总工期不超过2160日历天。
4、投控花漾云岩配套学校推进建设
2026年2月6日,据贵阳市公共资源交易中心公告,投控花漾云岩二期(D地块学校)已启动施工图设计招标。据悉,该项目单体建筑面积为27500平方米。2025年12月份,贵阳市云岩区教育局、上海交大教育集团与贵阳投控置业举行合作办学签约仪式,共同筹备设立上海交大教育集团云岩花漾实验学校(筹)。
5、观山湖公园联欢乐活组团配套设施项目启动总承包招标
2026年2月5日,据贵阳市公共资源交易中心公告,观山湖公园联欢乐活组团配套设施项目启动设计、采购、施工总承包(EPC)招标。据悉,该项目总用地面积约30.6万方,拟新建总建筑面积约4.2万方,建设内容包括游客服务中心、剧场、音乐中心、艺术中心、配套服务用房、地下停车场、管网工程及室外景观工程等。项目总投资43836.38万元,设计计划工期150天,施工计划总工期480天。

