
我们相信工业遗存的保护与改造可以重塑一个地点,重塑一种精神,工业遗存不应仅仅成为后工业时代的大众消费品,它浓缩的城市记忆应该被发掘、显影和放大,并且在未来持续生产新创意、制造无限新的可能性之中重获新生。由此,我们提出“即地制造”的主题概念,希望啤酒厂在改造过程中保留其建筑美学价值和原有时代记忆与特质,进而成为一个城市精神的展示窗口。
——孟岩


集体回忆
© TAL
© 直角建筑摄影

© 直角建筑摄影
© TAL
东昌路沿街立面 © 直角建筑摄影
东昌路沿街立面 © 直角建筑摄影
南侧入口 © TAL
观景塔 © TAL
观景塔 © 直角建筑摄影
© TAL
观景塔内部 © TAL
观景塔内部 © TAL
观景塔室内 © 直角建筑摄影
B栋南立面 © 直角建筑摄影
B栋 © TAL
B栋 © 直角建筑摄影
B栋 © TAL
“在地铸造”展览装置 © TAL
“在地铸造”展览装置 © 直角建筑摄影
“在地铸造”展览装置 © TAL
“在地铸造”展览装置内部 © 直角建筑摄影
“在地铸造”展览装置内部 © TAL
空中连桥 © TAL
空中连桥 © TAL
空中连桥 © 直角建筑摄影
原沉淀池改造后 © 直角建筑摄影
原沉淀池改造后 © 直角建筑摄影
C栋下沉广场 © 直角建筑摄影
C栋下沉广场 © TAL

© TAL
© 直角建筑摄影
D1栋 © TAL
D1栋 © TAL
D1栋 © TAL


展厅 © TAL
展厅 © TAL
D5栋 © TAL
原发酵罐室内空间 © TAL
D1栋展厅 © 直角建筑摄影
东昌路沿街立面 © 直角建筑摄影项目图纸

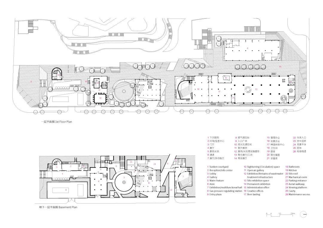
区位总图




给大家推荐一个专注城市更新的公众号 城市更新UR+ Urban Renewal 欢迎添加关注 ↓↓↓
[新加坡设计考察] 高端住宅、商业、酒店、康养、公共建筑景观
[新加坡站]
[4月20日-4月23日]
点击下方图片查看考察详情
[好书推荐]
新微设计“大美系列”丛书
乡村振兴设计两部曲
《大美小镇》+《乡村私宅》
特色小镇与田园综合体 · 优秀乡村建设实践
点击下方图片订购该图书
▼
[好书推荐]
[民宿考察推荐] 高端民宿运营、设计、建造考察学习 [莫干山站] 第75期 [4月10日-4月13日] 点击下方图片查看考察详情 温馨提示:本次民宿游学限40人,满员即止,有意参加者请及时联系常老师报名(电话&微信131 2062 8228 )。
[楼盘考察活动推荐] 成都8大精品楼盘 中式合院+叠墅+平层+高层+洋房......
[4月1日-4月2日] 名额有限,满员即止 点击下方图片查看活动详情
GHDA环球人居设计大奖 全领域设计大赛 Global Habitat Design Awards 建筑+景观+室内+文旅+民宿酒店 最 | 后 | 一 | 轮 | 火 | 热 | 申 | 报 | 中 点击下方图片查看大奖详情 ▼▼▼
[好书推荐]
新微设计11本“大美系列”设计丛书
建筑+室内+景观+民宿+酒店+庭院
[一套不错的全领域设计丛书]
点击下方图片查看详情
▼
由新微设计策划出版,每一本图书各具特色,围绕着“创造更美好的人居环境”逐层展开,从建筑、景观、室内等不同的设计角度,阐述着当代人一直所探寻的居住理想,是一套不错的全领域设计丛书。欢迎大家参与支持,您的支持是我们不断前行的动力。









