








北京师范大学附属中学经开学校项目
施工招标资格预审公告
1. 招标条件 本工程 北京师范大学附属中学经开学校项目
已由 北京经济技术开发区管理委员会 以 京技管(审)〔2025〕39号 批准建设,招标人为 北京经济技术开发区土地储备与建设服务中心 ,建设资金来自 政府投资(地方) ,工程出资比例为 100% ,招标代理机构为 北京京咨工程项目管理有限公司 ,工程已具备招标条件,现进行公开招标,特邀请有意向的潜在投标人提出资格预审申请。
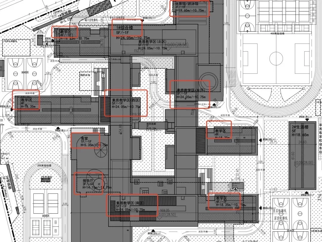
2. 工程概况与招标范围2.1 本工程的建设地点 亦庄新城YZ00-0503街区B12A1地块,东至嘉创一路,南至兴光三街,西至北神树路,北至兴光二街(具体建设地点以规划许可文件载明的地点为准)
2.2 本工程的建设规模 项目总建筑面积约93451平方米(其中地上建筑面积78390平方米,地下建筑面积15061平方米)。(最终以规划许可文件载明的数据为准) 合同估算价 62713.69 (万元)
2.3 本工程的工期要求 827 日历天
2.4 本工程的招标范围 施工图纸范围内的地基与基础、主体结构、建筑装饰装修、建筑屋面、建筑给水排水及采暖、通风与空调、建筑电气、智能建筑、建筑节能、电梯以及室外工程。
2.5 其他 最大单体建筑面积86584平方米,最大高度24米,最大跨度29.1米。
地块名:亦庄新城YZ00-0503街区B12A1地块位置:台湖-1 北神树简述:总投资约8亿元,用地面积约8.49公顷,为十二年一贯制学校。#城市规划建设 #规划设计院 #地段决定价值 #区域与城市规划
施工招标资格预审公告
1. 招标条件 本工程 北京师范大学附属中学经开学校项目
已由 北京经济技术开发区管理委员会 以 京技管(审)〔2025〕39号 批准建设,招标人为 北京经济技术开发区土地储备与建设服务中心 ,建设资金来自 政府投资(地方) ,工程出资比例为 100% ,招标代理机构为 北京京咨工程项目管理有限公司 ,工程已具备招标条件,现进行公开招标,特邀请有意向的潜在投标人提出资格预审申请。
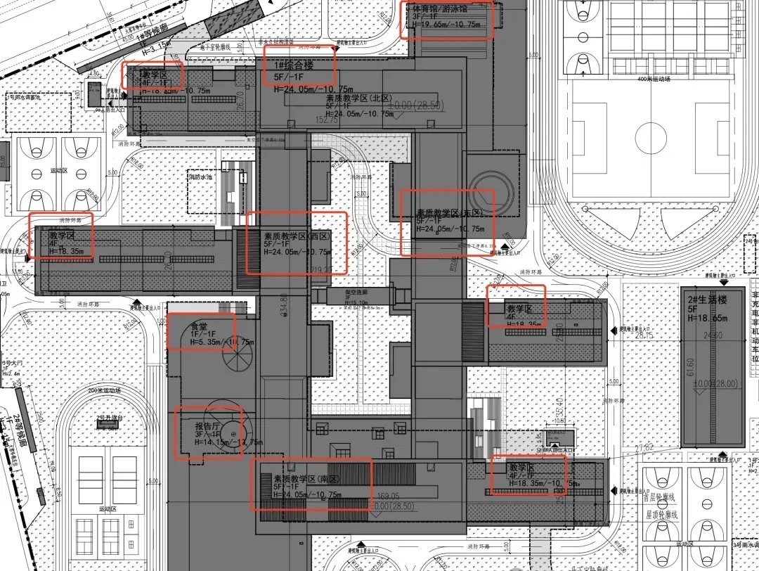
2. 工程概况与招标范围2.1 本工程的建设地点 亦庄新城YZ00-0503街区B12A1地块,东至嘉创一路,南至兴光三街,西至北神树路,北至兴光二街(具体建设地点以规划许可文件载明的地点为准)
2.2 本工程的建设规模 项目总建筑面积约93451平方米(其中地上建筑面积78390平方米,地下建筑面积15061平方米)。(最终以规划许可文件载明的数据为准) 合同估算价 62713.69 (万元)
2.3 本工程的工期要求 827 日历天
2.4 本工程的招标范围 施工图纸范围内的地基与基础、主体结构、建筑装饰装修、建筑屋面、建筑给水排水及采暖、通风与空调、建筑电气、智能建筑、建筑节能、电梯以及室外工程。
2.5 其他 最大单体建筑面积86584平方米,最大高度24米,最大跨度29.1米。
地块名:亦庄新城YZ00-0503街区B12A1地块位置:台湖-1 北神树简述:总投资约8亿元,用地面积约8.49公顷,为十二年一贯制学校。#城市规划建设 #规划设计院 #地段决定价值 #区域与城市规划
