发布信息
登陆/注册
搜索
搜索
导航
首页
产品供应
产品求购
企业库
酒业展会
行业资讯
认证会员
站内搜索
展会信息
当前位置:
首页
展会信息
正文
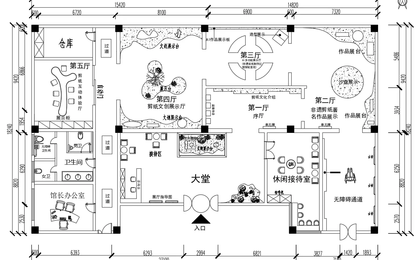
非遗剪纸文化展厅平面图
作者:本站编辑
2025-12-14 13:00:50
0
非遗剪纸文化展厅平面图
#展厅设计
#平面图
下一篇:
印度国际货运展览会|谈合作 拓商机
上一篇:
北京国际艺术设计玩具展览会
相关内容
查看全部
星露谷秋季展览会
2025-12-14 13:04
会展策划师会展设
2025-12-14 13:04
会展人用新媒体焦
2025-12-14 13:04
2026台湾会展排期
2025-12-14 13:04
大佬求带飞
2025-12-14 13:04
别乱抄动线❗️不
2025-12-14 13:04
展会设计|简约大
2025-12-14 13:04
⭕️澳門威尼斯會
2025-12-14 13:04
威海会展的 青岛
2025-12-14 13:03
Canadian exhibit
2025-12-14 13:03