35kv发电厂设计
作者:本站编辑
2025-12-01 03:30:56
11
35kv发电厂设计


CAD电气设计
代画各类发电厂图纸
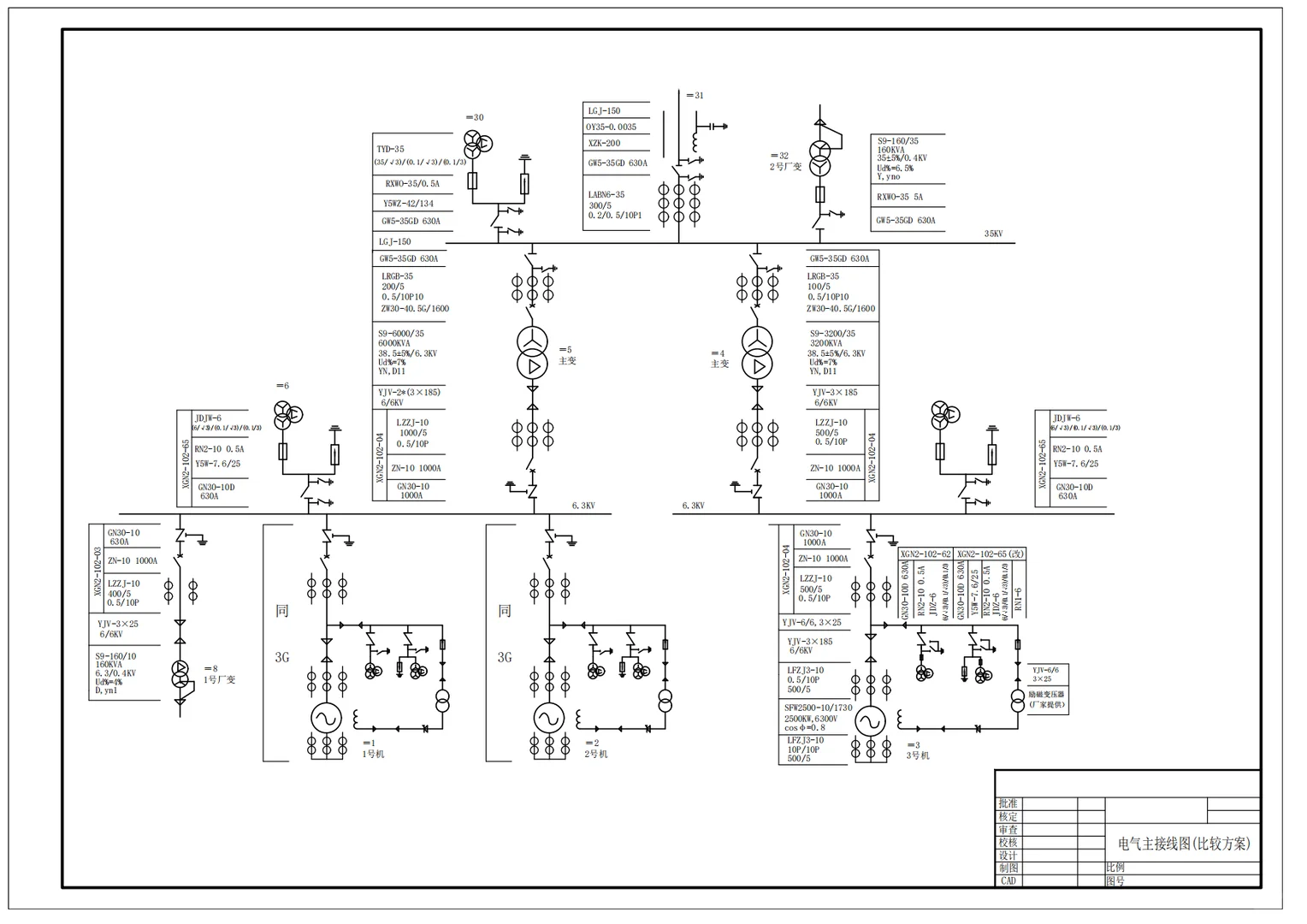
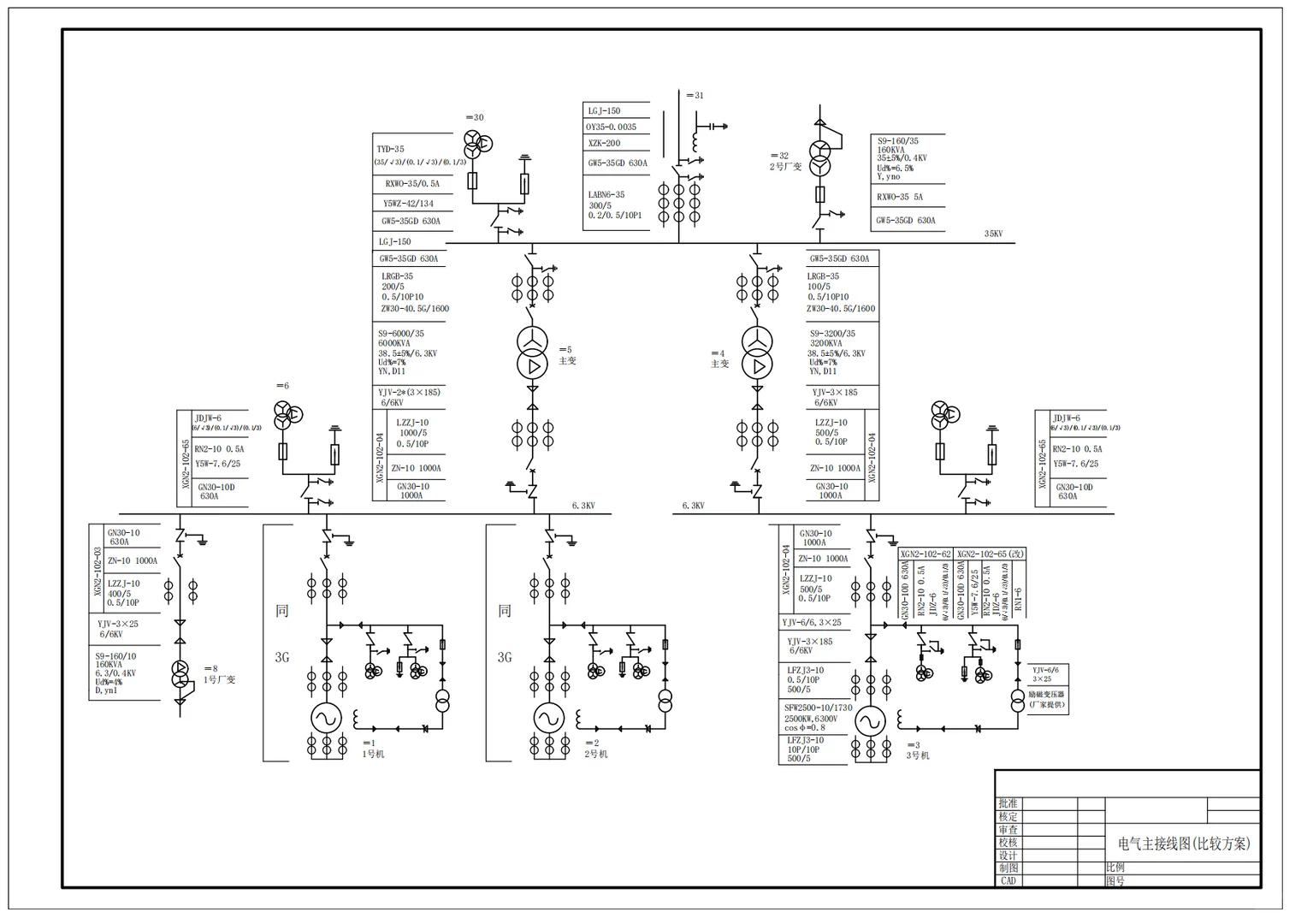
谁说工科图纸没有魅力?这张电气主接线图(比较方案) 简直是电力系统的 “逻辑艺术展”!
三台机组、主变、厂变、各类开关设备… 每一个元件都在图纸上精准 “站位”,从 35kV 到 6.3kV 的电压层级切换,每一条线路的连接都藏着 “供电安全与效率” 的双重考量~那些标注详细的设备参数,是电力人优化方案的 “决策密码”,更是工业技术严谨性的生动体现!
外行人看是 “复杂管线图”,电力人却能从中读懂能量流转的 “精密逻辑”~有没有电力圈的小伙伴,来聊聊你对这类接线图的设计思路?
#电力工程 #电气主接线图 #工业设计美学 #能源技术 #电力人日常