据最新情报:沙井招商A301-0586-招商会展湾雍境花园即将推新,预计三月份首开,据称目前样板已经做好,等待展厅开放,其中近期首推551套,二期推780套,两期将会相隔紧密开卖.
招商A301-0586
本地块是去年8月4日,在深圳第二次集中供地中,招商蛇口深圳公司通过招拍挂方式以封顶价31.02亿元+ 14680㎡配建+19000㎡自持竞得宝安沙井的A301-0586地块,目前已经动工建设5层左右。

其中:户型为66-110㎡2-3房,首批预计入市房源约551套,为66㎡两房一卫、79㎡三房一卫、89㎡三房两卫、110㎡四房两卫,其中79㎡和89㎡户型为主力户型。容积率4。二期商品房780套。地块毛坯限价4.795万,项目户型图暂未出炉!
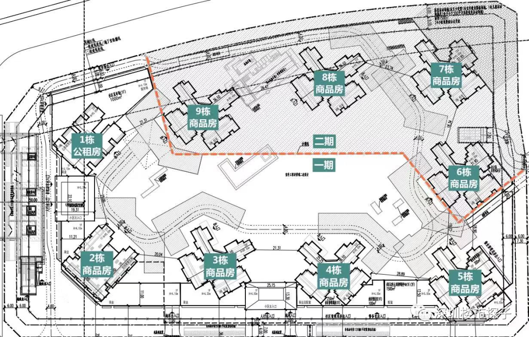
分一期、二期开发,7栋商品房,2栋保障房,共2043套。其中商品房1331套,保障房712套。商品房户型套内面积全部小于90平,具体户型为60多平2房、78-89平3房、120平左右4房。容积率4,停车位1908个。一期商品房551套、保障房712套,二期全部为商品房780套。毛坯限价4.795万,一期预计2023年上半年入市销售。
关注公众号更多新房优惠咨询
回复666添加微信入群交流

招商A301-0586

(来源:官方图源)
会展湾雍境花园项目位于沙井南环路与展城路交汇处,规划总建面约22.3万㎡,由9栋28-31层住宅围合组成;其中包括住宅建面146750㎡,商业1500㎡,以及社区管理、菜市场、老年人照料中心、社区体育活动场地等。
项目名称:会展湾雍境花园
宗地号: A301-0586
用地面积:37850㎡
总建筑面积:154163.00㎡
住宅:146750㎡ (一期80896㎡ ,二期65854㎡ )
商业:1500㎡
容积率:4
绿化:35%
建筑最高:95.65米
层高:31/3
车位:1908辆
住宅:一期1263 户(其中保障性住房 712 户)套内小于90平1263 户,占比100%
住宅:二期780套,套内小于90平780户,占比100%
总对外出售:1331套,套内小于90平1331户,占比100%
毛坯限价:限价4.79万
平面图:

示意图
效果图
教育资源:项目周边目前并无教育资源,不过项目周边规划有3所学校,其中包括2所九年一贯制学校,但目前尚未有看到相关动工迹象。
商业配套:项目自带1500平,冰雪文旅城(在建)商圈。
文娱配套:项目周边有海上田园、深圳冰雪文旅城(在建),其中海上田园位于项目的北侧,距离相对较近,直线距离深圳冰雪文旅城约600米左右。
区域展望:
项目位于宝安沙井国际会展中心北部,邻近建设中的 12 号线海上田园南站,受深圳国际会展中心、海洋新城两大重要规划。
示意图
区域以东为沙井先进制造业集合区,向北跨越海上田园为东莞滨海湾新区。
冰雪文旅城
项目旁边就是深圳国际会展中心。地块与融创华发深圳冰雪文旅城项目(开发单元二)地块相邻,文旅城将作为未来项目联系最为紧密的配套。
具体户型产品信息暂未公布,预计最快将在明年3月份左右入市,对项目感兴趣的小伙伴可以关注➕公众号,我们将会持续输出最新项目信息~

【免责声明】本文部分信息和图片来源网络,如有内容侵权请联系删除。本文所述内容和意见仅供参考,不构成市场交易依据和投资建议。
