发布信息
登陆/注册
搜索
搜索
导航
首页
产品供应
产品求购
企业库
酒业展会
行业资讯
认证会员
站内搜索
家装建材
当前位置:
首页
家装建材
正文
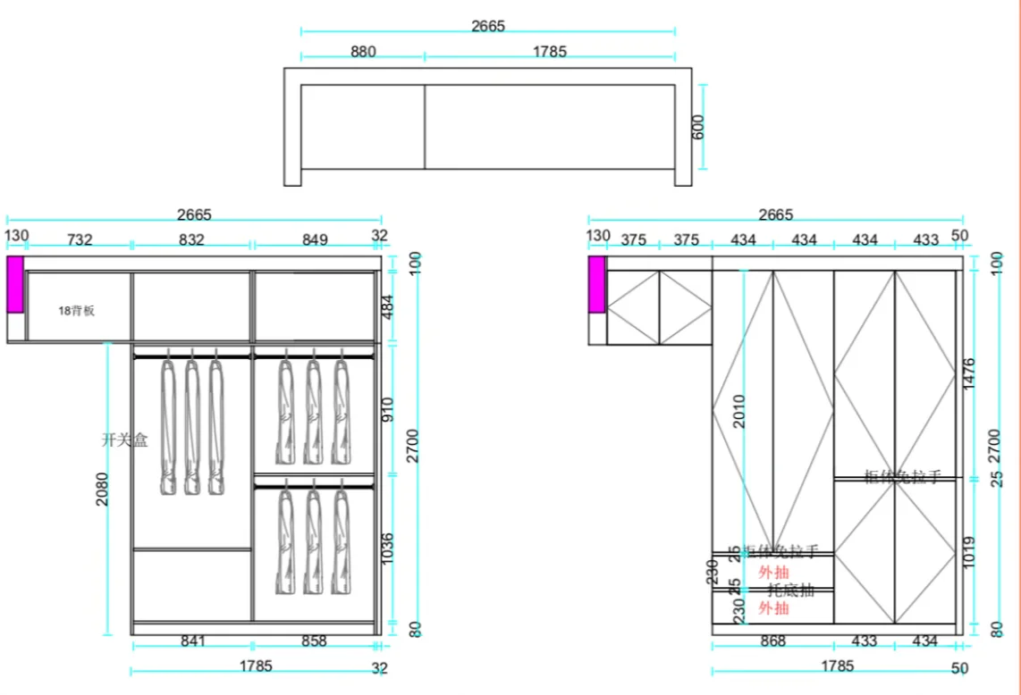
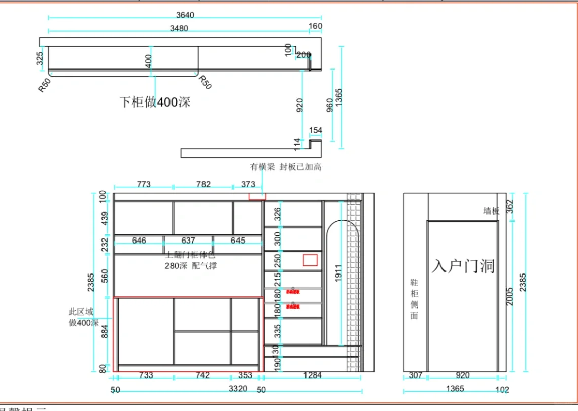
全屋定制看不懂设计图好难受啊?
作者:本站编辑
2025-11-07 16:31:59
14
全屋定制看不懂设计图好难受啊?
缝对不齐
强迫症犯了,到时候落地会不会很丑
#定制衣柜
#装修小白
#全屋
#我家柜子是这样的
#全屋定制
#装修新手村
#全屋定制工厂
#全屋定制避坑
#全屋定制家具
#衣柜布局
下一篇:
来个外贸商找我做货吧
上一篇:
外贸选品中,寻找青岛厂家!欢迎滴滴合作
相关内容
查看全部
水洗砂水泥各种建
2026-01-22 21:58
张家口建筑材料批
2026-01-22 12:40
告别 “管理痛点
2026-01-22 12:39
【回音壁】葵花园
2026-01-22 12:37
#福林木业建材批
2026-01-21 17:11
骏智建材 批发零
2026-01-20 20:59
干五金建材批发,
2026-01-20 14:02
水泥沙子各种建材
2026-01-20 01:10
郑州水泥大沙基础
2026-01-19 12:11
冠翔实业大型建材
2026-01-19 00:02