






Bullitt Center 的水系统被设计为“场地自给+循环利用”为核心:把屋面雨水集合 → 储存在地下大体积蓄水池 → 通过多级过滤与消毒形成“备用的日用/生活用水”与用于灰水循环的处理流;灰水(洗手池、淋浴等)做短程储存和三级处理后回用到冲厕系统或经人工湿地处理后回渗场地。该系统有旁路与与市政供水/排水的并联/应急连接以满足法规与运行安全。
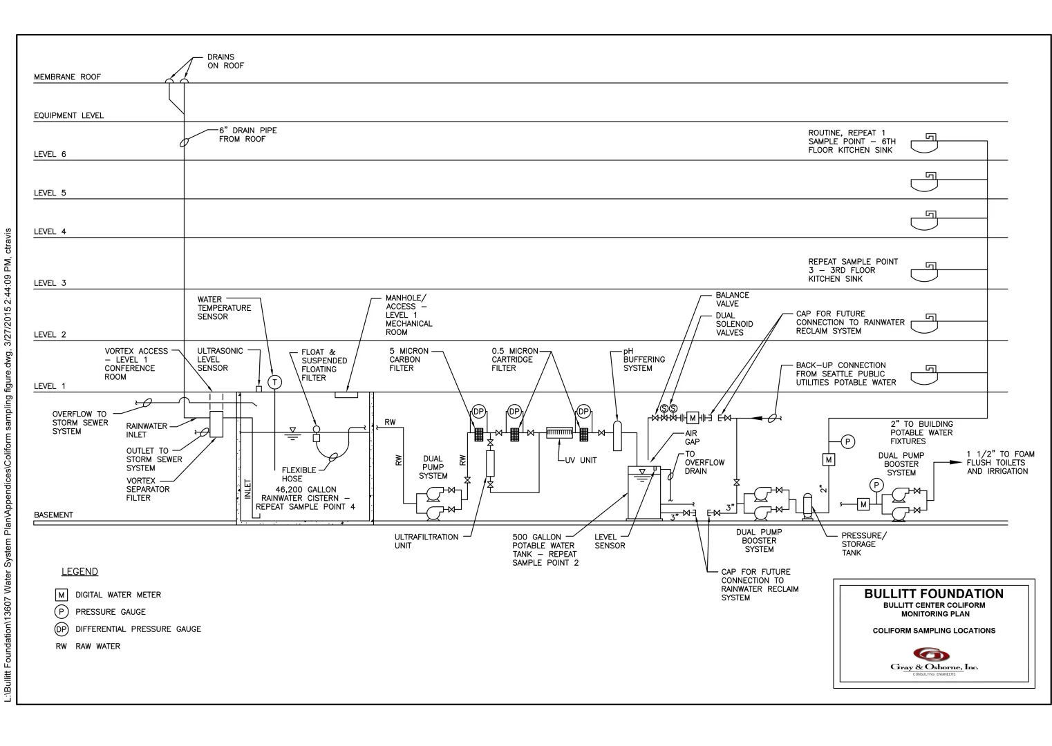
Rainwater Collection → Underground Storage (Vertical Flow and Key Components)
屋面收集:建筑大面积可渗/不可渗屋面把雨水引到檐沟/落水管,按流域划分进入同向的雨水主管网(roof collection)。屋面也是 PV 与绿屋面组合区域。
预处理与下行管路:落水口处常设格栅、沉砂与首段分流器(first-flush / leaf screens)以拦截较大颗粒与有机物,减轻后端蓄水与滤器负荷。参考 Bullitt 的水系统说明,其中列出了屋面集水特性与预处理说明。
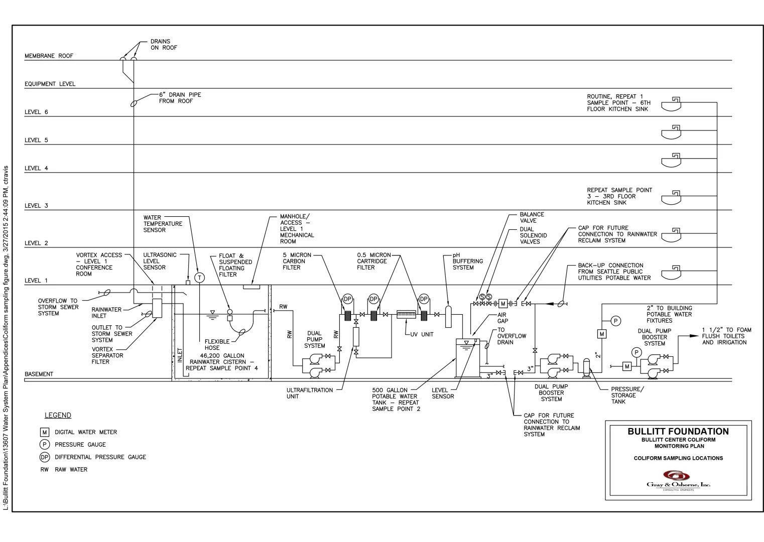
地下蓄水池(cistern):Bullitt 采用一座 大容量地下蓄水池(公开数据常引用约 56,000 美加仑(~212 m³))。蓄水池位于地下室/基坑内(机电主机房附近),并与机械房中泵/处理设备直接相连。蓄水池为重力与泵送的混合供水源,配置溢流、排泥口与通气/检修口。
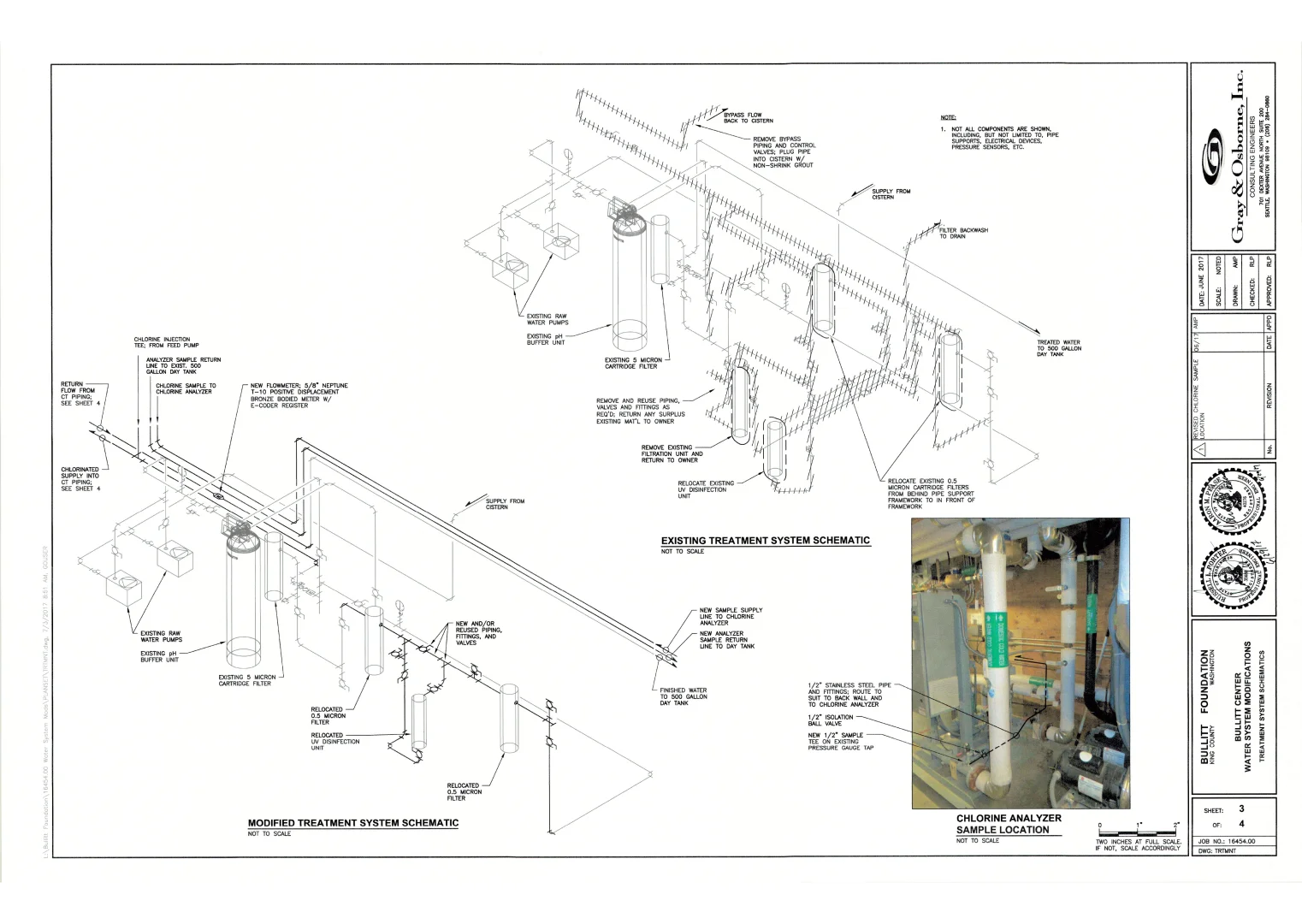
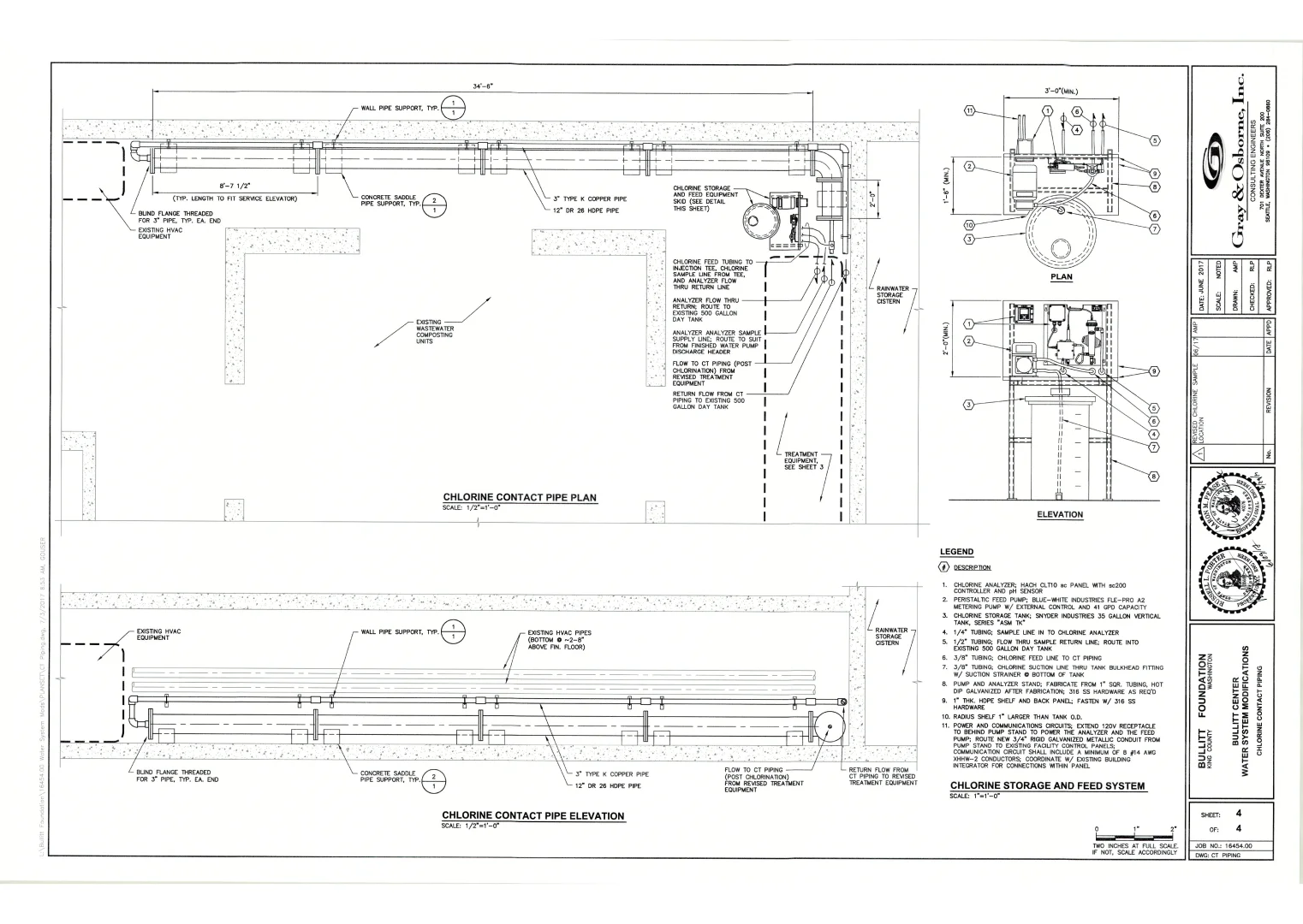
Water Treatment Train
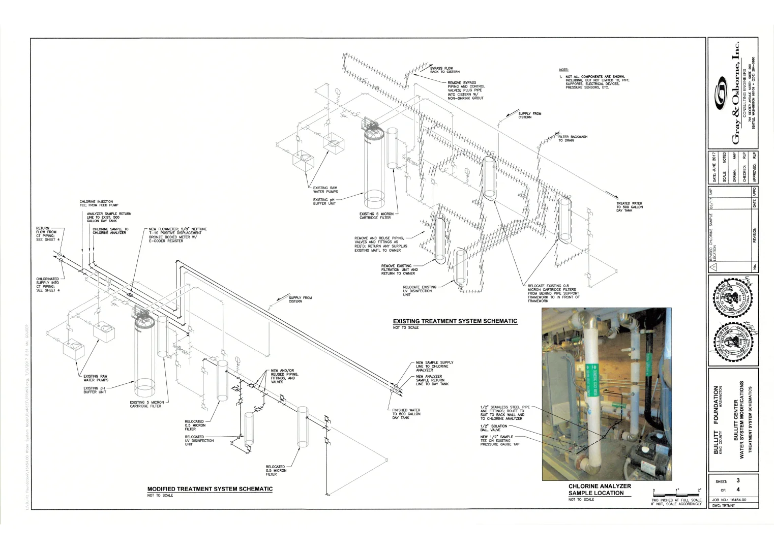
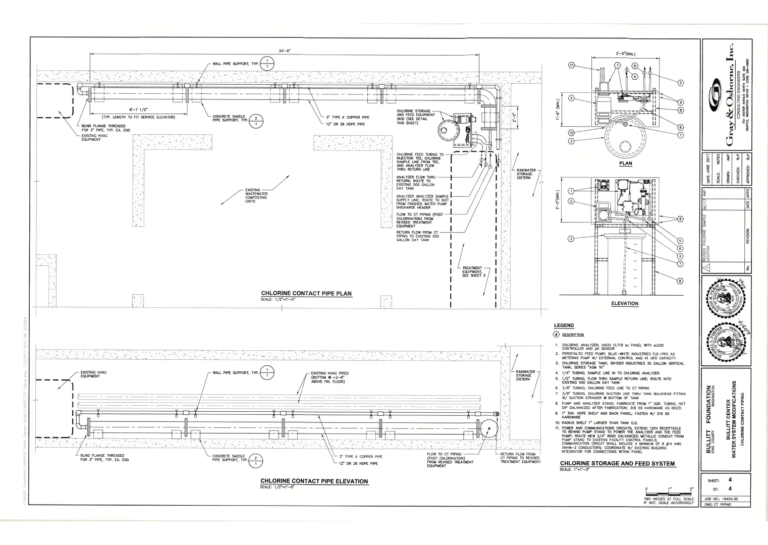
粗过滤/筛除 → 细过滤 → 储存 → 消毒/再分配:Bullitt 的技术说明提到一套过滤(砂滤或袋式滤器)、活性炭/吸附(视需求)以及紫外线(UV)消毒与氯化消毒的组合,用于把雨水处理到可用于建筑用途(法规允许下可达“可饮用/生活用”级别)。建筑还设置一个较小的“日用水箱/日供水槽”(文献提到约 500 加仑 的 day tank),用于短时平衡与供压稳定。
Graywater Treatment and Reuse Loop
灰水处理与再利用回路:洗手池/淋浴产生的灰水被收集到 ~550 加仑灰水储罐,在机房里经过三级处理(粗滤→生物处理/人工湿地→消毒),处理后主要用于真空冲厕系统(项目后期将堆肥厕所替换为真空冲洗/灰水回用一体化方案),剩余经人工湿地处理并下渗回场地以恢复现场水文。
Rainwater Collection → Underground Storage (Vertical Flow and Key Components)
屋面收集:建筑大面积可渗/不可渗屋面把雨水引到檐沟/落水管,按流域划分进入同向的雨水主管网(roof collection)。屋面也是 PV 与绿屋面组合区域。
预处理与下行管路:落水口处常设格栅、沉砂与首段分流器(first-flush / leaf screens)以拦截较大颗粒与有机物,减轻后端蓄水与滤器负荷。参考 Bullitt 的水系统说明,其中列出了屋面集水特性与预处理说明。
地下蓄水池(cistern):Bullitt 采用一座 大容量地下蓄水池(公开数据常引用约 56,000 美加仑(~212 m³))。蓄水池位于地下室/基坑内(机电主机房附近),并与机械房中泵/处理设备直接相连。蓄水池为重力与泵送的混合供水源,配置溢流、排泥口与通气/检修口。
Water Treatment Train
粗过滤/筛除 → 细过滤 → 储存 → 消毒/再分配:Bullitt 的技术说明提到一套过滤(砂滤或袋式滤器)、活性炭/吸附(视需求)以及紫外线(UV)消毒与氯化消毒的组合,用于把雨水处理到可用于建筑用途(法规允许下可达“可饮用/生活用”级别)。建筑还设置一个较小的“日用水箱/日供水槽”(文献提到约 500 加仑 的 day tank),用于短时平衡与供压稳定。
Graywater Treatment and Reuse Loop
灰水处理与再利用回路:洗手池/淋浴产生的灰水被收集到 ~550 加仑灰水储罐,在机房里经过三级处理(粗滤→生物处理/人工湿地→消毒),处理后主要用于真空冲厕系统(项目后期将堆肥厕所替换为真空冲洗/灰水回用一体化方案),剩余经人工湿地处理并下渗回场地以恢复现场水文。
