MORITZ 啤酒店
巴塞罗那,西班牙

Ronda
San Antoni路上的三座建筑是19世纪工业巴塞罗那的绝好见证。它们孕育了Moritz啤酒的历史,还有那些在此工作和生活过的人的历史。然而,这些地方已难以满足大规模啤酒工业生产的要求。需要赋予它们以新的意义、新的用途,并重新创造出一种与21世纪巴塞罗那相适应的生活。在这一历史场所,Moritz将安置一个小型高档啤酒店,制造该品牌啤酒的现场供应和销售。这里有餐厅、酒吧、啤酒零售店、商店和特色面包房。多媒体空间和博物馆完善了这些空间的功能设置,以便在白天和夜晚对所有公众开放。该项目展现出工业建筑之美。重新发现砖。钢和软木隔墙。展示混凝土的酿酒槽、老设备和货物升降梯。它还保留了沉重的石材地面和彩色花纹瓷砖铺地的痕迹。Moritz的老宣传海报被重新诠释,照亮整个新啤酒店。灯箱使酒吧和餐厅沐浴在金色和石榴红的色调里。这光线使人联想到啤酒、泡沫和葡萄酒。酒吧和餐桌采用锡制材料。其铜锈突出了对时间的感知。La Antigua fabrica Moritz重新成为巴塞罗那活力的见证之所。

区位图



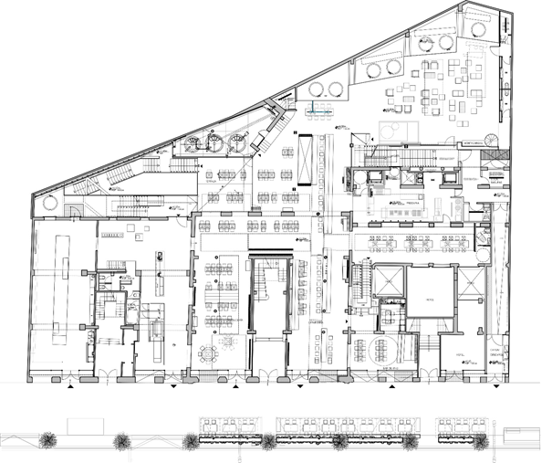
首层平面

灯光设计









植物墙

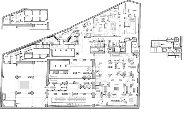
Green wall :Patrick Blanc地下层平面
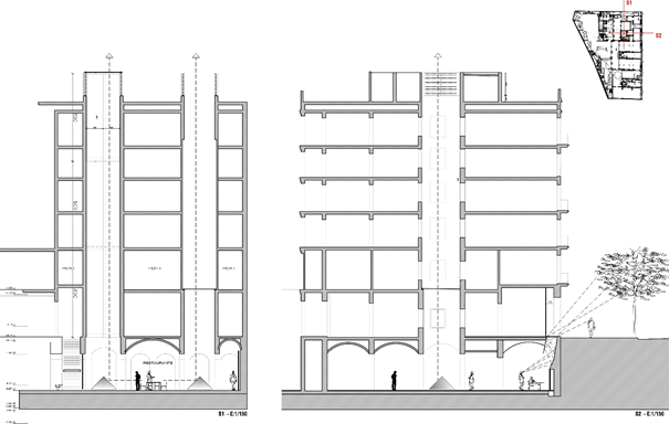
局部剖面

Video © Lida Guan


Photo © Roland Halbe






Photo © Roland Halbe
设计任务:在现存建筑中改造出啤酒店、小型啤酒厂、餐厅、酒吧、商店和小型啤酒博物馆建筑面积:4088 m²
版权声明:本文所有内容归Ateliers Jean Nouvel合法拥有版权或使用权,欢迎转发,严禁转载、复制、修改、使用本文部分或全部内容。
