














项目名称:温州高新文化广场
设计方:同济大学建筑设计研究院(集团)有限公司
项目设计 & 完成年份:2018/2023
项目地址:浙江省温州市
建筑面积:79516 平方米
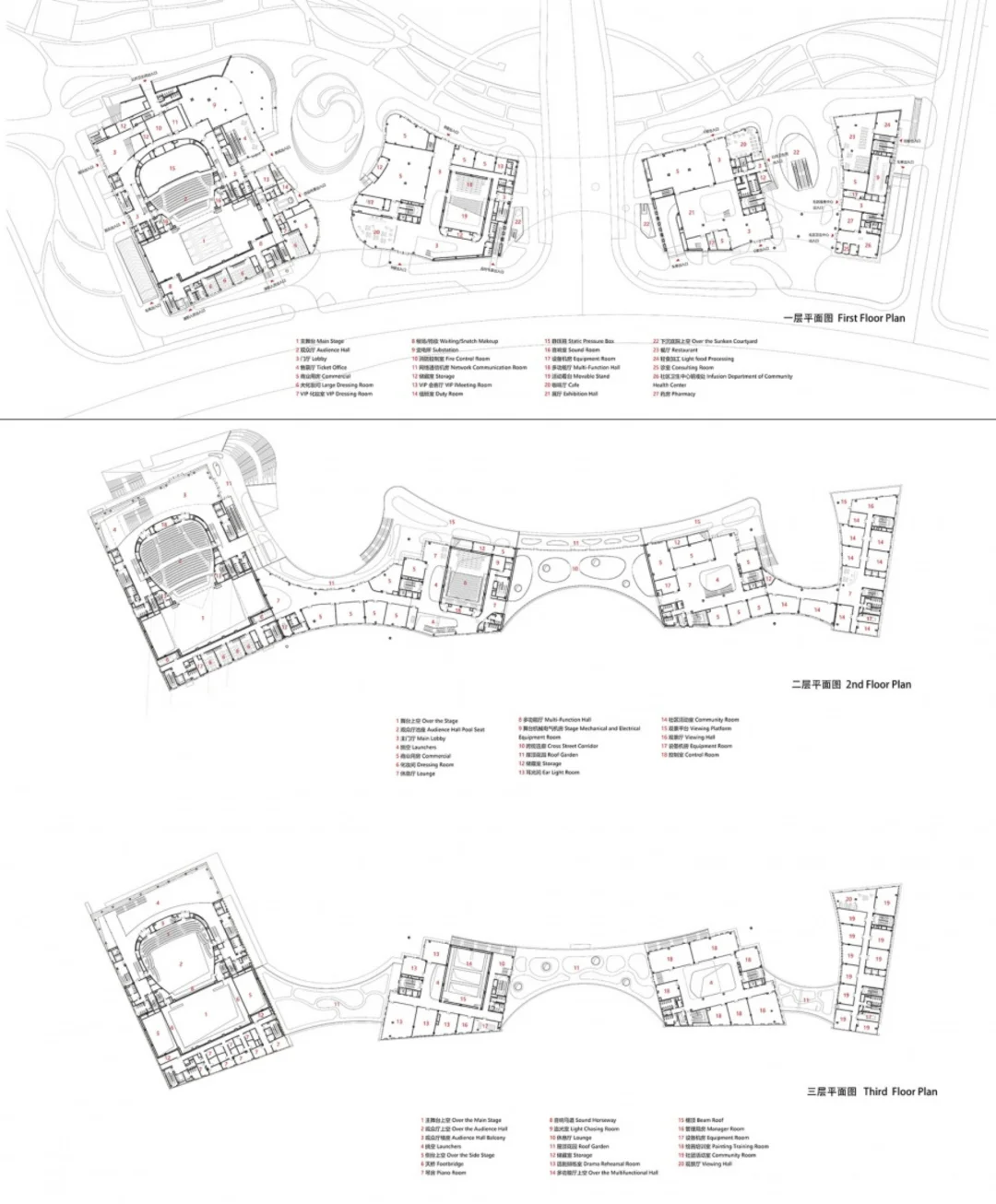
包括1216座大剧院、311座小剧场、商业及邻里中心等组成的大型文化商业综合体,也是城区多元文化艺术的殿堂地标。
基地位于黄石山下,双桥河畔,周边是成熟住区地段。远山如画,邻水似带,一个典型的新兴江南城区风貌。设计的宗旨是在中心区的核心绿地上打造一个开放共享、公众参与的“城市艺术公园”,作为城市生活的文化共享地。在这里,人们可游、可憩、可学、可购,为市民提供一片艺术生活港湾。
自然山水的场域环境启发了总体布局策略:小体量、轻介入,以“文化聚落”的轻盈姿态,创造开放共享、立体联结、公众参与的城市公共空间场所。
四个白色小方体,分别容纳大剧院,小剧场、活动中心和邻里中心等四个主体功能、沿河岸依次排开,自然成趣,漂浮于底部绿色公共基座之上。中部”虹桥“公共连接体跨越城市道路,连通南北。 “水上浮桥”穿过双河桥拱形桥洞,接续起被城市道路打断的健身步道。
东侧城市道路入口底层架空,打通城市街道与滨河绿谷的视觉通廊,当市民在街道经过时可看到河岸一侧的活动场景,可信步穿越建筑参与进来。而嵌入河岸绿带两个椭圆形公共广场成了日常的生活舞台。
设计把商业零售空间分散布置在底部二层公共基座内,通过架空、退台、空中连廊、下沉广场等方式塑造多孔性、立体化的空间形态,形成 “多首层”的活化商业界面,促成多样化的室内外文化场所与艺术化商业空间有机复合,将文化艺术融入日常生活。
沿河建筑以“叠台连廊”呼应水面绿坡,在二层屋顶平台打造公共空中花园,将绿谷公园景观延展到建筑屋面。游人可通过椭圆形中央广场的大台阶拾级而上,一路信步漫行,自由穿梭于建筑的立体园林中,或远眺风景,或驻足小憩,动静之间,重获日常生活的诗意。
建筑沿河立面以金属穿孔板的竖向杆件作为对琴键、琴弦的隐喻,并营造由实到虚的渐变效果。建筑上部如山般俊秀耸起,飞扬的屋面曲线呼应着优美的山行走势,描摹出“如鸟斯革,如翚斯飞”传统屋檐意象。
#从建筑角度介绍剧院 #剧院建筑 #温州 #温州高新文化广场 #话剧 #舞剧 #音乐剧 #长腿叔叔
设计方:同济大学建筑设计研究院(集团)有限公司
项目设计 & 完成年份:2018/2023
项目地址:浙江省温州市
建筑面积:79516 平方米
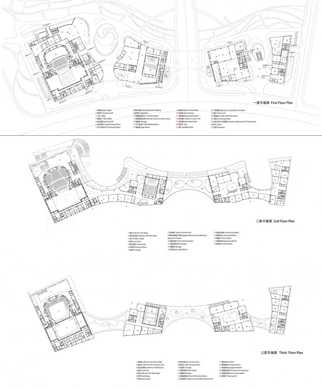
包括1216座大剧院、311座小剧场、商业及邻里中心等组成的大型文化商业综合体,也是城区多元文化艺术的殿堂地标。
基地位于黄石山下,双桥河畔,周边是成熟住区地段。远山如画,邻水似带,一个典型的新兴江南城区风貌。设计的宗旨是在中心区的核心绿地上打造一个开放共享、公众参与的“城市艺术公园”,作为城市生活的文化共享地。在这里,人们可游、可憩、可学、可购,为市民提供一片艺术生活港湾。
自然山水的场域环境启发了总体布局策略:小体量、轻介入,以“文化聚落”的轻盈姿态,创造开放共享、立体联结、公众参与的城市公共空间场所。
四个白色小方体,分别容纳大剧院,小剧场、活动中心和邻里中心等四个主体功能、沿河岸依次排开,自然成趣,漂浮于底部绿色公共基座之上。中部”虹桥“公共连接体跨越城市道路,连通南北。 “水上浮桥”穿过双河桥拱形桥洞,接续起被城市道路打断的健身步道。
东侧城市道路入口底层架空,打通城市街道与滨河绿谷的视觉通廊,当市民在街道经过时可看到河岸一侧的活动场景,可信步穿越建筑参与进来。而嵌入河岸绿带两个椭圆形公共广场成了日常的生活舞台。
设计把商业零售空间分散布置在底部二层公共基座内,通过架空、退台、空中连廊、下沉广场等方式塑造多孔性、立体化的空间形态,形成 “多首层”的活化商业界面,促成多样化的室内外文化场所与艺术化商业空间有机复合,将文化艺术融入日常生活。
沿河建筑以“叠台连廊”呼应水面绿坡,在二层屋顶平台打造公共空中花园,将绿谷公园景观延展到建筑屋面。游人可通过椭圆形中央广场的大台阶拾级而上,一路信步漫行,自由穿梭于建筑的立体园林中,或远眺风景,或驻足小憩,动静之间,重获日常生活的诗意。
建筑沿河立面以金属穿孔板的竖向杆件作为对琴键、琴弦的隐喻,并营造由实到虚的渐变效果。建筑上部如山般俊秀耸起,飞扬的屋面曲线呼应着优美的山行走势,描摹出“如鸟斯革,如翚斯飞”传统屋檐意象。
#从建筑角度介绍剧院 #剧院建筑 #温州 #温州高新文化广场 #话剧 #舞剧 #音乐剧 #长腿叔叔
