会展湾·南岸广场
备案价:6.8折/6.5折/6.5折
全市稀缺低密小独栋现楼发售
前海-会展新城-总部资产
一企一栋 专享冠名权
会展经济新主场,地段决定价值
低密生态独栋企业总部展厅
独栋现楼现售即买即用
特价2.3万/㎡起,单价2.6万/㎡起
散售面积:150㎡~1800㎡
整售独栋:2058㎡~3200㎡
------------------------
独栋租赁:3000㎡,
租赁价格:20万/月
现场销售☎:136 4235 3870 张先生
(号码同步微信)



项目指标:
开发商:深圳市招华会展实业有限公司
物业业态:公寓、办公、商业
占地面积:约5.3万㎡
总建面:约8.8万㎡
容积率:1.66
办公体量:约42500㎡
公寓体量:约35000㎡
停车位:约413个

六大价值亮点
立足湾区核心,多重战略区位叠加,深圳经济增长极


前海2.0时代湾区核芯,链接总部澎湃未来


三城一港循环经济体创想总部产业辐射圈


会展经济带动效应,加速会展经济圈发展


湾区五维立体交通构建跨越时区的交通网

全维配套生活圈,城市的未来主场


低密组团:T4A栋,现楼整栋发售
T4A栋—最佳视野总部独栋
建面约:2224.28㎡
一层417.67㎡
二层823.29㎡
三层983.32㎡
总价约:1.2亿元



T4B栋—第一个被看见总部独栋
建面约2073.03㎡
一层557.52㎡
二层673.76㎡
三层841.75㎡
总价约:1.25亿元



T5栋—会展南大门首排,封面级昭示性
建面约:2321.52㎡
一层757.31㎡
二层854.39㎡
三层709.82㎡
总价约:1.32亿元



T7B栋—最静谧总部独栋
建面约1840.59㎡
一层509.58㎡
二层574.4㎡
三层756.61㎡
总价约:1.05亿元



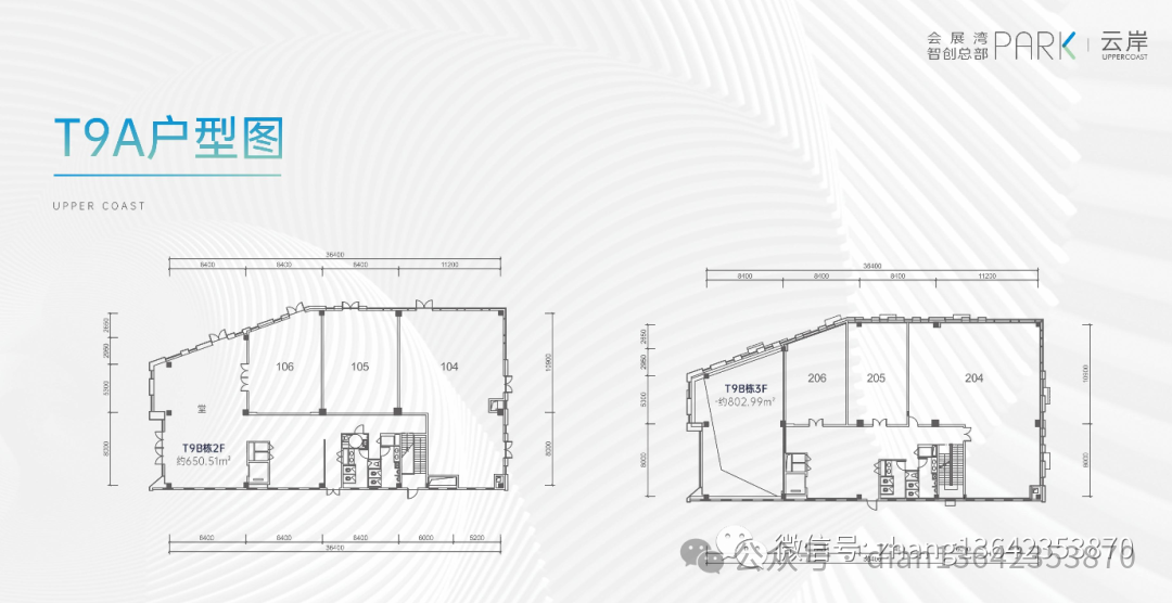
T9A栋—最效益总部独栋
建面约1974.3㎡
一层520.05㎡
二层651.08㎡
三层803.17㎡
总价约:1.04亿元



T9B栋—最具商务属性总部独栋
建面约2047.71㎡
一层504.41㎡
二层634.63㎡
三层908.67㎡
总价约:1.28亿元



T13栋—最高曝光量总部独栋
建面约8067.07㎡
三层1580.08㎡
四层1620.44㎡
五层1623.83㎡
六层1623.61㎡
七层1619.11㎡)
总价约:3.9亿元



T14栋—最具昭示性总部独栋
建面约6579.02㎡
三层1292.94㎡
四层1322.64㎡
五层1322.64㎡,
六层1322.41㎡
七层1318.39㎡
总价约:3.2亿元



▼景图:









联系电话:136 4235 3870 张先生
QQ邮箱:280392942@qq.com
公 众 号:dian13642353870
微 信 号:13642353870

详情咨询 | 扫码添加
