报来要求建设项目的请示收悉。该项目经萧发改投资〔2023〕467号文件批复项目可研,现已完成项目初步设计等前期工作,经研究,同意建设。现批复如下:
一、建设规模和技术标准
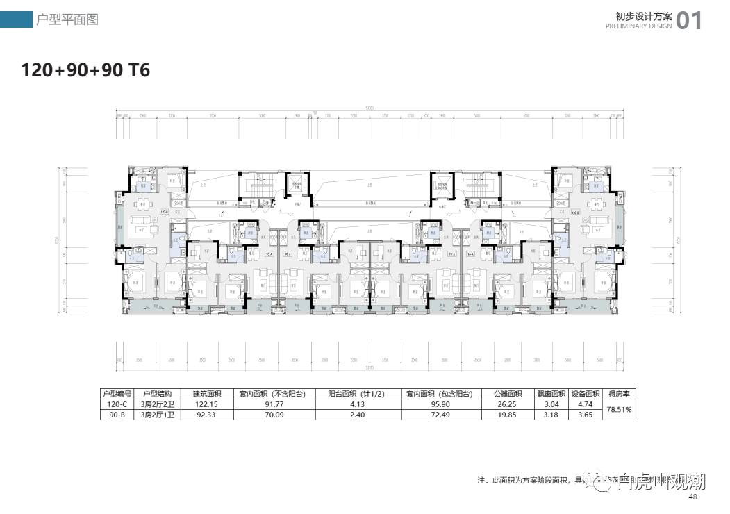
项目建设安置用房及配套设施,总建筑面积110983平方米。其中:住宅面积69911.36平方米,物业办公用房239.43平方米,物业经营用房315.76方米,社区服务用房1498.06平方米,养老服务用房431.41平方米,婴幼儿照护服务用房249.02平方米,公厕85.13平方米,快递115.03平方米,消控室83.44平方米,垃圾房60平方米,公共文化设施用房(文化活动室)86.78平方米,配套用房2446.91平方米,地下车库尾气井及出地面公共楼梯136.65平方米,开闭所824.02平方米,架空层3038.56平方米,地下建筑面积34500平方米。
项目建设内容包括主体建筑土建及安装、装饰,室外配套,设备,其他等工程。
二、投资概算
项目计划投资67928万元(经概算审核:概〔2023〕145号),其中:建安费43362万元,前期费16528万元,其他费2994万元,预备费2344万元,建设期贷款利息2700万元。
三、项目用地
该项目用地57.36亩。
四、资金来源
资金由你们自筹解决。
五、海绵城市
根据《杭州市海绵城市专项规划》,该项目按照年径流总量控制率75%、SS综合去除率60%,综合雨量径流系数0.6来管控。
六、项目建设工期
本工程建设工期为36个月。
接文后,请向区级有关部门办理手续。
项目代码为2305-330109-04-01-708832
杭州市萧山区发展和改革局
相关阅读:
项目名称:会展新城安置房六期二号地块项目
本项目东至南阳大道,西至南庄路,北侧贴临现有农田,南至规划支路。
地块项目主要建设内容包括住宅、配套公建(社区服务用房、物业管理用房、物业经营用房、养老用房等)、地下停车库、设备用房、小区内道路及绿化工程等。
总用地面积约38242㎡,建筑密度不大于22%,绿地率不小于35%,容积率不大于2.0,建筑限高 43.5 米(即 85 国家高程 50.2 米),同时施工机械等设施应满足机场净空要求,即 85 国家高程 51.7 米以下。
项目园区规划设计注重中轴对称关系、空间序列感和节奏感;规划结构明确,空间层次清晰,脉络完整,建筑造型充分体现尊贵感,经典大气。住宅建筑设计以探究深层次的居住需求和理想为目标,力求通过丰富的细节,经典的场景空间,无微不至的人性关怀,丰富完善的社区配套,达到“品质与服务”为标准的新型综合体社区。提供社区全龄活动场地,满足视、听、嗅、触、味觉等各种感知觉,满足业主对生活环境全方位感官体验,打造高品质的社区生活。
项目由3幢13F高层、8幢14F高层、1F-3F配套用房及1F地下室组成,其中养老及婴幼儿照护服务用房位于4#楼及5#楼首层内。人防等级为核六级。




