第十九届中国国际建筑装饰及设计艺术博览会(简称:设博会CIDF)将于2024年5月中旬在北京国家会议中心隆重举行,设博会同期举办的国际环艺创新设计作品大赛(华鼎奖)正在火热进行中,我们诚挚邀请设计师积极报名参与。
本期我们特别分享第十八届设博会华鼎奖获奖设计师何开焰的设计专访。

设计师:何开焰
湖北千宝设计工程有限公司成立于2014年,是中电光谷产业空间设计专家,拥有建筑装饰工程设计专项甲级设计资质。公司秉承“策略化、运营化设计”的经营思路,打造集空间规划设计、展陈设计、灯光设计、VI标识系统设计、家具软装设计、以及设计牵头的施工一体化的系统平台。倡导“横向多元化、纵向一体化”的设计理念,不断探寻运营定位与功能主义的相互平衡,美学与环境的内在呼应,空间与情绪的共生。同时,公司具备良好的专业素质和服务意识,能够从发展和设计的角度进行全局分析和思考,准确把握市场定位,用全局意识指导设计,提高产品质量,降低企业运营成本,实现发展理念和设计理念的最佳融合。设计如数学,一方面具有严谨性,以建筑为基准、需求为主导,求真务实地依循空间设计逻辑,满足不同空间的差异性功能;另一方面又极具创造性,通过对空间动线格局、光影、颜色、材料等元素的解构与重组展现出设计时尚感。总的来说,将空间设计的标准化与人文艺术的个性化融合起来,不断探寻运营定位与功能主义的相互平衡、美学与环境的内在呼应、空间与情绪的共生,让每个设计成为有价值的、卓越精彩的、不可替代的、可持续发展的!
天津中电科创园项目是中电光谷在天津创建的首个科创园区,该园区产业定位于新一代信息技术和数字经济,目标是聚焦数字内容、网络安全、智慧城市、智能制造技术等领域,搭建自主创新的完善生态体系,构建集数字经济、产业智核于一体的高端办公,建设共生、共享、共未来的综合性高端科创园区,打造成京津冀协同发展示范园区和国内领先的数字产业创新中心。
本案为该科创园内充满智能和科技感的展示中心,主要体现理念创新、技术创新、内涵创新以及意识创新,展厅设计以引入建筑设计流线为主基调,将虚拟现实和互动投影技术应用于展厅设计中。好比展厅是一本书,参观人群是阅读者,可以从视觉、听觉、触觉等各个感观层面全景感受“智慧园区”,通过营造的特殊空间情境亲身体验“智慧园区”便捷性、先进性、创造性。
中电光谷以打造中国领先的产业资源共享平台为战略目标,以数字化平台园区通为抓手,搭建起系统化的全生命周期产业园区运营服务体系。近年来,中电光谷大力推动 P+EPC+O 的创新综合运营商业模式,立足于招商运营需要,提供全流程一体化服务,其中,“P”为园区策划与规划咨询,“EPC”为设计牵头的设计施工总承包,“O”为园区招商运营。展示中心将基于中电光谷产业园区总体发展战略规划,利用最新的信息技术与新媒介技术,通过图文资料、视频、沙盘、VR互动、现场讲解等媒介,从视听触等多个感观层面营造特殊的空间“情景”,全面展示中电光谷产业园区的总体战略、发展方向、建设规划、园区服务、政策引导、产业结构、入驻企业、发展成果、技术应用、产业创新等,让参观者可以较为全面的了解中电光谷产业园区的发展规划与情况。展示中心是园区对外形象的“第一张名片”,是整个产业园区的地标性建筑,应当具有符合园区产业特质的格调特性,其建筑风格、景观设计及装饰装修方案应与该项目的整体风格、客户定位、推广主题及调性相吻合,符合项目整体定位。
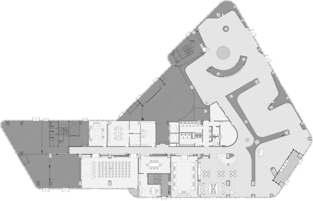
天津中电科创园展示中心设计思路说明

“感官体验”加“情景体验”
以人体指纹脉络为设计灵感,以引入建筑设计流线为总基调
展示中心展厅部分设计以指纹脉络为灵感,打造了一个穿插着建筑流线的美感空间,使得展厅参观动线一脉相承,予以观者流畅舒适的观感。顺畅便捷的动线不仅能提高参观者们的体验,使观者们放松心情,还能体现出展示中心的协调与美。

在中段的展示空间,更多的是将空间的精神内涵体现出来,每一处转折迂回都与展示内容的变换巧妙呼应,每一处起承转合都有不期而遇的精彩,使得展厅呈现跌宕起伏之变幻感,让人沉浸其中。
在接近尾端之际则是引入了时光隧道这一概念,用以总结展示内容中随着时光迁移所存在的印记与意义,一眼望去宛如时空穿梭,让观众回味无穷。
通过空间立面材质的选择、整体色调的搭配、造型比例的呼应关系、灯光的适当处理,构建出一个充满当代建构主义与未来感相交互的空间中,让这个展厅呈现出未来科技感。同时将虚拟现实和互动投影等先进技术巧妙应用于展厅空间设计中,让科技概念更加直观。整体上使得展厅的内容更具沉浸感和视觉冲击力,从而让参观者们感受到中电光谷的企业实力以及对整个项目的定位目标。
展厅内还设置了多个互动、交流、茶歇等功能空间,与展示空间的设计主调不同,配套空间更多地引入人文色调和人性化概念,包括空间的造型以及软装、灯光的考虑等维度,旨在为游览完整个展厅的人们提供充足适配且舒适轻松的空间,让他们能够思考、交流与小憩。